Eladó jó állapotú ház Budapest III. kerület
| Kedvencbe | Megosztás | Árfigyelő |
| Kedvezményes lakáshitel ajánlatok | ||
| 169 900 000 HUF | ||
Ingatlan adatai
- Eladó vagy kiadó:Eladó
- Település:Budapest III. kerület
- Kategória:Ház
- Alkategória:Családi ház
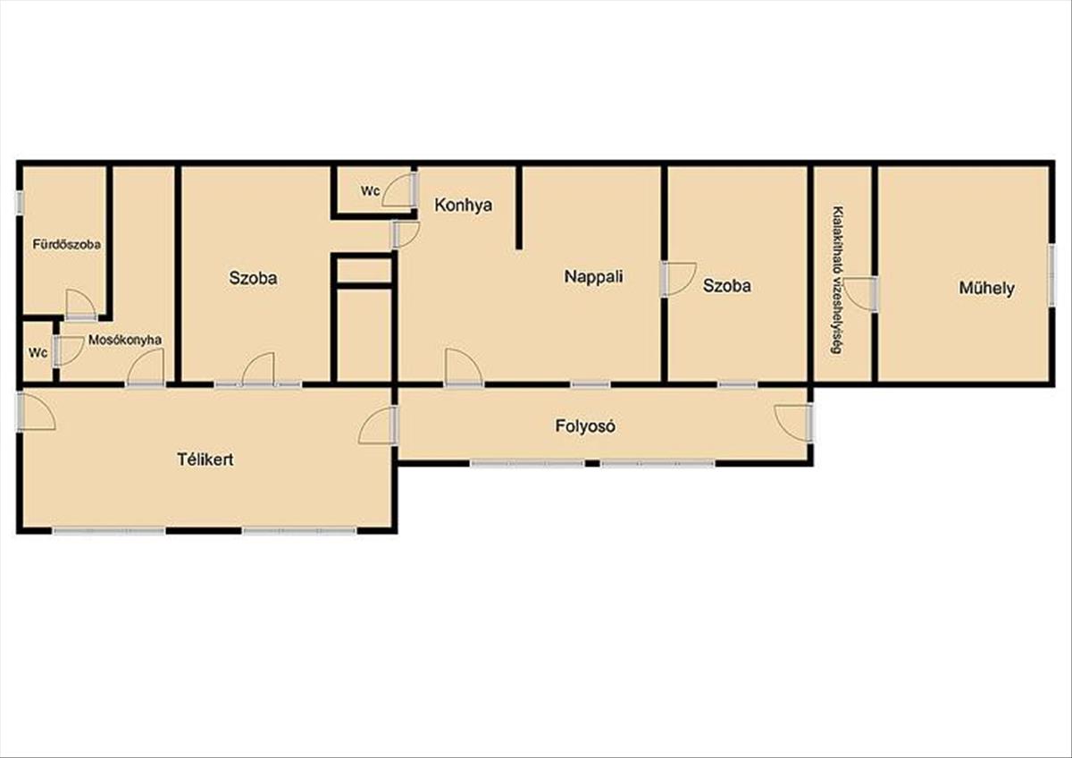
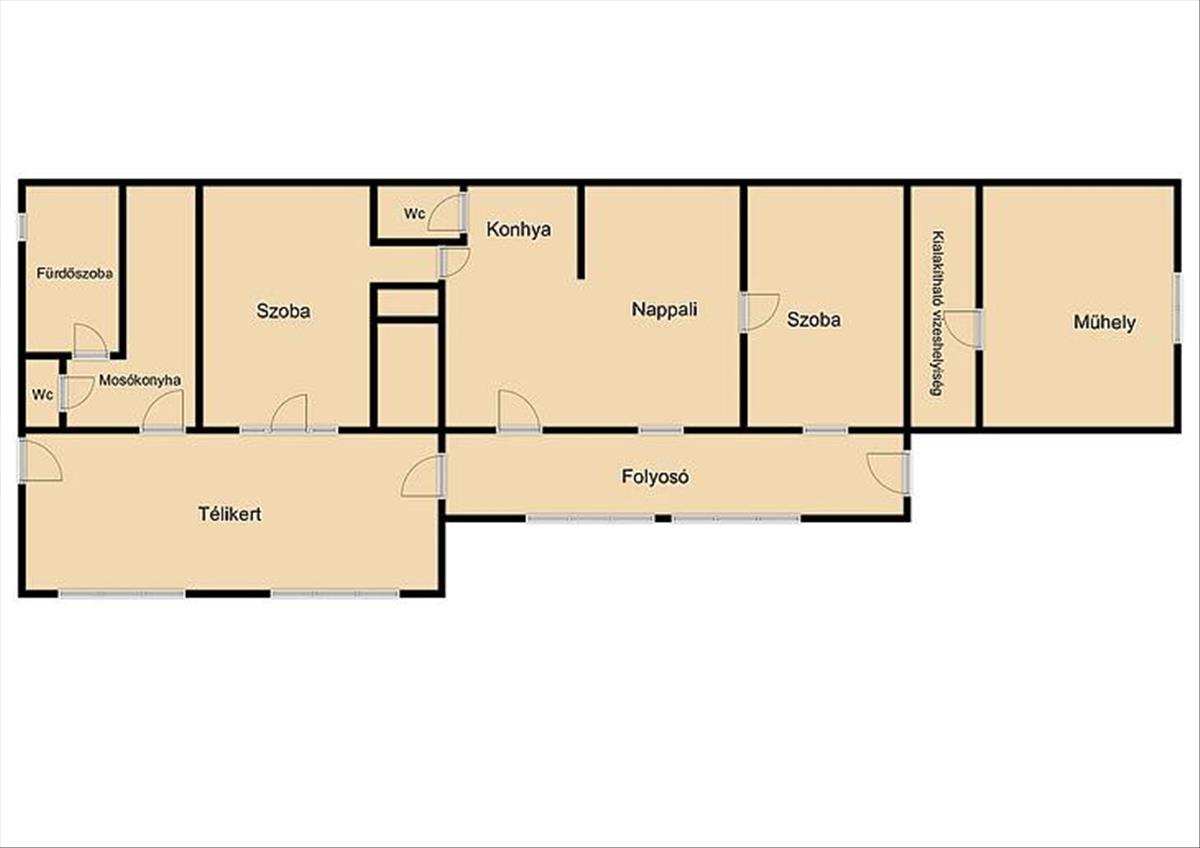
- Alapterület:170 m2
- Telekterület:640 m2
- Csere is:Nem
- Hirdető:Cég
- Élő videón megtekinthető:Nem
- Építés éve:1976
- Szobaszám:3
- Állapot:Jó állapotú
- Hány szintes az ingatlan:Földszintes
- Tetőtér:nincs megadva
- Komfortosság:Összkomfortos
- Parkolási lehetőség:Saját parkoló
- Fűtés:Egyéb
- Bútorozottság:nincs megadva
- Fényviszony:nincs megadva
- Tájolás:K
- Kilátás:Kertre néző
- Internet:nincs megadva
- Akadálymentesített:nincs megadva
- Energiatanúsítvány:nincs megadva
- Villany:nincs megadva
- Víz:nincs megadva
- Gáz:nincs megadva
- Csatorna:nincs megadva
- Üzenetküldés
- Hívás

Monte Stella Kft.
Mondd meg a hirdetőnek, hogy a megveszLAK-on találtad a hirdetést.

Hitel ajánlat
Ingatlan hirdetés leírása
Békásmegyer-Ófaluban ELADÓ egy 170 négyzetméteres ÖNÁLLÓ CSALÁ...
Békásmegyer-Ófaluban eladó egy 170 négyzetméteres önálló családiház 640 négyzetméteres öntözőrendszerrel ellátott sík telken!Az ingatlan jelenlegi elosztása 3 szobából, konyhából, egy fürdőszobából, egy mosókonyhából és egy télikertből épül fel.
A telken található még egy 36 négyzetméteres épületrész is, ami jelenleg műhelyként üzemel és külön villanyórával is ellátott, továbbá a házhoz tartozik egy 20 négyzetméteres pince is, ami a télikertből nyílik.
A szobákban fa, illetve laminált parketta burkolat található míg a vizeshelyiségekben járólap.
A nyílászárók fából készültek.
A fűtésről, illetve nyáron a hűtésről 3 darab inverteres klíma gondoskodik.
A ház víz-, csatornarendszere, illetve a villanyvezetékek teljes körű felújításon estek át.
A ház fa födémes, ami cseréptetővel van fedve.
A házban a biztonságról egy riasztórendszer és kamerák gondoskodnak.
A ház kétgenerációs használatra is alkalmas!
Környékről:
Közelben minden olyan szolgálatás megtalálható amire szüksége lehet a mindennapokban (kisebb élelmiszer boltok, piac, éttermek, gyógyszertárak). Gyerekes családoknak nagyon ideális hiszen játszóterek, Óvoda, Iskola, Egyetem van a közelben.
Tömegközlekedés szempontjából is tökéletes hiszen pár perc sétára található számos buszmegálló, illetve a H5-ös hév.
FINANSZÍROZÁS:
Banki finanszírozással is megvásárolható, melyben irodánk ingyenes tanácsadással áll rendelkezésükre!
VEVŐINK részére a közvetítés DÍJTALAN!
A beépített bútorzat a vételár részét képezi.
A hirdetésben szereplő adatok tájékoztató jellegűek. Hitel.hu - Hasonlítsa össze a bankok lakáshitel ajánlatait

