Eladó felújítandó ház - Budapest XVI. kerület
- INGYENES HIRDETÉS FELADÁS
Ingatlan adatai
- Eladó vagy kiadó:Eladó
- Település:Budapest XVI. kerület
- Kategória:Ház
- Alkategória:Családi ház
- Alapterület:80 m2
- Telekterület:915 m2
- Csere is:Nem
- Hirdető:Cég
- Élő videón megtekinthető:Nem
- Építés éve:1984
- Szobaszám:2
- Állapot:Felújítandó
- Hány szintes az ingatlan:3 szintes
- Tetőtér:nincs megadva
- Komfortosság:nincs megadva
- Pince:nincs megadva
- Parkolási lehetőség:Udvaron
- Fűtés:Egyéb
- Bútorozottság:nincs megadva
- Fényviszony:Jó
- Tájolás:DK
- Kilátás:nincs megadva
- Internet:nincs megadva
- Klíma:nincs megadva
- Akadálymentesített:nincs megadva
- Energiatanúsítvány:nincs megadva
- Villany:Van
- Víz:Van
- Gáz:Utcában
- Csatorna:Van
- Kapcsolatfelvétel

Tamásné Mocsári Ildikó
+36-(70)-206-2979
Mondd meg a hirdetőnek, hogy a megveszLAK-on találtad a hirdetést.
Referencia szám: M325679
Hitel ajánlatok
Ingatlan hirdetés leírása
Eladó Ház, Budapest 16. ker.
Árpádföldön egy igazi lehetőség várja új tulajdonosát - aki nem csak házat, hanem jövőt keres! ! !
Kizárólag az OTP Ingatlanpont kínálatában!
Budapest XVI. kerületében, Árpádföldön kínálunk megvételre egy 915 nm -es telekkel rendelkező 80 nm -es családi házat, ahol a természet és a lehetőségek kéz a kézben járnak.
A telken termő gyümölcsfák, tágas tér és nyugalom fogad - ide tényleg jó hazaérkezni.
A jelenleg kétszobás ház könnyedén háromszobássá alakítható, így új tulajdonosa saját igényeire szabhatja - legyen szó családi otthonról vagy akár befektetésről.
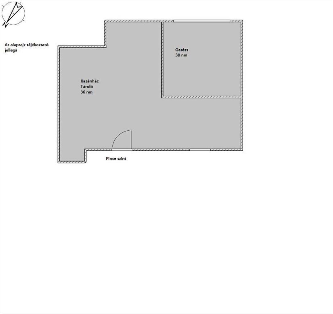
Az ingatlanhoz tartozik garázs és felszíni kocsibeálló is.
Fűtéséről vegyes tüzelésű kazán gondoskodik, nyáron a melegben klíma biztosítja a kellemes hőérzetet.
Ez az ingatlan azoknak szól, akik látnak a falakon túl is, akik szeretnék saját ízlésük szerint formálni otthonukat, és értéket teremteni.
Ha mindig arra vágytál, hogy egy igazi kertvárosi környezetben élj, akkor ezt látnod kell.
Nézzük meg együtt a leendő otthonod, várom hívásod a hét minden napján 9-20 h között.
Ügyfeleink részére ingyenes banki tanácsadással állunk rendelkezésre.
Referencia szám: m325679-ml FIX 3% lakáshitelre megvehető
Tetszett ez az eladó Budapest XVI. kerületi felújítandó 2 szobás családi ház? Hívd fel a hirdetőt most, és tudj meg mindent erről az eladó családi házról! Ha gondolod nézelődj tovább az eladó ház Budapest XVI. kerület oldal hirdetései között. Ennek az eladó háznak az ára 99900000 Ft és mivel az alapterülete 80 négyzetméter, ezért az átlagos négyzetméterára 1248750 HUF/m2.
Az eladó házak menüpontban további hirdetések között is böngészhetsz. Ha van kedved, akkor böngészhetsz a Tamásné Mocsári Ildikó összes hirdetése között, vagy akár a/az OTPip Budapest XIV. kerület Vezér utca 147 - OTP Ingatlanpont Iroda összes hirdetése között is.

