Eladó új építésű ház Budapest XVI. kerület
| Kedvencbe | Megosztás | Árfigyelő |
| Kedvezményes lakáshitel ajánlatok | ||
| 255 000 000 HUF | ||
Ingatlan adatai
- Eladó vagy kiadó:Eladó
- Település:Budapest XVI. kerület
- Kategória:Ház
- Alkategória:Családi ház
- Alapterület:182 m2
- Telekterület:542 m2
- Csere is:Nem
- Hirdető:Cég
- Élő videón megtekinthető:Nem
- Építés éve:2026
- Szobaszám:5
- Állapot:Új építésű
- Hány szintes az ingatlan:nincs megadva
- Tetőtér:nincs megadva
- Komfortosság:nincs megadva
- Parkolási lehetőség:nincs megadva
- Fűtés:Gáz (cirko)
- Bútorozottság:nincs megadva
- Fényviszony:nincs megadva
- Tájolás:DNY
- Kilátás:nincs megadva
- Internet:nincs megadva
- Akadálymentesített:nincs megadva
- Energiatanúsítvány:nincs megadva
- Villany:Van
- Víz:Van
- Gáz:Van
- Csatorna:Van
- Üzenetküldés
- Hívás


Hitel ajánlat
Ingatlan hirdetés leírása
A 16. kerület kedvelt, kertvárosi részén újépítésű családi ház...
A 16. kerület kedvelt, kertvárosi részén újépítésű családi ház, referenciákkal rendelkező építtetőtől eladóA projekt folyamosan épült, várható kulcsrakész átadás 2026. Nyara!
De nézzük a részleteket!
- 542 m2-es telek
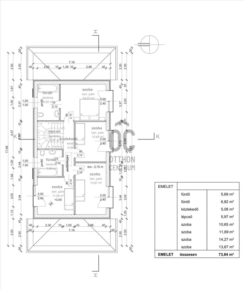
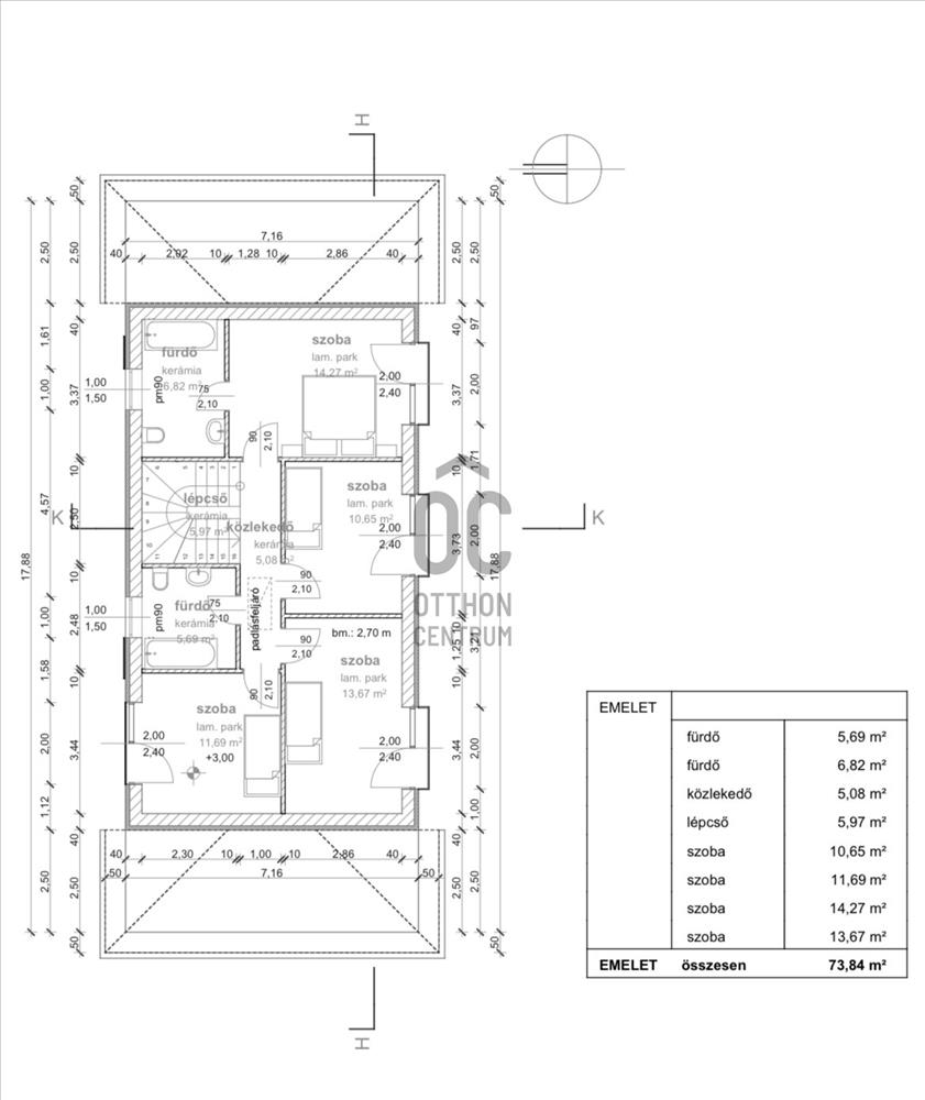
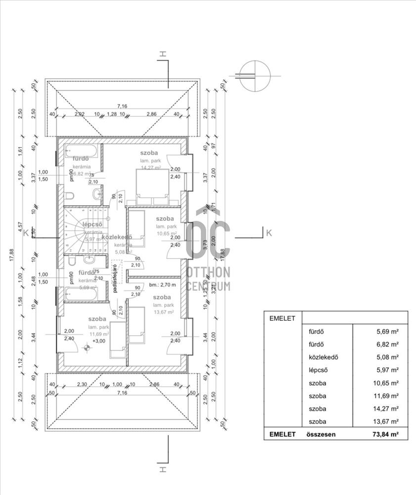
- 182 m2 nettó alapterületű, kétszintes ház
- a földszinten hatalmas 54 m2-es amerikai konyhás nappali, egy mosdó és egy háztartási helyiség, valamint egy garázs és egy kerti tároló kapott helyett
- az emeleten 4 halószoba, és két kádas fürdőszoba kerül kialakításra
- magas műszaki tartalom, antracit cseréptető, gázcirkó, hűtő-fűtő klíma, 3 rétegű műanyag ablakok, 15 cm-es szigetelés
- a belső nyílászárók, falszínek, burkolatok, szaniterek még választhatók!
- Az ár tartalmazza a tereprendezést, valamint a fa kerítés elkészítését is
Kiváló lokáció. Okatási intézmények, játszótér, park, szabadidős lehetőségek a közvetlen közelben!
Bevásárlási lehetőség 5 perc alatt elérhető. Buszmegálló 5 percre, hév megálló 10 percre.
Jöjjön, és nézze meg még ma! Kiváló lehetőség!
Igény esetén bankfüggetlen szakemberünk ingyenes tanácsadással, ügyintézéssel áll rendelkezésére. Hitel.hu - Hasonlítsa össze a bankok lakáshitel ajánlatait

