Eladó újszerű állapotú ház Budapest XVI. kerület
| Kedvencbe | Megosztás | Árfigyelő |
| Kedvezményes lakáshitel ajánlatok | ||
| 269 000 000 HUF | ||
Ingatlan adatai
- Eladó vagy kiadó:Eladó
- Település:Budapest XVI. kerület
- Kategória:Ház
- Alkategória:Családi ház
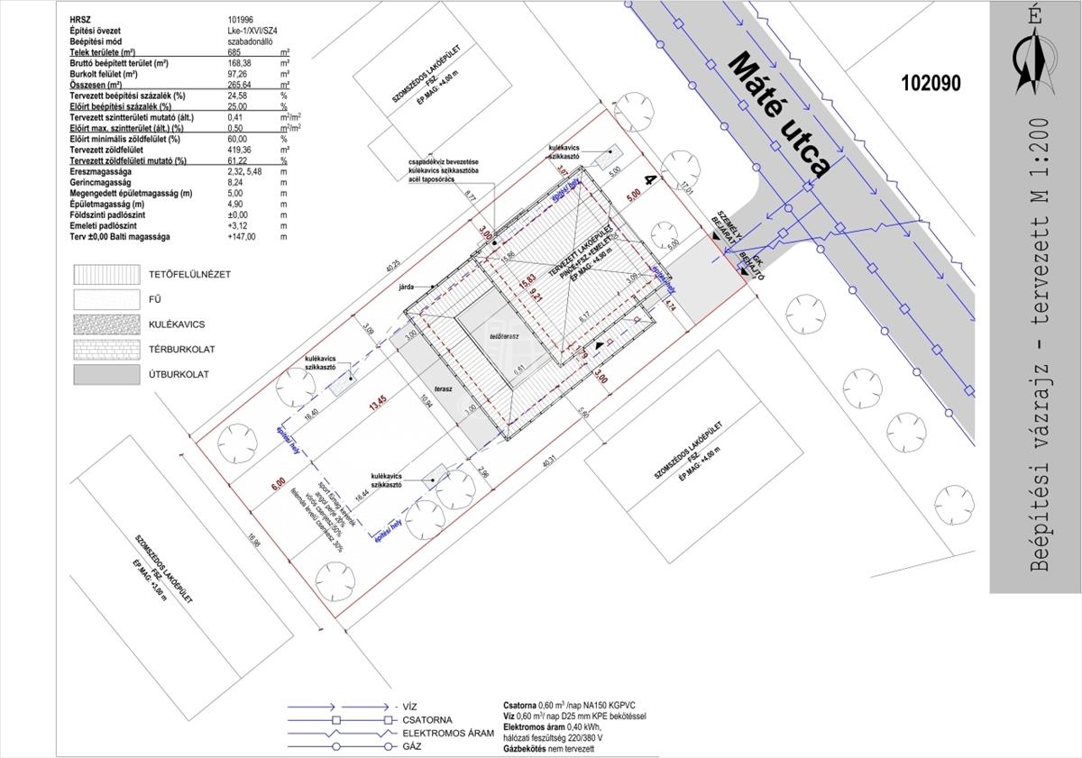
- Alapterület:232 m2
- Telekterület:685 m2
- Csere is:Nem
- Hirdető:Cég
- Élő videón megtekinthető:Nem
- Építés éve:2025
- Szobaszám:5
- Állapot:Újszerű, kitűnő
- Hány szintes az ingatlan:3 szintes
- Tetőtér:nincs megadva
- Komfortosság:nincs megadva
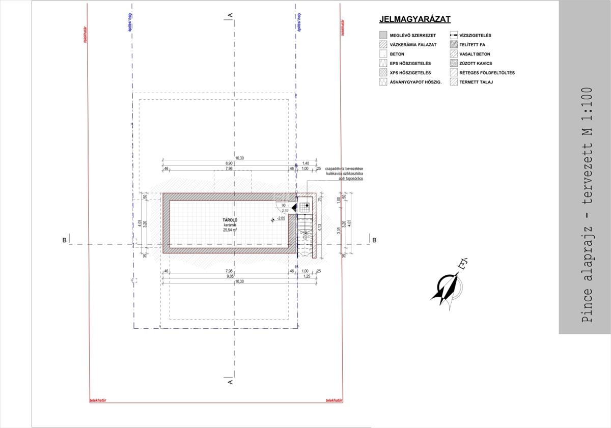
- Pince:Van
- Parkolási lehetőség:Beállóban
- Fűtés:nincs megadva
- Bútorozottság:nincs megadva
- Fényviszony:nincs megadva
- Tájolás:nincs megadva
- Kilátás:nincs megadva
- Internet:nincs megadva
- Akadálymentesített:nincs megadva
- Energiatanúsítvány:nincs megadva
- Villany:Van
- Víz:Van
- Gáz:Utcában
- Csatorna:Van
- Üzenetküldés
- Hívás


Hitel ajánlat
Ingatlan hirdetés leírása
XVI. kerület – Sashalom, Máté utca 4. Prémium kulcsrakész csal...
XVI. kerület – Sashalom, Máté utca 4.Prémium kulcsrakész családi ház terasszal, pincével és hőszivattyús fűtéssel
A XVI. kerület egyik legkedveltebb, csendes mellékutcájában, Sashalmon kínálunk megvételre egy kiváló minőségben egy bővítés keretében gyakorlatilag teljesen újjáépült családi házat.
Az ingatlan 30 cm-es Porotherm téglából épült, 20 cm eps homlokzati hőszigeteléssel, a födémben 30 cm ásványgyapot, a padlóban 10 cm lépésálló hőszigetelés biztosítja a kimagasló energiahatékonyságot.
A nyílászárók 3 rétegű üvegezéssel készültek, elektromos alumínium redőnnyel és szúnyoghálóval szerelve.
A ház 25 m²-es pincével, nettó 124 m² földszinti lakótérrel és nettó 56, 54 m² emeleti szinttel rendelkezik.
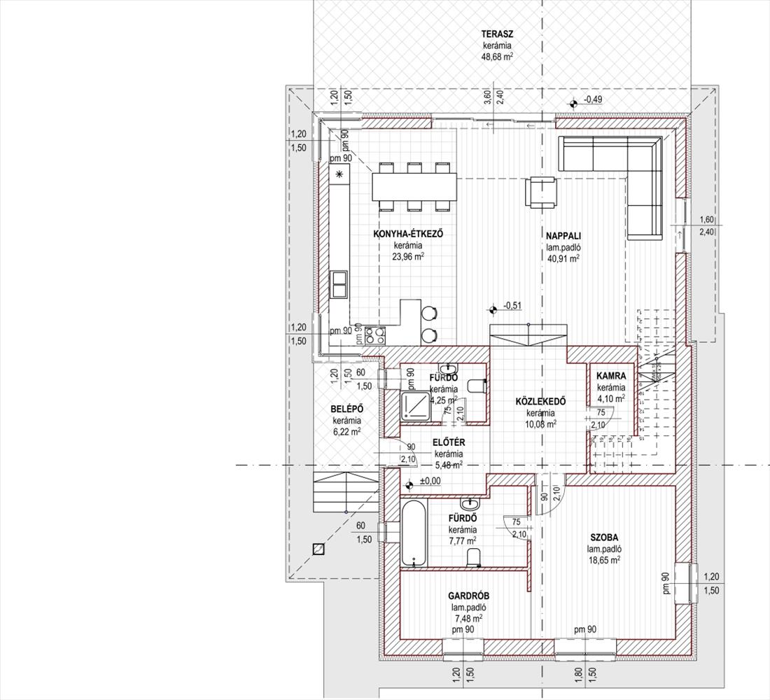
A földszinten tágas, 65 m²-es amerikai konyhás nappali, valamint egy 19 m²-es hálószoba található saját fürdőszobával és gardróbbal, továbbá egy 37, 74 m²-es fedett terasz és 6, 22 m²-es belépő teszi teljessé a kényelmet.
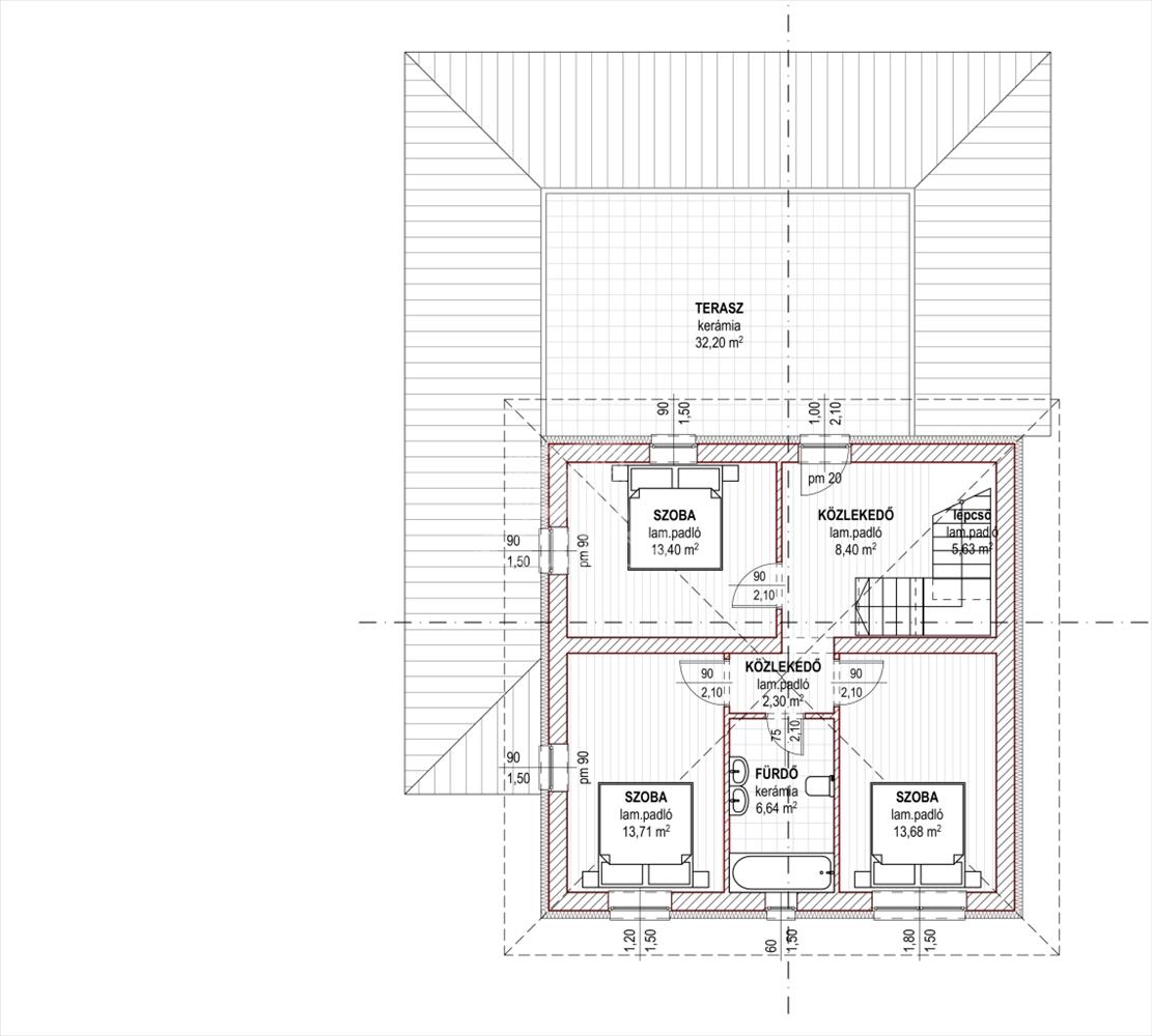
Az emeleten 3 hálószoba, fürdő, háztartási helyiség és egy 31, 92 m²-es terasz kapott helyet.
A fűtésről és hűtésről split rendszerű hőszivattyú gondoskodik padlófűtéssel és minden helyiségben fan-coil hűtéssel.
A házban Geberit wc található mindhárom fürdőben, riasztórendszer mozgásérzékelőkkel, valamint kamerarendszer-előkészítés is beépítésre került.
A kapu elektromos meghajtású, az udvar térkövezett, a környezet rendezett.
A ház 2 hónapon belül egyedi igények szerint befejezhető, az alábbi, választható tartalommal:
– hidegburkolat: 10 000 Ft/m²
– melegburkolat: 6 000 Ft/m²
– beltéri ajtók: 80 000 Ft/db
– fürdőkád: 70 000 Ft
– csaptelepek: 25 000 Ft/db
– épített zuhany
– Legrand elektromos szerelvények
A ház elhelyezkedése kiváló: nyugodt, családi házas övezetben, mégis közel a tömegközlekedéshez, iskolákhoz és bevásárlási lehetőségekhez.
INGYENES hitel tanácsadás, CSOK Plusz ügyintézés!
BANKFÜGGETLEN hitelcentrumunk az összes elérhető bank és hitelintézet ajánlatát versenyezteti az Ön kedvéért, ráadásul DÍJMENTESEN.
- Egyedi, bankfiókban nem elérhető kamat- és díjkedvezmények
- Hitelképesség vizsgálat
- Idő, energia és pénz megtakarítás
- Teljes hivatali ügyintézés
Amennyiben hirdetésem felkeltette az érdeklődését vagy egyéb információra van szüksége hívjon bizalommal! Hitel.hu - Hasonlítsa össze a bankok lakáshitel ajánlatait

