Eladó felújítandó ház - Budapest XVII. kerület
- INGYENES HIRDETÉS FELADÁS
Ingatlan adatai
- Feladva:62 napja a megveszLAK-on
- Eladó vagy kiadó:Eladó
- Település:Budapest XVII. kerület
- Kategória:Ház
- Alkategória:Családi ház
- Alapterület:214 m2
- Telekterület:550 m2
- Csere is:Nem
- Hirdető:Cég
- Élő videón megtekinthető:Nem
- Építés éve:1985
- Szobaszám:8
- Állapot:Felújítandó
- Hány szintes az ingatlan:2 szintes
- Tetőtér:nincs megadva
- Komfortosság:Összkomfortos
- Pince:nincs megadva
- Parkolási lehetőség:Saját parkoló
- Fűtés:nincs megadva
- Bútorozottság:nincs megadva
- Fényviszony:nincs megadva
- Tájolás:ÉK
- Kilátás:Kertre néző
- Internet:nincs megadva
- Klíma:nincs megadva
- Akadálymentesített:nincs megadva
- Energiatanúsítvány:nincs megadva
- Villany:nincs megadva
- Víz:nincs megadva
- Gáz:nincs megadva
- Csatorna:nincs megadva
- Kapcsolatfelvétel

Tec 17 Ingatlan Kft.
+36-(70)-504-8744
Mondd meg a hirdetőnek, hogy a megveszLAK-on találtad a hirdetést.
Hitel ajánlatok
Ingatlan hirdetés leírása
RÁKOSKERESZTÚRON, A MEDICAL CENTER KÖZELÉBEN, CSALÁDI HÁZAS ÖV...
Rákoskeresztúron, a medical center közelében, családi házas övezetben kínálunk megvételre egy önálló, kétszintes, felújítandó állapotú, 214 nm -es családi házat, amely egy 550 nm -es telken helyezkedik el. a telken egy autóműhely is található, amely több mint 30 éve folyamatosan, vállalkozási céllal ÜZEMEL.
A ház B30-as téglából épült, stabil beton alappal és vasbeton gerendás födémmel.
A villanyvezetékek cseréje megtörtént.
Az ingatlan fűtéséről gázkonvektorok gondoskodnak, a meleg vízellátás pedig szintenként eltérő módon megoldott: a földszinten központi átfolyós gázvízmelegítő, míg az emeleten cirkó rendszer biztosítja a komfortot.
A nyílászárók a földszinten vegyes állapotúak, részben már korszerű műanyagra cseréltek, míg a többi helyiségben és az emeleten fa nyílászárók találhatók.
5 Szobába hűtő – fűtő klíma lett felszerelve.
A burkolatok a földszinten: nappaliban parketta, a további helyiségekben járólap található.
Az emeleten a szobák parkettásak, az egyik gardróbszoba padlószőnyeggel burkolt, a többi helyiség pedig járólappal ellátott.
Az ingatlanhoz tartozó telek számos extra lehetőséget kínál
Két különálló szerelőműhely található a telken
Két garázs szerelőaknával, amely ideális autószereléshez vagy vállalkozási tevékenységhez
Egy külön szerszámtároló helyiség is rendelkezésre áll
Egyállásos garázs a lakóépülethez kapcsolódva
Akár 5 autó számára biztosított felszíni beállási lehetőség
KIALAKÍTÁS:
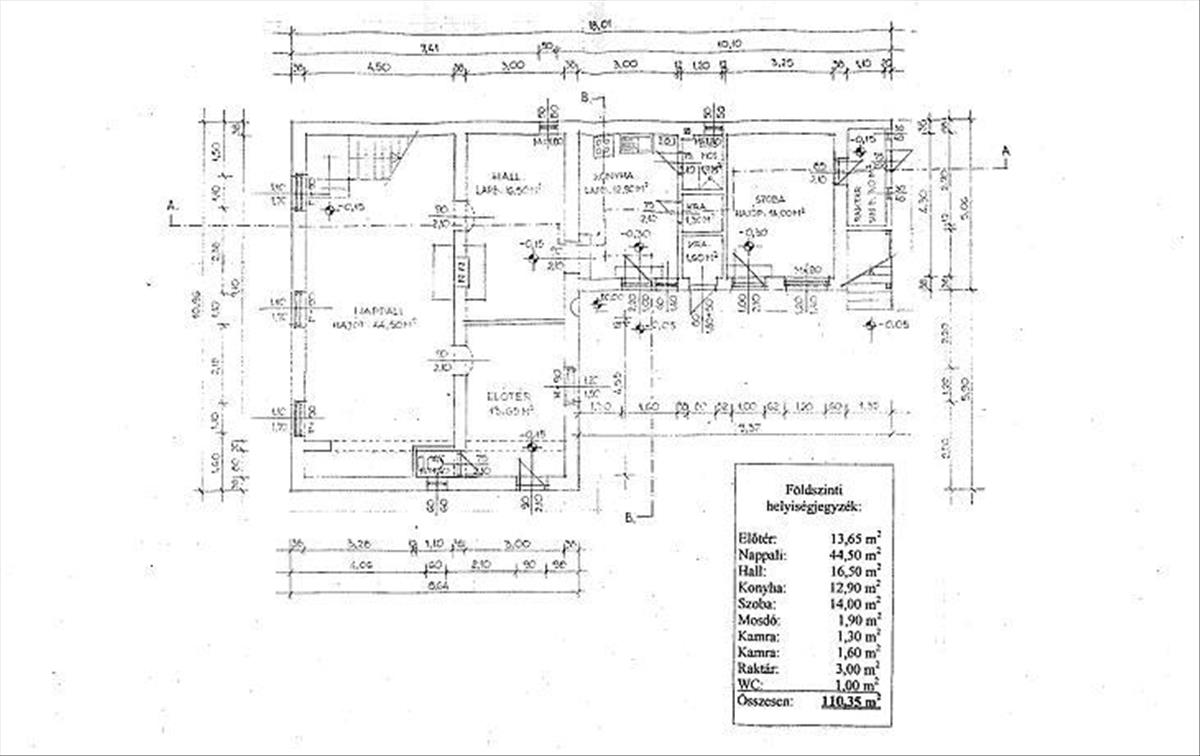
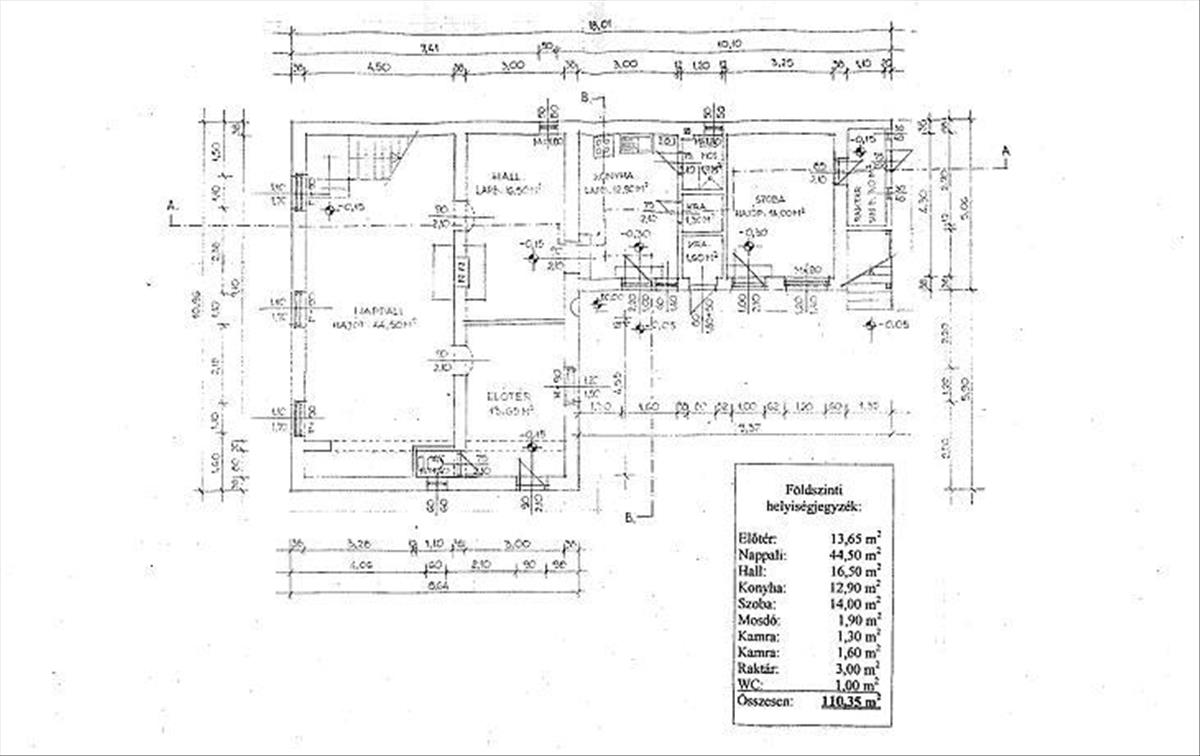
Földszint: Előszoba, hall, nappali, konyha + étkező, kádas fürdőszoba, 2 wc, 2 kamra, előtér, raktár.
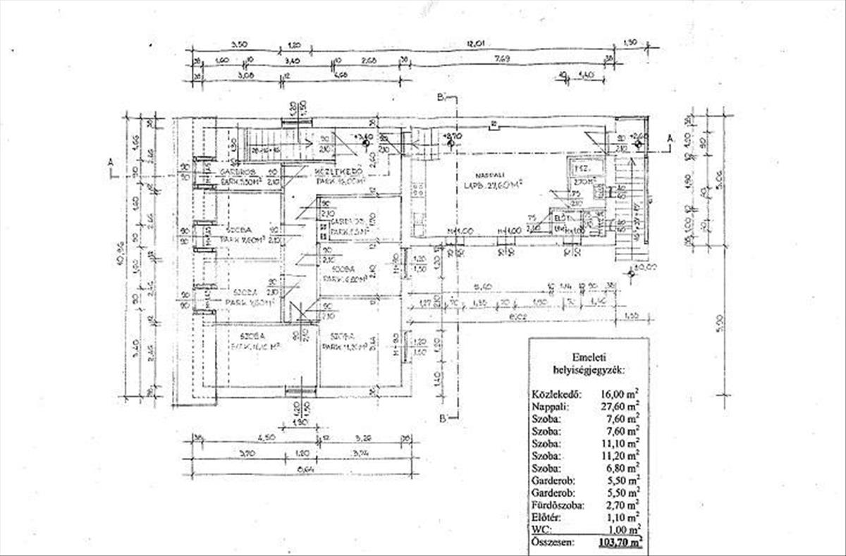
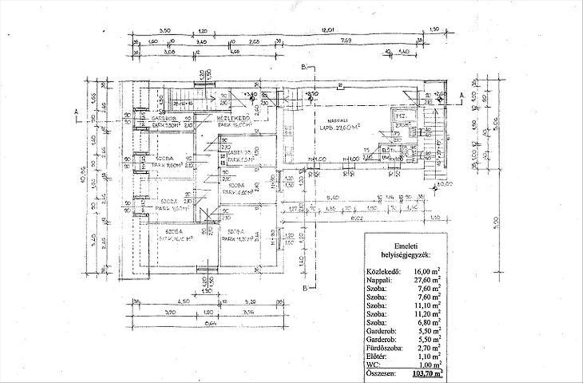
Emelet: 5 szoba, nappali, fürdőszoba, wc, 2 gardrób, előtér, közlekedő.
KÖRNYÉK:
A városközponthoz közel helyezkedik el. Közelben, pár perc sétára található bevásárlási lehetőség, gyógyszertár, bölcsőde, óvoda, iskola, játszótér.
A közelben a következő tömegközlekedési lehetősége elérhetőek: 161 a, 46, 97 e, 161, 161 e, 162, 162 a, 169 e, 195, 198, 202 e, 261 e, 262 buszok, valamint a 956, 990, 998 éjszakai járatok.
FINANSZÍROZÁS:
Az ingatlan banki finanszírozással is megvásárolható, melyben irodánk ingyenes tanácsadással áll rendelkezésükre.
IRÁNYÁR: 129, 9 M ft
VEVŐINK részére a közvetítés DÍJTALAN!
A hirdetésben szereplő adatok tájékoztató jellegűek. FIX 3% lakáshitelre megvehető
Tetszett ez az eladó Budapest XVII. kerületi felújítandó 8 szobás családi ház? Hívd fel a hirdetőt most, és tudj meg mindent erről az eladó családi házról! Ha gondolod nézelődj tovább az eladó ház Budapest XVII. kerület oldal hirdetései között. Ennek az eladó háznak az ára 129900000 Ft és mivel az alapterülete 214 négyzetméter, ezért az átlagos négyzetméterára 607009 HUF/m2.
Az eladó házak menüpontban további hirdetések között is böngészhetsz. Ha van kedved, akkor böngészhetsz a Tec 17 Ingatlan Kft. összes hirdetése között, vagy akár a/az MPD Hungary Kft. összes hirdetése között is.

