Eladó jó állapotú ház - Budapest XVIII. kerület
- INGYENES HIRDETÉS FELADÁS
Ingatlan adatai
- Eladó vagy kiadó:Eladó
- Település:Budapest XVIII. kerület
- Kategória:Ház
- Alkategória:Családi ház
- Alapterület:290 m2
- Telekterület:882 m2
- Csere is:Nem
- Hirdető:Cég
- Élő videón megtekinthető:Nem
- Építés éve:2003
- Szobaszám:5 + 1 fél
- Állapot:Jó állapotú
- Hány szintes az ingatlan:Földszintes
- Tetőtér:nincs megadva
- Komfortosság:nincs megadva
- Pince:nincs megadva
- Parkolási lehetőség:Teremgarázsban
- Fűtés:Gáz (cirko)
- Bútorozottság:nincs megadva
- Fényviszony:Napfényes
- Tájolás:DK
- Kilátás:nincs megadva
- Internet:nincs megadva
- Klíma:Van
- Akadálymentesített:nincs megadva
- Energiatanúsítvány:nincs megadva
- Villany:Telken belül
- Víz:Telken belül
- Gáz:Telken belül
- Csatorna:nincs megadva
- Kapcsolatfelvétel

Gregoryan Artur
+36-(70)-630-0162
Mondd meg a hirdetőnek, hogy a megveszLAK-on találtad a hirdetést.
Referencia szám: M321213
Hitel ajánlatok
Ingatlan hirdetés leírása
Eladó Ház, Budapest 18. ker.
Exkluzív családi ház eladó a XVIII. kerület kedvelt részén, Lónyay telepen
Budapest XVIII. kerületének egyik legkeresettebb részén, a Lónyay telepen eladó egy 882 nm -es telken álló, 2003-ban kiváló minőségben épült, 2 szintes, összesen 290 nm -es családi ház.
A földszinten (150 nm ) egy tágas, 4 + 1 félszobás lakótér, valamint egy hangulatos télikert kapott helyet.
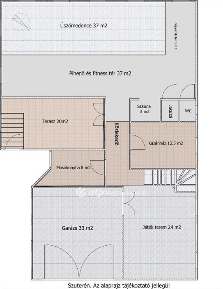
A 140 nm -es szuterén szinten került kialakításra a beltéri uszoda wellness résszel, továbbá dupla állásos, rámpafűtéses garázs, gépészeti helyiség, pingpong szoba és mosókonyha.
A ház minden igényt kielégítő műszaki tartalommal rendelkezik:
– fűtés és hűtés gázkazánnal és hűtő-fűtő klímával
– kiépített kamerarendszer
– rendezett, gondozott kert
– telken belül több autó parkolása megoldott
– kerti fa tároló
A környék infrastruktúrája kiváló: üzletek, szolgáltatások, tömegközlekedés és sztk 2–5 percen belül elérhetők.
Ideális választás nagycsaládosoknak vagy azoknak, akik egy tágas, minőségi, wellness funkciókkal rendelkező otthont keresnek.
Megtekintésért keressen bizalommal!
>Exclusive family house for sale in District xviii, Lónyaytelep
For sale in one of the most popular areas of Budapest’s 18th district, on the Lónyaytelep, a high-quality, two-level family house built in 2003, with a total size of 290 sqm, located on an 882 sqm plot.
The ground floor (150 sqm) features a spacious 4 + 1 half-room living area and a bright winter garden.
The 140 sqm basement level includes an indoor swimming pool with wellness area, a double garage with heated ramp, mechanical room, ping-pong room and laundry room.
Key features:
– gas boiler heating and heating/cooling air conditioning
– built-in security camera system
– landscaped garden
– multiple parking spaces within the plot
– wooden garden storage
Excellent infrastructure: shops, public transport, medical services and amenities are within 2–5 minutes.
An ideal home for families seeking space, comfort and premium quality living.
Contact me for more details or a viewing.
Referencia szám: m321213-ml Hitel.hu - Hasonlítsa össze a bankok lakáshitel ajánlatait
Tetszett ez az eladó Budapest XVIII. kerületi jó állapotú 5 egész és 1 fél szobás családi ház? Hívd fel a hirdetőt most, és tudj meg mindent erről az eladó családi házról! Ha gondolod nézelődj tovább az eladó ház Budapest XVIII. kerület oldal hirdetései között. Ennek az eladó háznak az ára 249000000 Ft és mivel az alapterülete 290 négyzetméter, ezért az átlagos négyzetméterára 858621 HUF/m2.
Az eladó házak menüpontban további hirdetések között is böngészhetsz. Ha van kedved, akkor böngészhetsz a Gregoryan Artur összes hirdetése között, vagy akár a/az OTPip Gregoryan Artur összes hirdetése között is.

