Eladó új építésű ház - Budapest XVIII. kerület
- INGYENES HIRDETÉS FELADÁS
Ingatlan adatai
- Eladó vagy kiadó:Eladó
- Település:Budapest XVIII. kerület
- Kategória:Ház
- Alkategória:Családi ház
- Alapterület:160 m2
- Telekterület:660 m2
- Csere is:Nem
- Hirdető:Cég
- Élő videón megtekinthető:Nem
- Építés éve:2025
- Szobaszám:5
- Állapot:Új építésű
- Hány szintes az ingatlan:nincs megadva
- Tetőtér:nincs megadva
- Komfortosság:Összkomfortos
- Pince:nincs megadva
- Parkolási lehetőség:Garázsban
- Fűtés:nincs megadva
- Bútorozottság:nincs megadva
- Fényviszony:nincs megadva
- Tájolás:nincs megadva
- Kilátás:nincs megadva
- Internet:nincs megadva
- Klíma:nincs megadva
- Akadálymentesített:nincs megadva
- Energiatanúsítvány:nincs megadva
- Villany:Van
- Víz:Van
- Gáz:nincs megadva
- Csatorna:Van
- Kapcsolatfelvétel

Bradács Edina
+36-(20)-336-5257
Mondd meg a hirdetőnek, hogy a megveszLAK-on találtad a hirdetést.
Ingatlan hirdetés leírása
XVIII. kerület Almáskert 4 SZOBA 160 NM
A Családi ingatlan kínálatában elérhető egy fölszintes családi ház 160 nm hasznos alapterülettel, amerikai konyhás nappali plusz 4 szobával, a XVIII. kerület Almáskert részén, aszfaltozott utcában.
Főbb jellemzők:
- Teljes privát szféra, saját kerttel és terasszal.
- Amerikai konyhás nappali plusz 4 szoba
- Fürdőszoba wc-vel, plusz zuhanyzós fürdő
- Hőszivattyús padlófűtés egy energiatakarékos megoldás, amely biztosítja a kellemes hőérzetet egész évben.
- Garázs, autója védelméért
- Teraszos: Tökéletes helyszín a családi összejövetelekhez vagy a pihenéshez.
- Kertkapcsolatos: Kertje ideális a gyerekeknek és a háziállatoknak, valamint a szabadban való kikapcsolódásra.
- Teljesen körbekerített telek
Műszaki tartalom (részlet)
- vasbeton sávalap
- falazata 30-as Porotherm tégla 15 cm- szigeteléssel, lábazat 12 cm xps szigetelés
- válaszfalak 10 cm-es ytong- födémen 25 cm-es kőzetgyapot szigeteléssel
- hőszigetelt külső nyílászárók, felér kivitelben
- hideg-, meleg burkolatok, szaniterek belső nyílászárók választhatók
Várható átadás: 2026 II. Negyedév
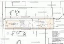
Az alaprajz tájékoztató jellegű!
Az ingatlan kiváló elhelyezkedésének köszönhetően könnyen megközelíthetőek a közlekedési lehetőségek, iskolák, boltok és egyéb szolgáltatások.
Az ügyfeleinket banksemleges hitelügyintéző díjmentesen segíti megtalálni a legmegfelelőbb konstrukciót. Az ingatlan csok+ kompatibilis!
Ne hagyja ki ezt a remek lehetőséget! Ideális választás családok számára, akik szeretnék élvezni a nyugodt életet, miközben a város közelségét is kihasználják. Hitel.hu - Hasonlítsa össze a bankok lakáshitel ajánlatait


