Eladó jó állapotú ház - Budapest XVIII. kerület
- INGYENES HIRDETÉS FELADÁS
Ingatlan adatai
- Eladó vagy kiadó:Eladó
- Település:Budapest XVIII. kerület
- Kategória:Ház
- Alkategória:Családi ház
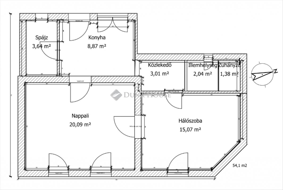
- Alapterület:88 m2
- Telekterület:710 m2
- Csere is:Nem
- Hirdető:Cég
- Élő videón megtekinthető:Nem
- Építés éve:1945
- Szobaszám:4
- Állapot:Jó állapotú
- Hány szintes az ingatlan:Földszintes
- Tetőtér:nincs megadva
- Komfortosság:nincs megadva
- Pince:Van
- Parkolási lehetőség:nincs megadva
- Fűtés:Elektromos
- Bútorozottság:nincs megadva
- Fényviszony:Napfényes
- Tájolás:DK
- Kilátás:nincs megadva
- Internet:nincs megadva
- Klíma:Van
- Akadálymentesített:nincs megadva
- Energiatanúsítvány:nincs megadva
- Villany:Van
- Víz:Van
- Gáz:Van
- Csatorna:Van
- Kapcsolatfelvétel

Kovács Tímea
+36-(30)-685-1247
Mondd meg a hirdetőnek, hogy a megveszLAK-on találtad a hirdetést.
Referencia szám: HZ067330
Ingatlan hirdetés leírása
Eladó ház, Budapest 18. ker.
Eladó a 18. kerület közkedvelt részén, nyugodt, rendezett környezetben, egy 54 nm-es, és egy 33nm-es, két generációnak kiválóan alkalmas családi házak, 710 nm-es telken!
Mindkét ház két szobás, és összkomfortos.
A nagyobbik ingatlan felújított, a tetőre 5, 8 kw 20 panel napelem került felszerelésre, ami mindkét otthont ellátja energiával.
A kisebbik ingatlan felújítandó, alatta pince található.
A kert kiválóan alkalmas baráti összejövetelekre, ásott kút, szaletli, sütögető, és egy kis játszótér szolgálja kényelmünket.
Ha felkeltette érdeklődését ez a kiváló paraméterekkel rendelkező ingatlan, további kérdéseivel, megtekintésért kérem hívjon, akár hétvégén is!
Referencia szám: hz067330 FIX 3% lakáshitelre megvehető


