- >>
- eladó ingatlanok
- >>
- eladó ház
- >>
- eladó ház Budapest XX. kerület
- >>
Eladó ház - Budapest XX. kerület
| | |||
| Kedvencnek jelölöm | Elküldöm emailben | Megosztás | Szavazás |
| FIX 3% lakáshitelre megvehető | |||
| 84 900 000 HUF | |||
Ingatlan adatai
- Eladó vagy kiadó:Eladó
- Település:Budapest XX. kerület
- Kategória:Ház
- Alkategória:Családi ház
- Alapterület:295 m2
- Telekterület:535 m2
- Csere is:Nem
- Hirdető:Cég
- Élő videón megtekinthető:Nem
- Építés éve:2008
- Szobaszám:11
- Állapot:nincs megadva
- Hány szintes az ingatlan:Földszintes
- Tetőtér:nincs megadva
- Komfortosság:nincs megadva
- Parkolási lehetőség:nincs megadva
- Fűtés:Hőszivattyús
- Bútorozottság:nincs megadva
- Fényviszony:Napfényes
- Tájolás:DK
- Kilátás:nincs megadva
- Internet:nincs megadva
- Akadálymentesített:nincs megadva
- Energiatanúsítvány:nincs megadva
- Villany:Van
- Víz:Van
- Gáz:Van
- Csatorna:Van
- Üzenetküldés
- Hívás

Referencia szám: HZ047979

Hitel ajánlat
Ingatlan hirdetés leírása
Eladó ház, Budapest 20. ker.
Szent Erzsébet térnél a kerület központjában, 535 nm-es telken álló, három szintesnégy lakásos társasház tervekkel, dokumentációval, kedvező haszonnal ELADÓ!
A bal oldali telekhatáron álló épület részletesen:
-1. (Nem) lakószint: 3x11 nm tároló + 16 nm gépészet
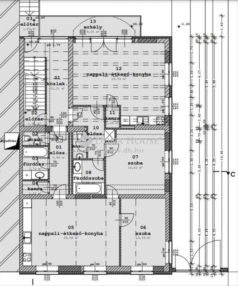
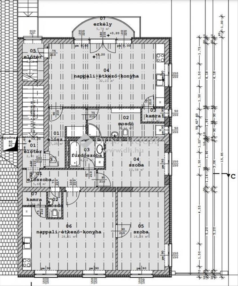
- földszint: 115 nm fűtőtt alapterület + 10nm terasz
- emelet: 121 nm fűtött alapterület + 6 nm erkély
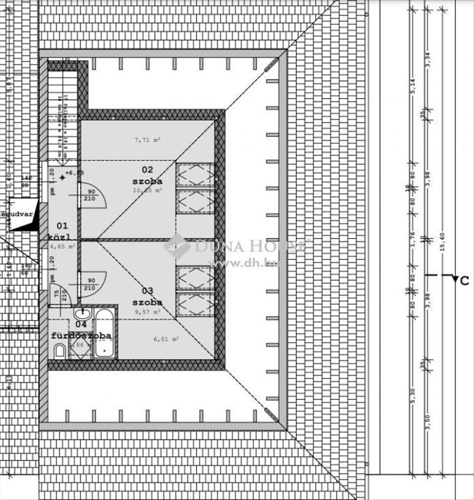
- tetőtér: 26 nm nettó alapterület
Jelenlegi tervek alapján 262 nm adható el, autóbeállókat a telken belül kell
kialakítani. a tulajdoni lap tehermentes, a befejezés azonnal megkezdhető,
az építés nem engedélyköteles. Hőszivattyűs fűtés lett tervezve, de ettől
igény esetén el lehet térni.
További kérdéseivel keressen bizalommal, vagy küldjön üzenetet!
A Duna House teljes kínálatával kapcsolatban forduljanak hozzám bizalommal!
Bankfüggetlen pénzügyi szakembereink tanácsadással, ügyintézéssel tudják segíteni Önöket álmaik, céljaik megvalósításában!
Vegye igénybe díjmentes konzultációinkat!
Https://www. Facebook. Com/otthonkonnyeden
Referencia szám: hz047979 FIX 3% lakáshitelre megvehető

