Eladó jó állapotú ház Budapest XXI. kerület
| Kedvencbe | Megosztás | Árfigyelő |
| Kedvezményes lakáshitel ajánlatok | ||
| 185 000 000 HUF | ||
Ingatlan adatai
- Eladó vagy kiadó:Eladó
- Település:Budapest XXI. kerület
- Kategória:Ház
- Alkategória:Családi ház
- Alapterület:292 m2
- Telekterület:676 m2
- Csere is:Nem
- Hirdető:Cég
- Élő videón megtekinthető:Nem
- Építés éve:1998
- Szobaszám:10
- Állapot:Jó állapotú
- Hány szintes az ingatlan:3 szintes
- Tetőtér:nincs megadva
- Komfortosság:nincs megadva
- Parkolási lehetőség:Teremgarázsban
- Fűtés:Hőszivattyús
- Bútorozottság:nincs megadva
- Fényviszony:Napfényes
- Tájolás:nincs megadva
- Kilátás:nincs megadva
- Internet:nincs megadva
- Akadálymentesített:nincs megadva
- Energiatanúsítvány:E
- Villany:nincs megadva
- Víz:nincs megadva
- Gáz:nincs megadva
- Csatorna:nincs megadva
- Üzenetküldés
- Hívás

Referencia szám: M307511

Hitel ajánlat
Ingatlan hirdetés leírása
Eladó Ház, Budapest 21. ker.
Eladó többgenerációs családi ház Csepelen, gyönyörű, parkosított telken. Kiváló választás nagycsaládosoknak, összeköltözőknek vagy akár vállalkozóknak!Csepelen, a központhoz közeli, rendezett és csendes mellékutcában kínálunk megvételre egy háromszintes, kiváló állapotú, téglaépítésű családi házat, amely ideális otthona lehet több generáció számára, de elrendezése és mérete miatt akár vállalkozásra, irodai vagy rendelő célú hasznosításra is tökéletesen alkalmas.
A ház belső kialakítása lehetővé teszi az önálló, szeparált életterek használatát: a földszinten tágas, pár éve felújított lakás található három szobával, étkezőkonyhával, fürdőszobával és egy kényelmes hallal. Az emeleten egy külön bejáratú lakrész lett kialakítva, nappalival, két hálószobával, gardróbszobával, étkezőkonyhával és teraszkapcsolattal.
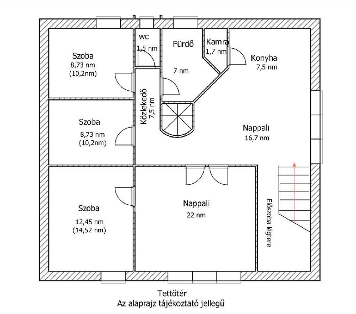
A tetőtérben további három szoba nyújt helyet, így az ingatlan összesen akár három család számára is ideális, vagy kényelmes otthon és munkahely egyben.
A házhoz tartozik egy különálló, 43 m-es lakóegység is, amely jelenleg is lakható, de akár irodának, rendelőnek, szalonnak vagy bármilyen kisebb vállalkozásnak is tökéletes.
A telken két különálló garázs is helyet kapott, így több autó biztonságos elhelyezése is megoldott.
A ház fűtéséről és melegvíz-ellátásáról korszerű hőszivattyú és gázkazán gondoskodik, a rezsiköltség rendkívül kedvező, minden mérés külön történik, így a fenntartás költséghatékony és tervezhető.
A telek rendezett, körbejárható, parkosított, tele örökzöldekkel és dísznövényekkel, a nyugalmat és a természet közelségét kínálva a leendő tulajdonosnak. Az ingatlan tehermentes, megegyezés szerint gyorsan költözhető.
Az elhelyezkedés szintén kiváló: pár perc sétával elérhető óvoda, iskola, bölcsőde, bevásárlási lehetőségek, pékség.
A közlekedés szempontjából is jó választás, a buszmegálló 4 perc távolságra van, majd átszállás után a H7-es hév -el pedig a Boráros tér elérhető, és mindez kb. 30 Perc alatt megtehető út.
A ház fűtéséről és melegvíz-ellátásáról korszerű hőszivattyú és gázkazán gondoskodik, a rezsiköltség rendkívül kedvező, minden mérés külön történik, így a fenntartás költséghatékony és tervezhető.
Amennyiben szeretne egy tágas, csendes otthont, vagy gyorsan bérbeadható ingatlant keres, kérem hívjon bizalommal. Az OTP Bankcsoport teljes körű ügyintézéssel áll az eladók és a vevők rendelkezésére! a kínálatunkból választott ingatlan finanszírozásához kedvezményes hitel- és lízingkonstrukciókat, lakástakarék-pénztári megoldásokat kínálunk. Az adásvételi szerződés megkötéséhez igény szerint megbízható ügyvédi közreműködést biztosítunk, és segítséget nyújtunk az adásvételhez kapcsolódó ügyek intézésében. Referenciaszám: M307511
185000000 Ft
Referencia szám: m307511-ml Hitel.hu - Hasonlítsa össze a bankok lakáshitel ajánlatait

