Eladó újszerű állapotú ház Budapest XXIII. kerület
| Kedvencbe | Megosztás | Árfigyelő |
| FIX 3% lakáshitelre megvehető | ||
| 149 000 000 HUF | ||
Ingatlan adatai
- Eladó vagy kiadó:Eladó
- Település:Budapest XXIII. kerület
- Kategória:Ház
- Alkategória:Családi ház
- Alapterület:185 m2
- Telekterület:217 m2
- Csere is:Nem
- Hirdető:Cég
- Élő videón megtekinthető:Nem
- Építés éve:2015
- Szobaszám:5
- Állapot:Újszerű, kitűnő
- Hány szintes az ingatlan:Földszintes
- Tetőtér:nincs megadva
- Komfortosság:nincs megadva
- Parkolási lehetőség:Beállóban
- Fűtés:Gáz (cirko)
- Bútorozottság:nincs megadva
- Fényviszony:nincs megadva
- Tájolás:nincs megadva
- Kilátás:nincs megadva
- Internet:nincs megadva
- Akadálymentesített:nincs megadva
- Energiatanúsítvány:nincs megadva
- Villany:Van
- Víz:Van
- Gáz:Van
- Csatorna:Van
- Üzenetküldés
- Hívás


Hitel ajánlat
Ingatlan hirdetés leírása
Csökkentettük az árat!
Megvételre kínálunk Soroksár frekventá...
Csökkentettük az árat! Megvételre kínálunk Soroksár frekventált részén egy önálló családi házat, ami két generációnak is alkalmas, vagy társasházzá alakítható.
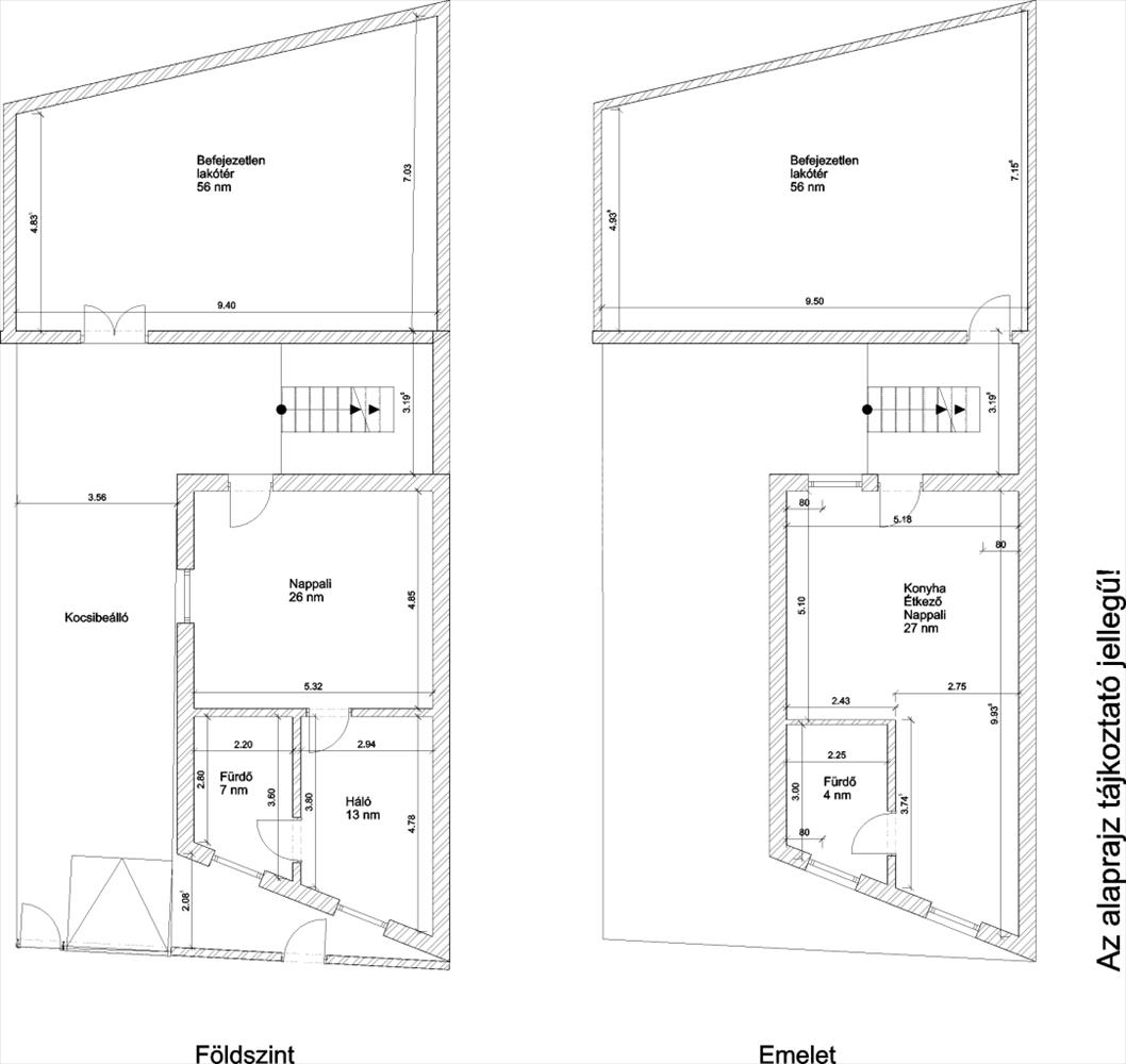
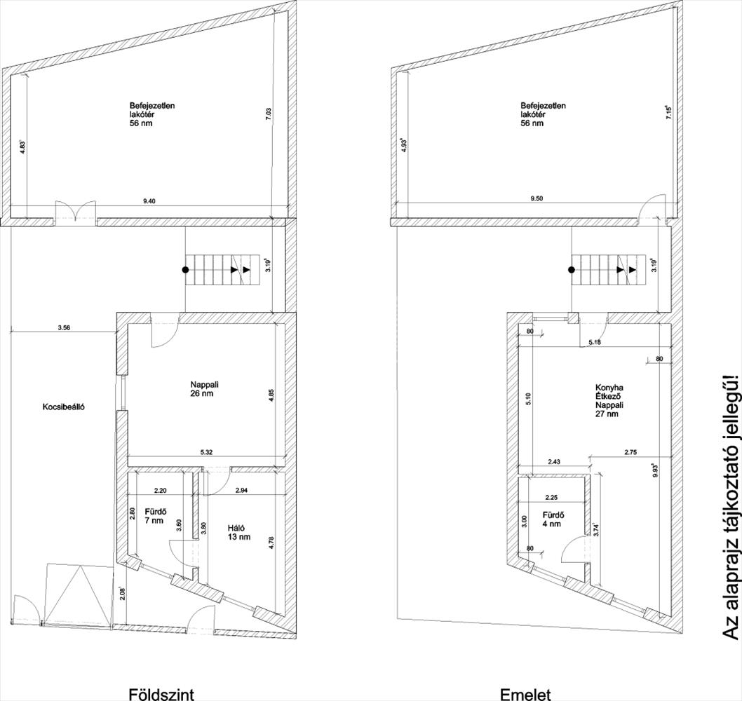
A hátsó épület még befejezésre vár, ami kétszintes, szintenként 56 m2. Az alsó szintet akár garázsnak vagy üzlethelyiségnek is ki lehet alakítani.
Az ingatlan beosztása:
Földszint: 46 m2
- nappali-konyha 26 m2
- fürdő 7 m2
- szoba 13 m2
Tetőtér: 31 m2
- nappali-konyha 27 m2
- fürdő 4 m2
Felszereltség:
- elektromos kapu
- elektromos redőnyök
- hűtő-fűtő klíma
- műanyag nyílászárók
Az udvarban 1 autó beállásra van lehetőség, további autóval közterületen megoldott a parkolás.
Amivel segítjük az Ön ingatlanvásárlását:
- ingyenes hitelügyintézés,
- jogi háttér,
- földhivatali ügyintézés,
- energetikai tanúsítvány.
Irodánk 30 éves szakmai tapasztalattal áll ügyfelei rendelkezésére!
Várom szíves megkeresését. FIX 3% lakáshitelre megvehető

