Eladó felújítandó ház - Dunaföldvár
- INGYENES HIRDETÉS FELADÁS
Ingatlan adatai
- Feladva:41 napja a megveszLAK-on
- Eladó vagy kiadó:Eladó
- Település:Dunaföldvár
- Kategória:Ház
- Alkategória:Családi ház
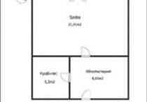
- Alapterület:108 m2
- Telekterület:784 m2
- Csere is:Nem
- Hirdető:Cég
- Élő videón megtekinthető:Nem
- Építés éve:1985
- Szobaszám:2 + 2 fél
- Állapot:Felújítandó
- Hány szintes az ingatlan:3 szintes
- Tetőtér:nincs megadva
- Komfortosság:nincs megadva
- Pince:nincs megadva
- Parkolási lehetőség:Udvaron
- Fűtés:Gáz (cirko)
- Bútorozottság:nincs megadva
- Fényviszony:Jó
- Tájolás:nincs megadva
- Kilátás:nincs megadva
- Internet:nincs megadva
- Klíma:nincs megadva
- Akadálymentesített:nincs megadva
- Energiatanúsítvány:nincs megadva
- Villany:nincs megadva
- Víz:nincs megadva
- Gáz:nincs megadva
- Csatorna:nincs megadva
- Kapcsolatfelvétel

Máté Katalin
+36-(70)-324-2430
Mondd meg a hirdetőnek, hogy a megveszLAK-on találtad a hirdetést.
Referencia szám: M324297
Hitel ajánlatok
Ingatlan hirdetés leírása
Eladó Ház, Dunaföldvár
Dunaföldvári családi ház nagy kerttel - Alakítsa saját igényeire!
Ár: 41 900 000 Ft
Dunaföldvár egyik csendes, nyugodt utcájában keresi új gazdáját ez a különleges adottságú, 3 szintes családi ház. Ha nem sablonm egoldást keres, hanem egy masszív alapot, amit saját ízlésére formálhat, ez az ingatlan Önnek szól.
-Alakítható terek: a 3 emeletes elrendezés és a mozgatható belső falak szabadságot adnak. Legyen szó külön gyerekbirodalomról, otthoni irodáról vagy tágas közösségi terekről, itt minden megvalósítható.
-Két generációnak is ideális: a 2 konyha és a szintenkénti vizesblokkok révén a ház akár két külön lakrészként is funkcionálhat, így tökéletes összeköltöző nagycsaládoknak.
-Gazdálkodók és kertbarátok álma: a 784 m2-es telken gazdagon termő gyümölcsfák várnak. a ház mögötti melléképületek, ólak és az autentikus füstölő kamra kiváló alapot adnak a háztáji gazdálkodáshoz vagy műhely kialakításához.
-Többcélú hasznosítás: Mérete és elrendezése miatt az ingatlan kiválóan alkalmas befektetésnek vagy akár céges szálláshely (munkásszálló) kialakítására is, kihasználva a környék gazdasági dinamikáját.
Az ingatlanról röviden:
-Telek: 784 m2 (gyümölcsös, melléképületek)
-Szintek száma: 3
-Állapot: Felújítandó (statikailag stabil, jó alap az átépítéshez)
Az ingatlan felújítást igényel, de szerkezetileg kiváló alap egy modern, mai igényeknek megfelelő otthon kialakításához.
Vevőinknek az OTP Bankcsoport kedvezményes hitelkonstrukciókat és teljes körű ügyintézést biztosít!
Jöjjön el, nézze meg a benne rejlő potenciált! Várom hívását! +36 30 680 7503 FIX 3% lakáshitelre megvehető
Tetszett ez az eladó Dunaföldvári felújítandó 2 egész és 2 fél szobás családi ház? Hívd fel a hirdetőt most, és tudj meg mindent erről az eladó családi házról! Ha gondolod nézelődj tovább az eladó ház Dunaföldvár oldal hirdetései között. Ennek az eladó háznak az ára 41900000 Ft és mivel az alapterülete 108 négyzetméter, ezért az átlagos négyzetméterára 387963 HUF/m2.
Az eladó házak menüpontban további hirdetések között is böngészhetsz. Ha van kedved, akkor böngészhetsz a Máté Katalin összes hirdetése között, vagy akár a/az OTPip Dunaújváros Kőműves utca 7 - OTP Ingatlanpont Iroda összes hirdetése között is.

