Eladó átlagos állapotú ház Dunaharaszti
| Kedvencbe | Megosztás | Árfigyelő |
| FIX 3% lakáshitelre megvehető | ||
| 129 900 000 HUF | ||
Ingatlan adatai
- Eladó vagy kiadó:Eladó
- Település:Dunaharaszti
- Kategória:Ház
- Alkategória:Családi ház
- Alapterület:236 m2
- Telekterület:1116 m2
- Csere is:Nem
- Hirdető:Cég
- Élő videón megtekinthető:Nem
- Építés éve:1983
- Szobaszám:5
- Állapot:Átlagos állapotú
- Hány szintes az ingatlan:Földszintes
- Tetőtér:nincs megadva
- Komfortosság:nincs megadva
- Parkolási lehetőség:Udvaron
- Fűtés:Gáz (cirko)
- Bútorozottság:nincs megadva
- Fényviszony:Jó
- Tájolás:nincs megadva
- Kilátás:nincs megadva
- Internet:nincs megadva
- Klíma:Van
- Akadálymentesített:nincs megadva
- Energiatanúsítvány:nincs megadva
- Villany:nincs megadva
- Víz:nincs megadva
- Gáz:nincs megadva
- Csatorna:nincs megadva
- Üzenetküldés
- Hívás

Hackenberger Rita
Mondd meg a hirdetőnek, hogy a megveszLAK-on találtad a hirdetést.
Referencia szám: M299378

Hitel ajánlat
Ingatlan hirdetés leírása
Eladó Ház, Dunaharaszti
Befektetésnek kiváló ingatlan! Magán óvoda ként üzemelt.Míg hátul lekerített saját kertel családi házban lakna addig a másik két ingatlan bevételt szerezne.
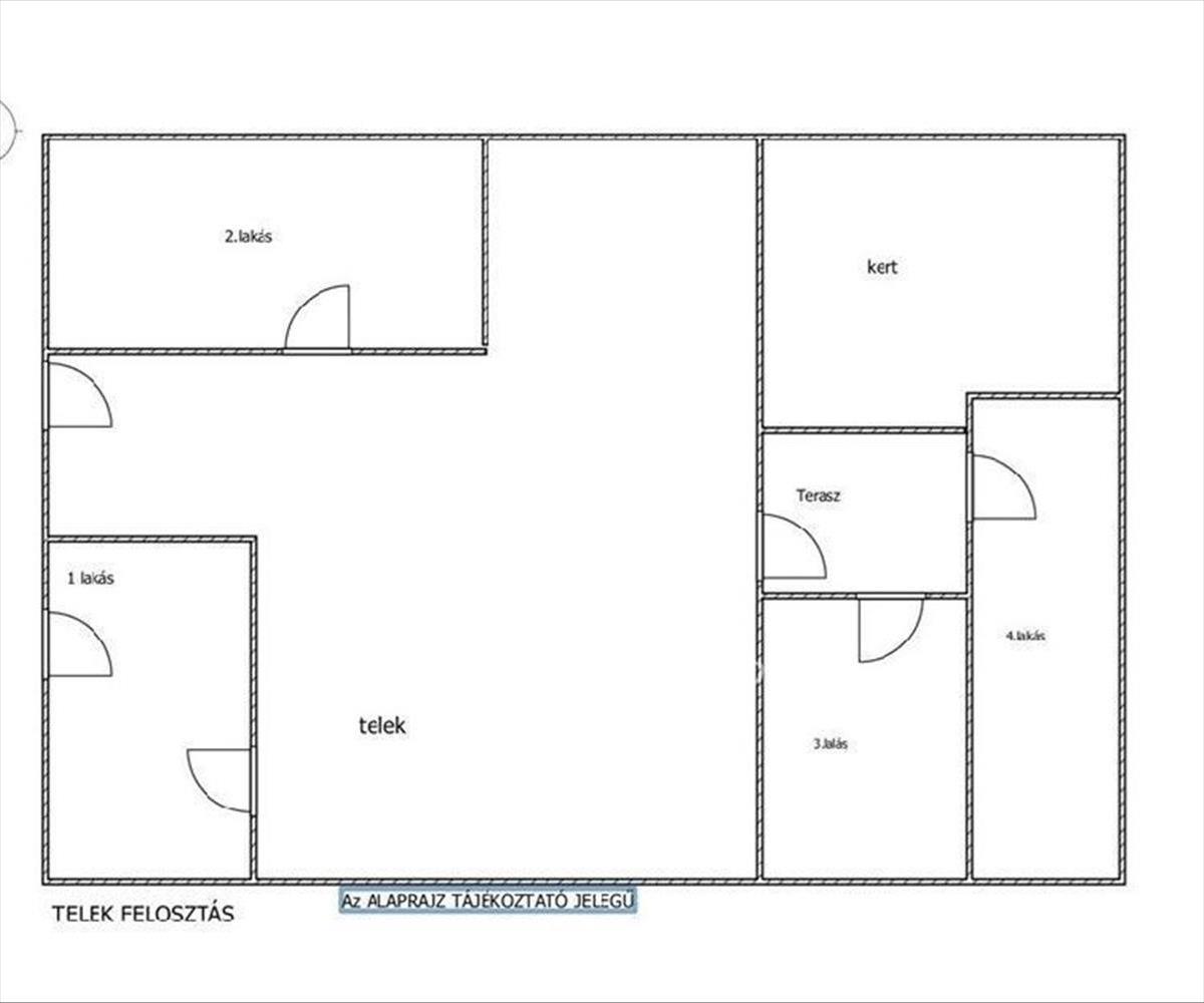
Eladásra kínálok egy 4 épülettel rendelkező, tehermentes ingatlant, amely befektetésnek is kiváló, csupán 30 percnyi távolságra a fővárostól, Dunaharaszti központi, csendes városrészében. Ez a 4 épületből álló, összesen 236 négyzetméteres hasznos alapterület egy 1116 négyzetméteres különlegesen nagy telken helyezkedik el. a 236 négyzetméterben nincs benne a két terasz hasznos négyzetmétere. Az első lakás a telek hátsó részén helyezkedik el, 65 négyzetméteres alapterülettel, közvetlen kertkapcsolattal, tágas teraszokkal. a beépített konyha mosogatógéppel villanytűzhellyel, elszívóval van felszerelve. a lakás további jellemzői: nappali és egy szoba, melyek parkettázottak, egy tágas konyha ebédlő, mely a nappaliból is elérhető, egy tárolóhelység, jelenleg gardrób, egy kádas kiépített zuhanyzós fürdőszoba WC-vel. a lakásban radiátoros fűtés található kombicirkóval és H-tarifás hűtő-fűtő klímával a kellemes hőmérsékletért és gazdaságos üzemeltetésért. a második lakás 49 négyzetméteres alapterülettel. Kertre néző ablakokkal, külön mérőórákkal. a lakás további jellemzői: ebédlő és konyha közvetlen kapcsolattal, két teljesen különálló szoba, egy fürdőszoba zuhanyzóval és WC-vel, előszoba. a lakásban radiátoros fűtés található kombicirkóval és H-tarifás hűtő-fűtő klíma a kellemes klímáért és gazdaságos üzemeltetésért. a két különálló lakáshoz egy 15 négyzetméteres fedett terasz tartozik, és egy ásott kút, melyről az ingatlan öntözőrendszere is működik. a kertben gyermek homokozó és játszótér található. a kert füvesített, hátsó részét, cserjék és gyümölcsfák árnyékolják. a telek mérete további lehetőségeket kínál a jövőbeli tulajdonos számára. a harmadik épület mely 93, 2 négyzetméter jelenleg vállalkozásként működik 25 éve, adottságait tekintve akár lakás is kialakítható vagy a tágas teremnek köszönhetően, -mely 48 négyzetméter-, nagyobb létszámú felnőtt, vagy gyermek befogadására alkalmas. Utcafronton elhelyezkedő nagy ablakok által a nap reggeltől estig bevilágítja a termet. Az épület további jellemzői: fedett előterasz, előszoba, konyha beépített konyhabútorral. Öltözö zuhanyzóval és Wc-vel, fürdőszoba gyermekeknek 2 mosdóval és 3 Wc-vel. Az épületben radiátoros fűtés található kombicirkóval és H-tarifás hűtő-fűtő klíma a kellemes klímáért és gazdaságos üzemeltetésért. a negyedik épület jellemzői: közvetlen utcafronton elhelyezkedő 30 négyzetméteres terem mely kiscsoportos torna és tánc foglalkozásokra lett kialakítva. Parkettázott, négy, utcára nyíló ablakkal, fedett előterasszal, ahonnan a bejárat nyílik, hozzátartozó Wc és mosdóval mely 2 négyzetméter. Inverteres hűtő-fűtő klímával van felszerelve. További információk: az épületek 1983-ban épültek, téglából, ipari árammal és H-tarifás mérővel ellátott ingatlan egység. a nyílászárók nagyrészben kétrétegű üvegezésűek. a ház árnyékosabb oldala hőszigetelve lett. a ház csendes, nyugodt környéken található, madár csicsergős környezetben. a közelben óvoda, iskola, kisboltok találhatók, és pár perc autózással nagyobb bevásárlóközpontok is elérhetőek. a város dinamikusan fejlődik, infrastruktúrája vonzó az ideköltözők számára. a volánbusz megállója 3 perc sétára van, ahonnan 30 perc alatt elérhető Budapest Népliget. a vonat 2 perc séta. Családias nyugodt környék az ingatlan a város középpontjában található, bérbeadásra mindegyik épület alkalmas, ezért befektetésnek kiváló. FIX 3% lakáshitelre megvehető

