Eladó jó állapotú ház - Érd
- INGYENES HIRDETÉS FELADÁS
Ingatlan adatai
- Eladó vagy kiadó:Eladó
- Település:Érd
- Kategória:Ház
- Alkategória:Családi ház
- Alapterület:230 m2
- Telekterület:983 m2
- Csere is:Nem
- Hirdető:Cég
- Élő videón megtekinthető:Nem
- Építés éve:1976
- Szobaszám:5 + 1 fél
- Állapot:Jó állapotú
- Hány szintes az ingatlan:2 szintes
- Tetőtér:nincs megadva
- Komfortosság:nincs megadva
- Pince:nincs megadva
- Parkolási lehetőség:Teremgarázsban
- Fűtés:nincs megadva
- Bútorozottság:nincs megadva
- Fényviszony:nincs megadva
- Tájolás:nincs megadva
- Kilátás:nincs megadva
- Internet:nincs megadva
- Klíma:nincs megadva
- Akadálymentesített:nincs megadva
- Energiatanúsítvány:nincs megadva
- Villany:Telken belül
- Víz:Telken belül
- Gáz:Telken belül
- Csatorna:Telken belül
- Kapcsolatfelvétel

Pásztor Gabriella
+36-20-393-4670
Mondd meg a hirdetőnek, hogy a megveszLAK-on találtad a hirdetést.
Ingatlan hirdetés leírása
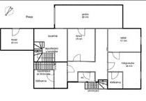
Eladó Érd, Tusculanum híres-neves utcájában, nagyon jó közleke...
Eladó Érd, Tusculanum híres-neves utcájában, nagyon jó közlekedési adottságokkal rendelkező, mégis csendes helyen elhelyezkedő hatalmas családi ház és étterem napelemmel! a 983 nm-es telken lévő ingatlan jelenleg egy 130 nm-es lakásból, egy maximálisan felszerelt, 100 nm-es étteremből, illetve a teljes ház alatt található 116 nm-es pincéből áll. Az étteremből lakás, iroda, üzlethelyiség is kialakítható! Az éttermet a tulajdonosa 2003-ban bővítette a házhoz, ekkor kapta meg a működési engedélyét is, de egyéb tevékenységre is kérhető engedély. a fagerendás vendégtér 53 fő befogadására alkalmas, ehhez a vendégek részére fenntartott 50 nm kerthelyiség, ami a családi kertrésztől kiválóan elszeparált. Az étteremből a lakás, a kerten át is könnyedén megközelíthető. Itt akármilyen vállalkozási forma létesíthető, a terület adott. a jelenlegi vállalkozási forma folytatásához minden szükséges berendezés megtalálható. a lakás impozáns, tágas belső terekkel rendelkezik, fekvéséből adódóan a helyiségek naposak. a nappalihoz és a konyhához 1-1 terasz csatlakozik. a szobák franciaerkélyesek, az ablakokon redőny található. a ház felosztása: Földszinten konyha, átadóablakkal a nappali felé, kamra, 2 szoba, fürdőszoba, wc, közlekedő. Étterem vendégtér, konyha, iroda, női, férfi mosdó. emeleten galéria, 2 szoba, 1 félszoba. a pinceszinten garázs, tárolók, személyzeti mosdó, hidegkonyha, hűtőkamrák találhatóak. Az ingatlan fűtését gáz cirkó, és vegyestüzelésű kazán is biztosítja, az étteremben padlófűtés, a lakásban radiátoros hőleadókkal, viszont a tetőn elhelyezett 12 kw napelemnek köszönhetően, a fűtésszámlára és a melegvíz fogyasztásra nem lesz gondja, nagyjából a teljes energia igényt fedezi! a falakon 8 cm szigetelés, ezen kívül hőszigetelő vakolat található, az ablakok műanyag, 2 rétegű hővédő üvegezéssel készültek, a tetőtér hőszigetelése is kiváló. a házat tulajdonosai folyamatosan karbantartják, korszerűsítik. a kert rendezett, tele gyümölcsfákkal, nagy terasszal, a locsolást ásott kút segíti. a szerződés megkötéséhez igény esetén megbízható ügyvédi közreműködést biztosítunk. További információkért keressen bizalommal! Hitel.hu - Hasonlítsa össze a bankok lakáshitel ajánlatait


