Eladó újszerű állapotú ház - Érd
- INGYENES HIRDETÉS FELADÁS
Ingatlan adatai
- Feladva:4 hónapja a megveszLAK-on
- Eladó vagy kiadó:Eladó
- Település:Érd
- Kategória:Ház
- Alkategória:Családi ház
- Alapterület:140 m2
- Telekterület:865 m2
- Csere is:Nem
- Hirdető:Cég
- Élő videón megtekinthető:Nem
- Építés éve:2016
- Szobaszám:5
- Állapot:Újszerű, kitűnő
- Hány szintes az ingatlan:Földszintes
- Tetőtér:nincs megadva
- Komfortosság:nincs megadva
- Pince:nincs megadva
- Parkolási lehetőség:Beállóban
- Fűtés:Gáz (cirko)
- Bútorozottság:nincs megadva
- Fényviszony:nincs megadva
- Tájolás:nincs megadva
- Kilátás:nincs megadva
- Internet:nincs megadva
- Klíma:nincs megadva
- Akadálymentesített:nincs megadva
- Energiatanúsítvány:nincs megadva
- Villany:Van
- Víz:Van
- Gáz:Van
- Csatorna:Van
- Kapcsolatfelvétel

Dora Kriszta
+36-(70)-370-7396
Mondd meg a hirdetőnek, hogy a megveszLAK-on találtad a hirdetést.
Hitel ajánlatok
Ingatlan hirdetés leírása
MODERN OTTHON ÉRD, FENYVES-PARKVÁROSBAN TÁGAS TEREK, REMEK E...
Modern otthon érd, FENYVES-PARKVÁROSBAN
TÁGAS terek,
REMEK elrendezés,
KORSZERŰ műszaki megoldások,
ÉLHETŐ/ÉLVEZHETŐ kert jellemzi ezt a HÁZAT
KÖRNYÉK:
Érd legkedveltebb városrésze Fenyves-Parkváros. Csendes, családi házas övezet, rendezett utcákkal, szép házakkal és jó szomszédsággal.
Az autópályától kellően távol helyezkedik el ahhoz, hogy a forgalom zaja ne legyen zavaró, ugyanakkor gyorsan elérhető és élvezhető a városközpont minden előnye.
HÁZ:
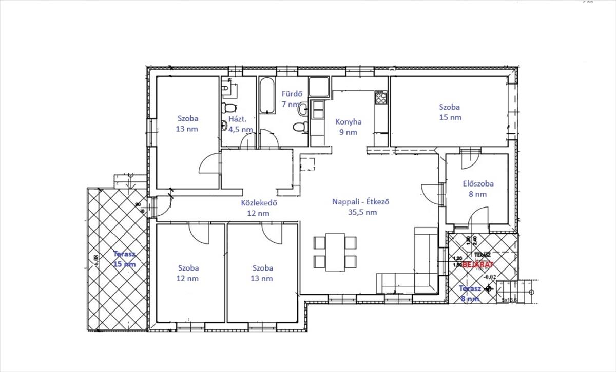
2016-ban épült. Lakótere 129 nm . a ház mérete családokra lett szabva.
Elrendezése az alaprajz szerinti. Amerikai konyhás nappali, 4 hálószoba, 2 fürdőszoba, tágas előszoba és közlekedő található benne.
Hátul, a kert felé pedig egy kényelmes méretű, fedett terasz található.
Falazata 30 cm-es tégla, 10 cm hőszigeteléssel. a födém vasbeton, mely lehetőséget ad a tetőtér beépítésére.
Fűtésről gázcirkó gondoskodik, radiátoros hőleadókkal, emellett klíma és kandalló is rendelkezésre áll.
A 2023-ban telepitett, 6kWh-s napelemes rendszernek köszönhetően a ház vilanyszámlája gyakorlatilag 0 Ft.
A ház energetikai besorolása A++
KERT:
Ez az a kert, ami nem csak szép, hanem valóban használható is.
Az utcafront felől a magas növényzet biztosítja az intimitást, az előkert gondosan parkosított, automata öntözőrendszerrel ellátott.
A hátsó kert sarkában dupla autóbeálló került kialakításra, térkövezett felhajtóval.
A kert parkosított része a pihenést szolgálja. Gyermekeknek játszótér, veteményes a kertészkedni vágyóknak, biztonságos környezet a kutyusoknak.
Tárolóból a kertben sincs hiány, kettő is rendelkezésre áll.
JÖJJÖN el, nézze meg amennyiben egy szerethető, élhető, modern otthonra vágyik, jó HELYEN.
AMENNYIBEN nem rendelkezik a teljes vételárral, segítünk Önnek megtalálni a legjobb megoldást!
BANKFÜGGETLEN hitelcentrumunk minden elérhető bank és hitelintézet ajánlatát versenyezteti az Ön kedvéért, ráadásul díjmentesen. Önnek nincs más dolga, mint elbeszélgetni munkatársunkkal, aki a hallott információk alapján versenyre hívja a bankokat, hogy Ön hosszú távon is a legjobb konstrukciót kaphassa. a legjobb ajánlatokból végül Ön választhatja ki a nyertest. Munkatársaink sokéves szakmai tapasztalattal várják Önt, előre egyeztetve akár a normál munkaidő után is. Hitel.hu - Hasonlítsa össze a bankok lakáshitel ajánlatait
Tetszett ez az eladó Érdi újszerű állapotú 5 szobás családi ház? Hívd fel a hirdetőt most, és tudj meg mindent erről az eladó családi házról! Ha gondolod nézelődj tovább az eladó ház Érd oldal hirdetései között. Ennek az eladó háznak az ára 174000000 Ft és mivel az alapterülete 140 négyzetméter, ezért az átlagos négyzetméterára 1242857 HUF/m2.
Az eladó házak menüpontban további hirdetések között is böngészhetsz. Ha van kedved, akkor böngészhetsz a Dora Kriszta összes hirdetése között, vagy akár a/az GDN Ingatlanhálózat összes hirdetése között is.

