Eladó jó állapotú ház - Érd
- INGYENES HIRDETÉS FELADÁS
Ingatlan adatai
- Feladva:4 hónapja a megveszLAK-on
- Eladó vagy kiadó:Eladó
- Település:Érd
- Kategória:Ház
- Alkategória:Családi ház
- Alapterület:195 m2
- Telekterület:850 m2
- Csere is:Nem
- Hirdető:Cég
- Élő videón megtekinthető:Nem
- Építés éve:2000
- Szobaszám:5
- Állapot:Jó állapotú
- Hány szintes az ingatlan:2 szintes
- Tetőtér:nincs megadva
- Komfortosság:nincs megadva
- Pince:nincs megadva
- Parkolási lehetőség:Garázsban
- Fűtés:Gáz (cirko)
- Bútorozottság:nincs megadva
- Fényviszony:nincs megadva
- Tájolás:nincs megadva
- Kilátás:nincs megadva
- Internet:nincs megadva
- Klíma:nincs megadva
- Akadálymentesített:nincs megadva
- Energiatanúsítvány:nincs megadva
- Villany:Van
- Víz:Van
- Gáz:Van
- Csatorna:Van
- Kapcsolatfelvétel

Dora Kriszta
+36-(70)-370-7396
Mondd meg a hirdetőnek, hogy a megveszLAK-on találtad a hirdetést.
Hitel ajánlatok
Ingatlan hirdetés leírása
--- ÉRD PARKVÁROSBAN, FANEVES UTCÁBAN TALÁLHATÓ, 2 GENERÁCIÓS ...
Érd parkvárosban, faneves utcában található, kétgenerációs családi ház keresi új tulajdonosát ---
KÖRNYÉK:
ÉRD egyik legjobb részén található az ingatlan. Csendes, nyugodt mellékutca, rendezett környék, jó szomszédság.
Közlekedése kiváló. Pár perc sétával elérhető a buszmegálló, mely a Bem térig vagy bp Kelenföldi pályaudvarig közlekedik.
Autóval 15 perc alatt BP-en lehet.
HÁZ:
KÉT genereciós, a két lakás két külön szinten található. Mindkettő közvetlen KERTKAPCSOLATOS.
A ház szigetelt, stabil. Műszaki és statikai problémája nincsen.
Fűtése gázcirkó, padlófűtéssel a hidegburkolatos helyiségekben és radiátorral a szobákban.
Az ingatlan külső állapota jó, a beltér egyedi ízlés alapján felújítandó.
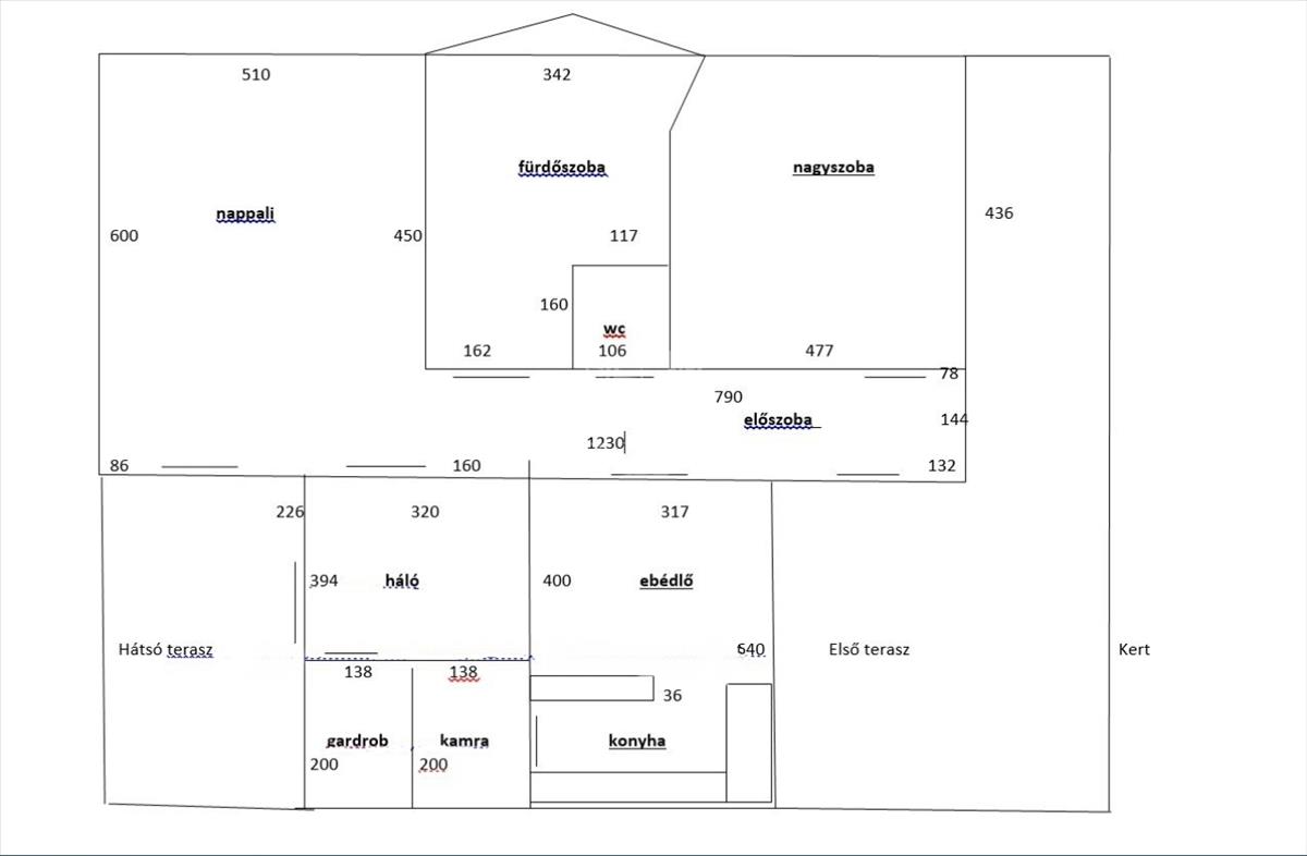
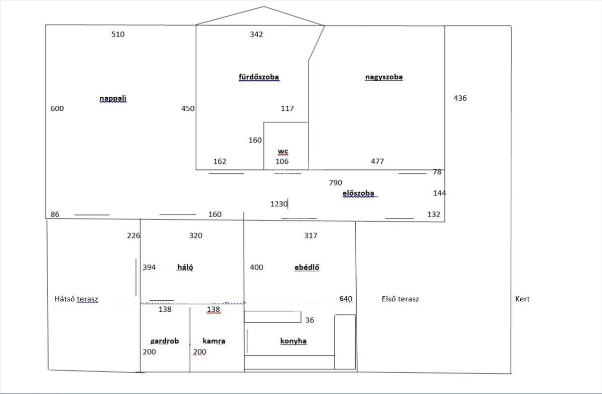
EMELETI lakás lakótere 130 nm .
Helyiségei:
- Konyha étkezővel
- Nappali
- 2 hálószoba
- Fürdőszoba
- WC
- Terasz és erkély kapcsolat
AZ emeleti lakás tetőtere beépithető, tovább nővelve a LAKÓTERET.
ALSÓ SZINT
Itt található a dupla garázs, 20 nm tároló és a 62 nm LAKÁS
LAKÁS HELYISÉGEI:
- Amerikai konyhás nappali
- Hálószoba
- Fürdőszoba
TELEK 850 nm
A kert gyönyörű, igazi kikapcsolódás az egész család számára, de külön hasznosítás esetén a kert is jól elszeparálható.
Szép fű, parkosított virágos kert.
A telek adottságai miatt mindkét lakásból közvetlen kertkapcsolat élvezhető.
Az ingatlan per-, teher- és igénymentes, 3 hónapos birtokbaadási határidővel költözhető.
További információkért, vagy megtekintéssel kapcsolatban keressen bizalommal!
AMENNYIBEN nem rendelkezik a teljes vételárral, segítünk Önnek megtalálni a legjobb megoldást!
BANKFÜGGETLEN hitelcentrumunk minden elérhető bank és hitelintézet ajánlatát versenyezteti az Ön kedvéért, ráadásul díjmentesen. Önnek nincs más dolga, mint elbeszélgetni munkatársunkkal, aki a hallott információk alapján versenyre hívja a bankokat, hogy Ön hosszú távon is a legjobb konstrukciót kaphassa. a legjobb ajánlatokból végül Ön választhatja ki a nyertest. Munkatársaink sokéves szakmai tapasztalattal várják Önt, előre egyeztetve akár a normál munkaidő után is. Hitel.hu - Hasonlítsa össze a bankok lakáshitel ajánlatait
Tetszett ez az eladó Érdi jó állapotú 5 szobás családi ház? Hívd fel a hirdetőt most, és tudj meg mindent erről az eladó családi házról! Ha gondolod nézelődj tovább az eladó ház Érd oldal hirdetései között. Ennek az eladó háznak az ára 198000000 Ft és mivel az alapterülete 195 négyzetméter, ezért az átlagos négyzetméterára 1015385 HUF/m2.
Az eladó házak menüpontban további hirdetések között is böngészhetsz. Ha van kedved, akkor böngészhetsz a Dora Kriszta összes hirdetése között, vagy akár a/az GDN Ingatlanhálózat összes hirdetése között is.

