Csere ház - Érd
- INGYENES HIRDETÉS FELADÁS
Ingatlan adatai
- Eladó vagy kiadó:Eladó
- Település:Érd
- Kategória:Ház
- Alkategória:Családi ház
- Alapterület:135 m2
- Telekterület:193 m2
- Csere is:Igen
- Hirdető:Cég
- Élő videón megtekinthető:Nem
- Építés éve:2000
- Szobaszám:4 + 1 fél
- Állapot:Felújított
- Hány szintes az ingatlan:nincs megadva
- Tetőtér:nincs megadva
- Komfortosság:nincs megadva
- Pince:nincs megadva
- Parkolási lehetőség:nincs megadva
- Fűtés:Gáz (cirko)
- Bútorozottság:Bútorozott
- Fényviszony:nincs megadva
- Tájolás:nincs megadva
- Kilátás:nincs megadva
- Internet:nincs megadva
- Klíma:Van
- Akadálymentesített:nincs megadva
- Energiatanúsítvány:nincs megadva
- Villany:nincs megadva
- Víz:nincs megadva
- Gáz:nincs megadva
- Csatorna:nincs megadva
- Kapcsolatfelvétel

Temesi Hedda
+36707717168
Mondd meg a hirdetőnek, hogy a megveszLAK-on találtad a hirdetést.
Hitel ajánlatok
Ingatlan hirdetés leírása
Csak irodánk kínálatában! Érd közkedvelt részén, eladó egy 13...
Csak irodánk kínálatában!
Érd közkedvelt részén, eladó egy 135 m² hasznos alapterületű, nyugati tájolású, nappali + 4 szobás, kiváló elosztású családi ház 193 m²-es telken, privát kerttel, terasszal.
Szinte teljeskörűen felújított otthon, letisztult terekkel, modern konyhával, tágas, nappalival, rendkívül kellemes hangulatú szobákkal, átgondolt kialakítással és számos extrával rendelkezik, ideális választás bármelyik korosztály részére.
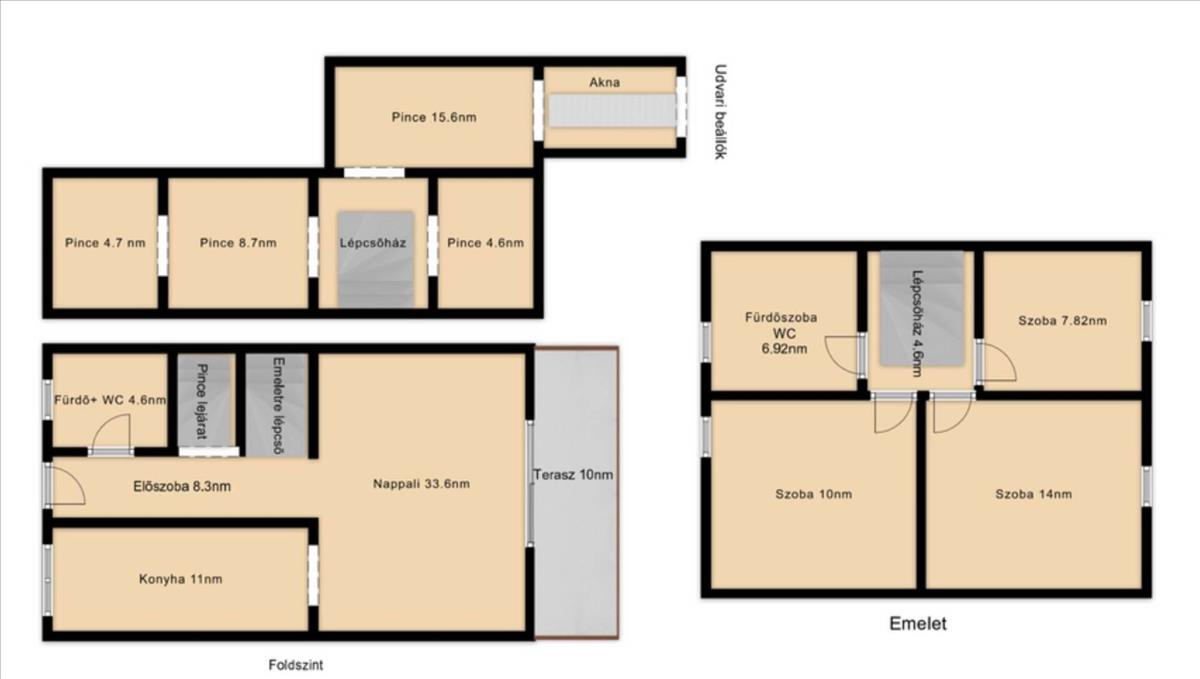
Földszint 58 m², itt kapott helyet, közlekedő, fürdőszoba wc (amely modernizálást igényel), egy hangulatos nappali, rendkívül élhető terekkel, amely kapcsolatos a 10m²-es terasszal és a hátsó kerttel, továbbá egy szeparált teljesen felszerelt modern konyha étkezővel.
Emelet hasznos alapterülete 43, 34 m².
Itt található, egy igényes fürdőszoba wc, és 3 kellemes hangulatú, világos szoba.
Erről a szintről jutunk fel a padlástérre, amely alkalmas dolgozónak, játszószobának, hasznos alapterülete kb. 5 M².
A hátsó kert kb. 70 M²-es, melyhez egy 10m²-es terasz kapcsolódik, míg az előkert mérete kb. 30 M².
Az aknás beálló résznél közvetlen lejárat biztosított a pincébe, így a pince két irányból is megközelíthető: a földszinti folyosóról, valamint az előkert felől.
- 135 M² hasznos lakótér
- nappali + 3 szoba+ tetőtéri szoba
- 10 m² terasz, közvetlen kertkapcsolattal
- 100 m² kert
- dupla udvari beálló + aknás autóbeálló
- elektromos autó töltési lehetőség
- 33 m² fűtött pince szint (4 helyiségből áll)
- külön mosószoba (pince szinten)
- riasztó
- kemence
Műszaki adatok.
Az ingatlan 2000-ben épült, Porotherm téglából, 5 cm szigetelést kapott.
2024-Ben szinte teljeskörű felújítás történt, új fűtésrendszer és radiátorok, új villanyvezetékek
műanyag nyílászárók, szúnyogháló, burkolatok, konyha, emeleti fürdőszoba.
Kisebb esztétikai felújításokra még szükség van, és földszinti fürdőszobát az új tulajdonos igénye szerint modernizálhatja.
Az emeleti szobákban még az eredeti vasradiátorok találhatóak, mely a teljesen új vezetékeknek köszönhetően könnyedén cserélhető, ezen a szinten hűtő-fűtő klíma is rendelkezésre áll, biztosítva az egész éves komfortot.
Az ingatlanhoz rendelkezésre áll villamossági felülvizsgálat, energetikai tanúsítvány, valamint részletes műszaki állapotfelmérés.
Kb. 15 Millió Ft értékű, igényes felújítás történt, amelyet a tulajdonosok részletes fotókkal is igazolni tudnak.
Körmyék:
Rendezett, barátságos csendes, kertvárosi utca, kedves szomszédokkal.
Érdi vasútállomás 3 perc sétára, buszmegálló 5 perc, iskola, óvoda ~1, 5 km, bevásárlási lehetőségek 1 km-en belül, új sportcentrum 300 m, városközpont 15–20 perc gyalog
M0, m1, m6, m7 gyorsan elérhető.
Az ingatlan jogilag rendezett, így minden elérhető hiteltípus igénybe vehető a vásárláshoz.
A tulajdoni lapon családi házként van nyilvántartva.
Megtekintésért és további információért keressen bizalommal a hét bármely napján! FIX 3% lakáshitelre megvehető
Tetszett ez a cserélhető Érdi felújított 4 egész és 1 fél szobás családi ház? Hívd fel a hirdetőt most, és tudj meg mindent erről a cserélhető családi házról! Ha gondolod nézelődj tovább a cserélhető ház Érd oldal hirdetései között. Ennek az eladó háznak az ára 99500000 Ft és mivel az alapterülete 135 négyzetméter, ezért az átlagos négyzetméterára 737037 HUF/m2.
A csere házak menüpontban további hirdetések között is böngészhetsz. Ha van kedved, akkor böngészhetsz a Temesi Hedda összes hirdetése között, vagy akár a/az Immo1 Érd összes hirdetése között is.

