Eladó új építésű ház - Göd
- INGYENES HIRDETÉS FELADÁS
Ingatlan adatai
- Eladó vagy kiadó:Eladó
- Település:Göd
- Kategória:Ház
- Alkategória:Családi ház
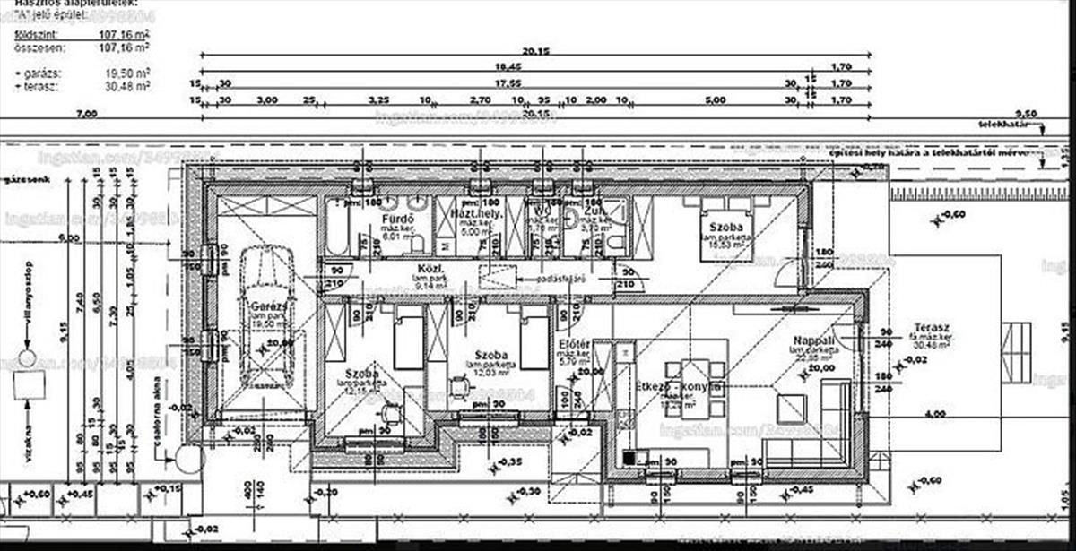
- Alapterület:122 m2
- Telekterület:450 m2
- Csere is:Nem
- Hirdető:Cég
- Élő videón megtekinthető:Nem
- Építés éve:2026
- Szobaszám:4
- Állapot:Új építésű
- Hány szintes az ingatlan:Földszintes
- Tetőtér:nincs megadva
- Komfortosság:Dupla komfortos
- Pince:nincs megadva
- Parkolási lehetőség:Saját parkoló
- Fűtés:Egyéb
- Bútorozottság:nincs megadva
- Fényviszony:nincs megadva
- Tájolás:K
- Kilátás:Kertre néző
- Internet:nincs megadva
- Klíma:nincs megadva
- Akadálymentesített:nincs megadva
- Energiatanúsítvány:nincs megadva
- Villany:nincs megadva
- Víz:nincs megadva
- Gáz:nincs megadva
- Csatorna:nincs megadva
- Kapcsolatfelvétel

Vede Casa Kft.
+36-(30)-109-6915
Mondd meg a hirdetőnek, hogy a megveszLAK-on találtad a hirdetést.
Hitel ajánlatok
Ingatlan hirdetés leírása
Göd központi részén eladó egy 122 nm-es, újépítésű családi ház...
Göd központi részén eladó egy 122 nm -es, új építésű családi ház, 450 nm -es saját kerttel.
Az ingatlan 30-as téglából épül, 15 cm-es eps szigeteléssel és háromrétegű műanyag nyílászárókkal, amelyek stabil és jól szigetelt otthont biztosítanak. a fűtést hőszivattyú látja el, a teljes ház padlófűtéses.
Az elrendezés átgondolt: amerikai konyhás nappali, négy szoba, háztartási helyiség, egy zuhanyzós és egy kádas fürdőszoba szolgálja a kényelmet.
A cserépfedés tartós megoldást ad, a tervezett garázs helyett pedig igény esetén egy plusz szoba is kialakítható.
Az ingatlan jó elhelyezkedése és modern műszaki tartalma hosszú távon is kényelmes, jól használható otthont biztosít.
Várható átadás: 2026. Október
Jelen esetben foglalózás után, hideg meleg burkolatok, beltéri nyílászárók, szaniterek választhatóak melyek a meghirdetett ár részét képezik a belső műszaki tartalom szerint
Megtekintés érdekében vagy felmerülő kérdés esetén keresse irodánkat.
A hirdetésben szereplő adatok tájékoztató jellegűek.
Az ingatlan hitelre is megvásárolható. Bankfüggetlen tanácsadóink, az ország összes pénzintézete közül gyorsan és gördülékenyen találja meg az Önnek legmegfelelőbb konstrukciót, egyedi kedvezményekkel. a hitel és az ingatlan közvetítés vevőink részére díjmentes. FIX 3% lakáshitelre megvehető
Tetszett ez az eladó Gödi új építésű 4 szobás családi ház? Hívd fel a hirdetőt most, és tudj meg mindent erről az eladó családi házról! Ha gondolod nézelődj tovább az eladó ház Göd oldal hirdetései között. Ennek az eladó háznak az ára 139900000 Ft és mivel az alapterülete 122 négyzetméter, ezért az átlagos négyzetméterára 1146721 HUF/m2.
Az eladó házak menüpontban további hirdetések között is böngészhetsz. Ha van kedved, akkor böngészhetsz a Vede Casa Kft. összes hirdetése között, vagy akár a/az MPD Hungary Kft. összes hirdetése között is.

