Eladó felújítandó ház - Gödöllő
- INGYENES HIRDETÉS FELADÁS
Ingatlan adatai
- Eladó vagy kiadó:Eladó
- Település:Gödöllő
- Kategória:Ház
- Alkategória:Családi ház
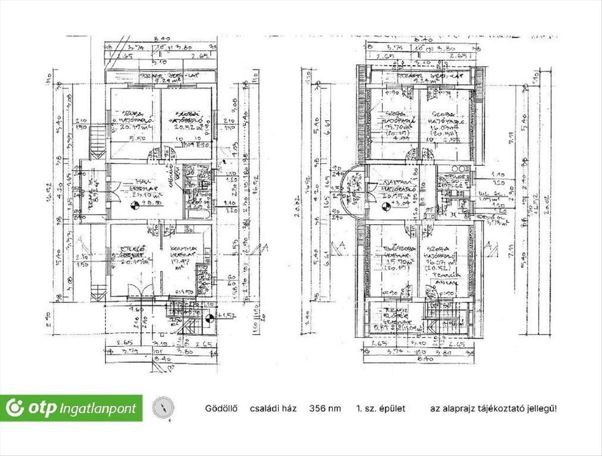
- Alapterület:356 m2
- Telekterület:3784 m2
- Csere is:Nem
- Hirdető:Cég
- Élő videón megtekinthető:Nem
- Építés éve:1995
- Szobaszám:9 + 1 fél
- Állapot:Felújítandó
- Hány szintes az ingatlan:2 szintes
- Tetőtér:nincs megadva
- Komfortosság:nincs megadva
- Pince:nincs megadva
- Parkolási lehetőség:Teremgarázsban
- Fűtés:Gáz (cirko)
- Bútorozottság:nincs megadva
- Fényviszony:Napfényes
- Tájolás:nincs megadva
- Kilátás:nincs megadva
- Internet:nincs megadva
- Klíma:nincs megadva
- Akadálymentesített:nincs megadva
- Energiatanúsítvány:nincs megadva
- Villany:nincs megadva
- Víz:nincs megadva
- Gáz:nincs megadva
- Csatorna:nincs megadva
- Kapcsolatfelvétel

Tamus Angéla Erzsébet
+36-(70)-601-2099
Mondd meg a hirdetőnek, hogy a megveszLAK-on találtad a hirdetést.
Referencia szám: M323216
Hitel ajánlatok
Ingatlan hirdetés leírása
Eladó Ház, Gödöllő, Eladó felújítandó ház - Gödöllő
Eladó gödöllőn 356 nm -es, több lehetőséget rejtő ingatlan 3784 nm -es TELKEN
Gödöllő egyik nyugodt, mégis jól megközelíthető részén kínálok megvételre egy összesen 356 nm alapterületű, két épületből álló ingatlant, 3784 nm -es, teraszos kialakítású telken.
A főépület 1994? 95-Ben épült, három szinten: alagsor, magasföldszint és emelet. Mindhárom szinten önálló konyha, fürdő és wc található, így a szintek külön egységként is használhatók.
- Magasföldszint: 3 tágas, napfényes szoba, tágas konyha, fürdő, WC
- Emelet: 4 tágas szoba, konyha, fürdőszoba WC-vel
- Alagsor: külön lakrész saját kis konyhával, fürdővel + akár 2 beállós garázs
A szintek jelenleg belső átjárással is kapcsolódnak, amely igény szerint megtartható vagy leválasztható - így az ingatlan könnyedén átalakítható többgenerációs otthonná de akár társasházzá is.
A melléképület jelenleg önálló lakóegység: nagy szoba, előszoba, konyha, fürdő, kamra. Ideális vendégház, de irodának, műhelynek vagy kiadható lakásnak is ideális.
Az épületek statikailag stabilak, szerkezetileg jó állapotúak. Jelenleg nem lakott, ezért esztétikai és gépészeti korszerűsítés javasolt - ami egyben lehetőség is: a kialakítás teljes mértékben az új tulajdonos igényeire szabható.
A 3784 nm -es, teraszos kialakítású telek korábban művelt volt, a gyümölcsfák még ma is megtalálhatók. a méret és az adottságok további fejlesztési potenciált hordoznak.
Kinek ajánljuk? Nagycsaládosoknak, több generáció együttélésére, vagy vállalkozóknak, akik az otthont és munkahelyet egy helyen képzelik el, de kiváló lehetőség befektetőknek is, akik több lakásos kialakításban gondolkodnak, akár eladásra, akár kiadásra.
Megtekintéssel kapcsolatban keressen bizalommal, rugalmasan tudom mutatni előzetes egyeztetés alapján. Ingatlanvásárláshoz az OTP Bank pénzügyi szolgáltatásait ajánlom (csok Plusz, Babaváró, piaci hitelek), melyek kedvezményes igénylésében szintén segítek!
Érd: Tamus Angéla +36 70 601 2099
Referencia szám: m323216 Hitel.hu - Hasonlítsa össze a bankok lakáshitel ajánlatait
Tetszett ez az eladó Gödöllői felújítandó 9 egész és 1 fél szobás családi ház? Hívd fel a hirdetőt most, és tudj meg mindent erről az eladó családi házról! Ha gondolod nézelődj tovább az eladó ház Gödöllő oldal hirdetései között. Ennek az eladó háznak az ára 169000000 Ft és mivel az alapterülete 356 négyzetméter, ezért az átlagos négyzetméterára 474719 HUF/m2.
Az eladó házak menüpontban további hirdetések között is böngészhetsz. Ha van kedved, akkor böngészhetsz a Tamus Angéla Erzsébet összes hirdetése között, vagy akár a/az OTPip Jászberény Gyöngyösi út 36 - OTP Ingatlanpont Iroda összes hirdetése között is.

