Eladó befejezetlen ház - Gyenesdiás
- INGYENES HIRDETÉS FELADÁS
Ingatlan adatai
- Eladó vagy kiadó:Eladó
- Település:Gyenesdiás
- Kategória:Ház
- Alkategória:Családi ház
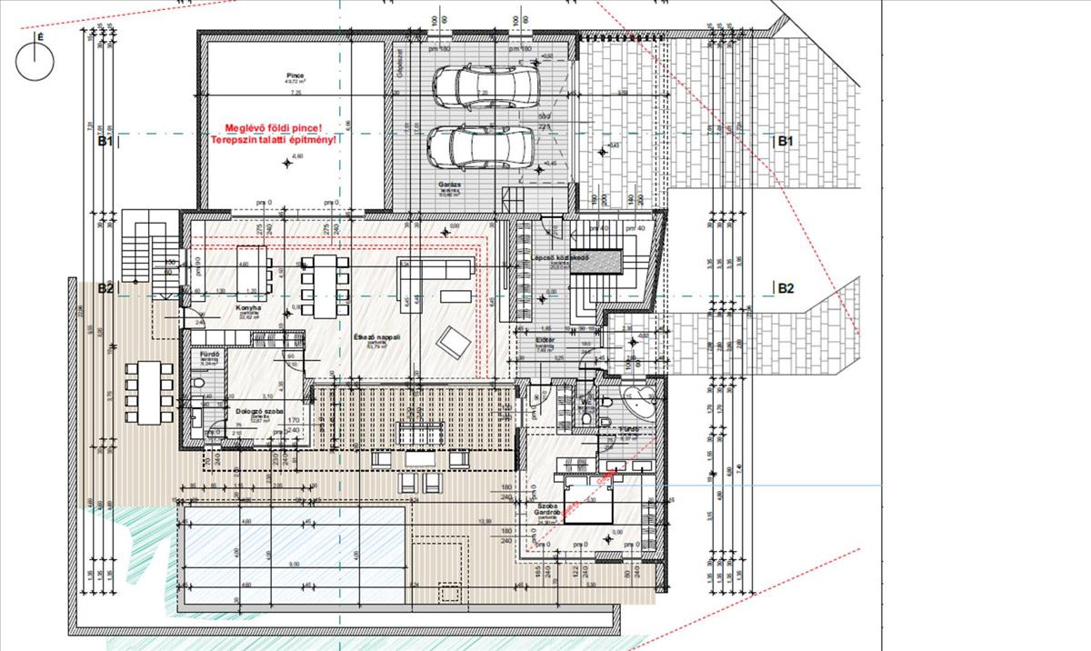
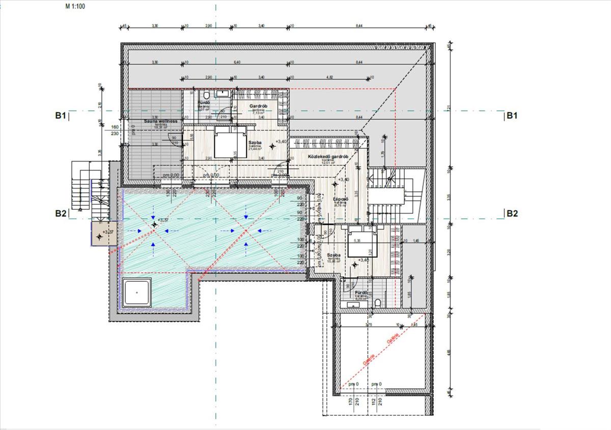
- Alapterület:353 m2
- Telekterület:1 m2
- Csere is:Nem
- Hirdető:Cég
- Élő videón megtekinthető:Nem
- Szobaszám:4
- Állapot:Befejezetlen
- Hány szintes az ingatlan:nincs megadva
- Tetőtér:nincs megadva
- Komfortosság:Luxus
- Pince:Van
- Parkolási lehetőség:nincs megadva
- Fűtés:nincs megadva
- Bútorozottság:nincs megadva
- Fényviszony:nincs megadva
- Tájolás:nincs megadva
- Kilátás:nincs megadva
- Internet:nincs megadva
- Klíma:nincs megadva
- Akadálymentesített:nincs megadva
- Energiatanúsítvány:nincs megadva
- Villany:Van
- Víz:Van
- Gáz:Van
- Csatorna:Van
- Kapcsolatfelvétel

Hitel ajánlatok
Ingatlan hirdetés leírása
Eladó Családi ház, Gyenesdiás, Nincs megadva, 353nm, 67500000...
Eladó exkluzív balatoni luxusvilla páratlan panorámával
Képzelje el, hogy minden nap a Balaton lélegzetelállító látványára ébred ebben a modern, luxus színvonalú otthonban.
A villa 4 tágas hálószobát kínál, hatalmas üvegfelületekkel, amelyek természetes fényárban fürdetik a belső tereket. a napfényes teraszról vagy a saját, kristálytiszta vizű medencéből gyönyörködhet a tó végtelen kékségében.
A ház különlegessége a privát borospince exkluzív borélményekhez, valamint a szauna, amely a teljes feltöltődést biztosítja. a kényelmes kocsibeálló gondoskodik arról, hogy autói biztonságban legyenek.
Ez az ingatlan nem csupán egy ház – hanem egy életstílus, melyet kevesek engedhetnek meg maguknak. a gondosan tervezett kert és a prémium építészeti megoldások minden részlete a tökéletes harmóniát és eleganciát tükrözi.
Ha Ön a nyugalom, a luxus és a Balaton legszebb panorámájának szerelmese, ne keressen tovább – ez a villa Önre vár!
További információért keressen vagy írjon
+3620 441 5668
nekuti. Natalia@kingcity. Hu
A képek látványtervek! Az alaprajz tájékoztató jellegű, építés alatt van még az ingatlan további kérdés esetén keressen bizalommal! Hitel.hu - Hasonlítsa össze a bankok lakáshitel ajánlatait
Tetszett ez az eladó Gyenesdiási befejezetlen 4 szobás családi ház? Hívd fel a hirdetőt most, és tudj meg mindent erről az eladó családi házról! Ha gondolod nézelődj tovább az eladó ház Gyenesdiás oldal hirdetései között. Ennek az eladó háznak az ára 675000000 Ft és mivel az alapterülete 353 négyzetméter, ezért az átlagos négyzetméterára 1912181 HUF/m2.
Az eladó házak menüpontban további hirdetések között is böngészhetsz. Ha van kedved, akkor böngészhetsz a Ragán Zsuzsanna összes hirdetése között, vagy akár a/az H-Kontakt Group Kft. összes hirdetése között is.
További hirdetéseket találsz az eladó Balaton északi parti nyaralók között. Ha a teljes régió kínálata érdekel, nézd meg az eladó Balatoni nyaralók oldalt.

