Eladó új építésű ház Hajdúsámson
| Kedvencbe | Megosztás | Árfigyelő |
| FIX 3% lakáshitelre megvehető | ||
| 54 900 000 HUF | ||
Ingatlan adatai
- Eladó vagy kiadó:Eladó
- Település:Hajdúsámson
- Kategória:Ház
- Alkategória:Családi ház
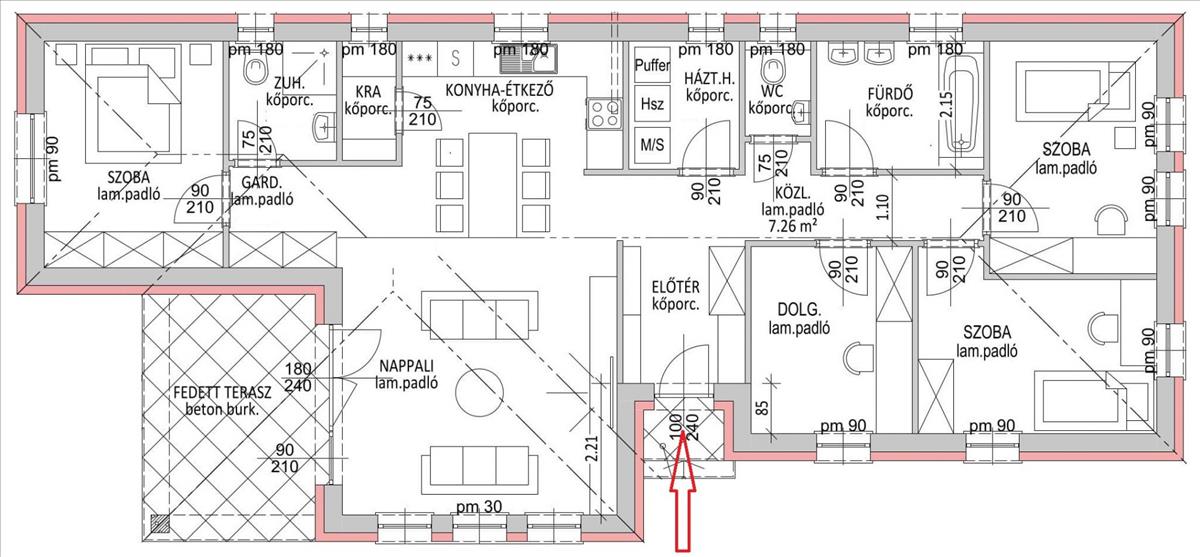
- Alapterület:71 m2
- Telekterület:750 m2
- Csere is:Nem
- Hirdető:Cég
- Élő videón megtekinthető:Nem
- Építés éve:2025
- Szobaszám:4
- Állapot:Új építésű
- Hány szintes az ingatlan:nincs megadva
- Tetőtér:nincs megadva
- Komfortosság:nincs megadva
- Parkolási lehetőség:nincs megadva
- Fűtés:Egyéb
- Bútorozottság:nincs megadva
- Fényviszony:nincs megadva
- Tájolás:nincs megadva
- Kilátás:nincs megadva
- Internet:nincs megadva
- Akadálymentesített:nincs megadva
- Energiatanúsítvány:nincs megadva
- Villany:nincs megadva
- Víz:nincs megadva
- Gáz:nincs megadva
- Csatorna:nincs megadva
- Üzenetküldés
- Hívás


Hitel ajánlat
Ingatlan hirdetés leírása
Hajdúsámsonban, 71 m2-es, N+3 szobás, egyszintes, hőszigetelt,...
Hajdúsámson új építésű részén, 2026. Év végi átadással, egyszintes, 71 m2-es, nappali+ 3 szobás, önálló családi ház, magas műszaki tartalommal, 750 m2-es telken eladó!A vételár tartalmazza a telekárat.
Jellemzői:
- Értéktartó, csendes környéken helyezkedik el
- a ház új építésű, a belső még igény szerint alakítható
- Porotherm 30 n+f tégla falazat
- Beton tetőcserép
- Napelem előkészítés
- 15 cm Austrotherm at-h80 hőszigetelés a homlokzati falakon, mely biztosítja az alacsony fűtési költséget
- a tetőtérben 25 cm vastagságú Therwoolin hőszigetelés
- 10 cm Austrotherm at-n100 aljzatszigetelés
- a fűtést és a melegvíz ellátását egyedileg beépített, egyedi mérőhellyel ellátott kondenzációs, turbós kombi kazán biztosítja
- a ház padlófűtéses, mely egyenletes hőeloszlást biztosít, egyben növeli a kondenzációs kazán hatékonyságát
- Hőszivattyús fűtéssel is kérhető (+ 3 MFt)
- Hő- és hangszigetelt ablakok kívül barna színben: 3 rétegű, 6 légkamrás, műanyag profilrendszerű, horganyzott idomacél merevítéssel (0, 6 W/m2K)
- Elektromos redőny előkészítés
- a ház külső és belső tere egyaránt prémium kategóriájú, led technológiás rgb világítással lesznek szerelve
- Amerikai konyhás nappali
- Belső kialakítás flexibilis, az Ön elképzelése szerint alakítunk ki mindent
- Választható burkolatok: Kerámia burkolat 6 000 Ft/m2-ig, laminált parketta 6 000 Ft/m2-ig a vételárban
- Homlokzati burkolás a vételárban a látványtervnek megfelelően
- Terasz
- Elemes betonkerítés a vételárban
- Igény szerint füvesítés, parkosítás, öntözőrendszer, sziklakert, bográcsozási lehetőség, pergolla, filagória kialakításra kerülhet a költözésre
- Tömegközlekedés kiváló
- Iskolához, óvodához, üzletekhez, orvosi rendelőhöz, patikához közel helyezkedik el!
Várható befejezés: 2026. December 31.
Babaváró, illetékmentesség, csok+ hitel igénybe vehető a házra!
Irányár: 54, 9 MFt (hivatkozási szám: m118415) FIX 3% lakáshitelre megvehető
Tetszett ez az eladó Hajdúsámsoni új építésű 4 szobás családi ház? Hívd fel a hirdetőt most, és tudj meg mindent erről az eladó családi házról! Ha gondolod nézelődj tovább az eladó ház Hajdúsámson oldal hirdetései között. Ennek az eladó háznak az ára 54900000 Ft és mivel az alapterülete 71 négyzetméter, ezért az átlagos négyzetméterára 773239 HUF/m2.
Az eladó házak menüpontban további hirdetések között is böngészhetsz. Ha van kedved, akkor böngészhetsz a Biró Zsolt összes hirdetése között.

