Eladó új építésű ház - Hajdúsámson
- INGYENES HIRDETÉS FELADÁS
Ingatlan adatai
- Feladva:6 hónapja a megveszLAK-on
- Eladó vagy kiadó:Eladó
- Település:Hajdúsámson
- Kategória:Ház
- Alkategória:Családi ház
- Alapterület:110 m2
- Telekterület:482 m2
- Csere is:Nem
- Hirdető:Cég
- Élő videón megtekinthető:Nem
- Építés éve:2026
- Szobaszám:4
- Állapot:Új építésű
- Hány szintes az ingatlan:nincs megadva
- Tetőtér:nincs megadva
- Komfortosság:nincs megadva
- Pince:nincs megadva
- Parkolási lehetőség:nincs megadva
- Fűtés:Megújuló energia
- Bútorozottság:nincs megadva
- Fényviszony:nincs megadva
- Tájolás:DNY
- Kilátás:nincs megadva
- Internet:nincs megadva
- Klíma:nincs megadva
- Akadálymentesített:nincs megadva
- Energiatanúsítvány:nincs megadva
- Villany:nincs megadva
- Víz:nincs megadva
- Gáz:Nincs
- Csatorna:nincs megadva
- Kapcsolatfelvétel

Rákosné Tímea
+36-(70)-412-5026
Mondd meg a hirdetőnek, hogy a megveszLAK-on találtad a hirdetést.
Hitel ajánlatok
Ingatlan hirdetés leírása
Hajdúsámson új lakóparkjában újabb családi házak foglalhatóak!...
Hajdúsámson új lakóparkjában újabb családi házak foglalhatóak!
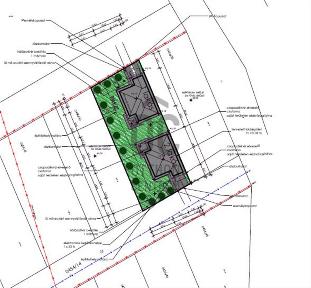
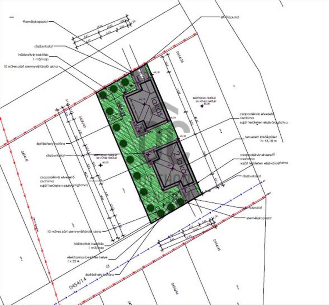
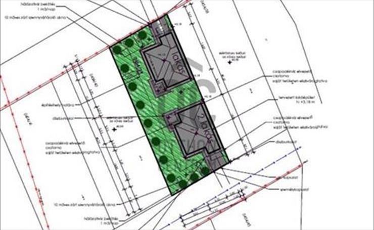
Az építési övezet jellemzői:
-Lke-3 kertvárosias lakózóna
-oldalhatáron álló beépítettség van
-beépítése max 30%, zöldfelület min. 50%
-Építménymagasság: 5 m
-előkert és oldalkert mérete: 5 m
Az ingatlanokra vonatkozó adatok:
* telek mérete: 484 m2, a hirdetési ár tartalmazza a telekhányad árát, mely 9 M Ft
* beépített alapterület: 26, 42 % ingatlanonként pedig 128, 047 m2
* 30-as viablokk hanggátló falazat, 15 cm austrotherm hőszigeteléssel
* a lakótér területe: 95 m2
* 3 szoba + nappalis elosztású
* nyílásszárók 3 rétegű műanyag nyílászárók fehér színben
* fűtés és melegvíz ellátás víz-levegő hőszivattyú
* osztatlan közös területen található (teljes telek méret 970 m2)
* az ár tartalmazza a térkövezést ill. Körbe kerítést,
* víz van az utcában jelenlegi helyzet miatt átadás fúrt kúttal történik vízszűrő berendezéssel, vízóra akna kiépítésre került
* csatorna van telken belül, azonban jelenleg csatlakozási lehetőség nincs
* gáz nincs
* áram van
*az ár tartalmazza a kerítést is
Tervezett átadás: 2026. Dec. 31
Az épület jelenleg falazásnál tart!
Az ingatlanra Csok+, piaci hitel és babaváró támogatás felhsználható!
Az Otthon Start hitel feltételeinek is megfelel! Addig vidd míg tart a hitelkeret!
Egyeztetés telefonon, megtekintés előre egyeztetett időpontban lehetséges! FIX 3% lakáshitelre megvehető
Tetszett ez az eladó Hajdúsámsoni új építésű 4 szobás családi ház? Hívd fel a hirdetőt most, és tudj meg mindent erről az eladó családi házról! Ha gondolod nézelődj tovább az eladó ház Hajdúsámson oldal hirdetései között. Ennek az eladó háznak az ára 79900000 Ft és mivel az alapterülete 110 négyzetméter, ezért az átlagos négyzetméterára 726364 HUF/m2.
Az eladó házak menüpontban további hirdetések között is böngészhetsz. Ha van kedved, akkor böngészhetsz a Rákosné Tímea összes hirdetése között, vagy akár a/az Otthon Centrum Debrecen - Kálvin tér összes hirdetése között is.

