Eladó jó állapotú ház - Hajdúszoboszló
- INGYENES HIRDETÉS FELADÁS
Ingatlan adatai
- Eladó vagy kiadó:Eladó
- Település:Hajdúszoboszló
- Kategória:Ház
- Alkategória:Családi ház
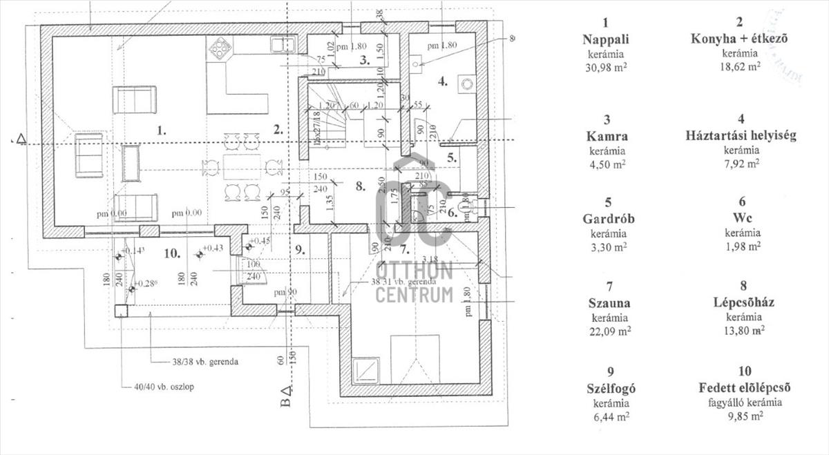
- Alapterület:350 m2
- Telekterület:875 m2
- Csere is:Nem
- Hirdető:Cég
- Élő videón megtekinthető:Nem
- Építés éve:2011
- Szobaszám:7
- Állapot:Jó állapotú
- Hány szintes az ingatlan:nincs megadva
- Tetőtér:nincs megadva
- Komfortosság:nincs megadva
- Pince:nincs megadva
- Parkolási lehetőség:nincs megadva
- Fűtés:Gáz (cirko)
- Bútorozottság:nincs megadva
- Fényviszony:nincs megadva
- Tájolás:DK
- Kilátás:nincs megadva
- Internet:nincs megadva
- Klíma:nincs megadva
- Akadálymentesített:nincs megadva
- Energiatanúsítvány:nincs megadva
- Villany:Van
- Víz:Van
- Gáz:Van
- Csatorna:Van
- Kapcsolatfelvétel

Gratzka Győző
+36-(70)-388-5461
Mondd meg a hirdetőnek, hogy a megveszLAK-on találtad a hirdetést.
Ingatlan hirdetés leírása
Hajdúszoboszlón eladó két épületrészből álló lakóingatlan. Az ...
Hajdúszoboszlón eladó két épületrészből álló lakóingatlan. Az utcafronti épület üzleti, irodai funkciót egyaránt betölthet, míg a mögötte elhelyezkedő önálló családi ház minden kényelmi funkciójával áll az új tulajdonos rendelkezésére.
További részletekért hívjon bizalommal! Hitel.hu - Hasonlítsa össze a bankok lakáshitel ajánlatait


