Eladó jó állapotú ház - Hajdúszoboszló
- INGYENES HIRDETÉS FELADÁS
Ingatlan adatai
- Eladó vagy kiadó:Eladó
- Település:Hajdúszoboszló
- Kategória:Ház
- Alkategória:Családi ház
- Alapterület:110 m2
- Telekterület:1358 m2
- Csere is:Nem
- Hirdető:Cég
- Élő videón megtekinthető:Nem
- Építés éve:1980
- Szobaszám:3 + 1 fél
- Állapot:Jó állapotú
- Hány szintes az ingatlan:nincs megadva
- Tetőtér:nincs megadva
- Komfortosság:nincs megadva
- Pince:Nincs
- Parkolási lehetőség:nincs megadva
- Fűtés:Vegyes tüzelésű kazán
- Bútorozottság:Bútorozatlan
- Fényviszony:nincs megadva
- Tájolás:DNY
- Kilátás:nincs megadva
- Internet:nincs megadva
- Klíma:nincs megadva
- Akadálymentesített:Nem akadálymentesített
- Energiatanúsítvány:nincs megadva
- Villany:Van
- Víz:Van
- Gáz:Utcában
- Csatorna:Van
- Rezsi:33 000 Ft
- Kapcsolatfelvétel
Jenei Ferenc Attila
+36-(70)-227-2047
Mondd meg a hirdetőnek, hogy a megveszLAK-on találtad a hirdetést.
Hitel ajánlatok
Ingatlan hirdetés leírása
Hajdúszoboszlón 3 szobás 110nm-es családi ház
Azonosító: 1820
Eladásra kínálok Hajdúszoboszló kertvárosi részén csendes kis zugban egy 3 szobás családi házat.
Lidl, Tesco, Penny pár perc távolságra van.
Elsősorban nagycsaládosok figyelmébe ajánlom!
Az ingatlan jellemzői:
-a telek 1358 nm , hasznos tér 110 nm
-beton alapra szilikát és tégla falazattal
-1980-ban épült
-2015-ben felújításon esett át
-szerkezetileg kitűnő állapotban van
-víz, villany vezeték korszerüsítésre került
-fűtés vegyes tüzelésű kazánnal (Új radiátorok)
-laminált parkettás szobák
-villanybojler
-hatalmas hátsó terasz
-2 állású új mobilgarázs
-tetőtér beépítésére van lehetőség a villanyvezeték hálózat már kiépítésre került
-kamera
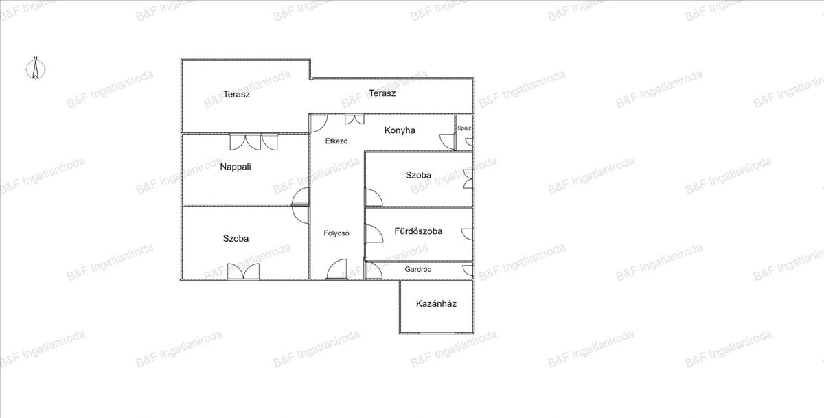
Az ingatlant tágas szobák jellemzik.
A nappaliból és az étkezőből egy hatalmas hátsó teraszra jutunk ki, ahol kényelmesen le lehet bonyolítani akár egy nagyobb családi rendezvényt.
A környék tiszta, rendezett, kedves segítőkész szomszédok jellemzik.
Az ingatlan jelenlegi állapotban is azonnal költözhető.
Az alaprajz tájékoztató jellegű!
CSOK plusz igényelhető!
Csok Plusz, Lakáshitel, Babaváró hitel, Biztosítás, teljeskörű ügyintézésével állunk rendelkezésére.
Tekintse meg további hirdetéseinket a b&f Ingatlaniroda weboldalán. FIX 3% lakáshitelre megvehető
Tetszett ez az eladó Hajdúszoboszlói jó állapotú 3 egész és 1 fél szobás családi ház? Hívd fel a hirdetőt most, és tudj meg mindent erről az eladó családi házról! Ha gondolod nézelődj tovább az eladó ház Hajdúszoboszló oldal hirdetései között. Ennek az eladó háznak az ára 61490000 Ft és mivel az alapterülete 110 négyzetméter, ezért az átlagos négyzetméterára 559000 HUF/m2.
Az eladó házak menüpontban további hirdetések között is böngészhetsz. Ha van kedved, akkor böngészhetsz a Jenei Ferenc Attila összes hirdetése között.

