Eladó befejezetlen ház - Helvécia
- INGYENES HIRDETÉS FELADÁS
Ingatlan adatai
- Eladó vagy kiadó:Eladó
- Település:Helvécia
- Kategória:Ház
- Alkategória:Családi ház
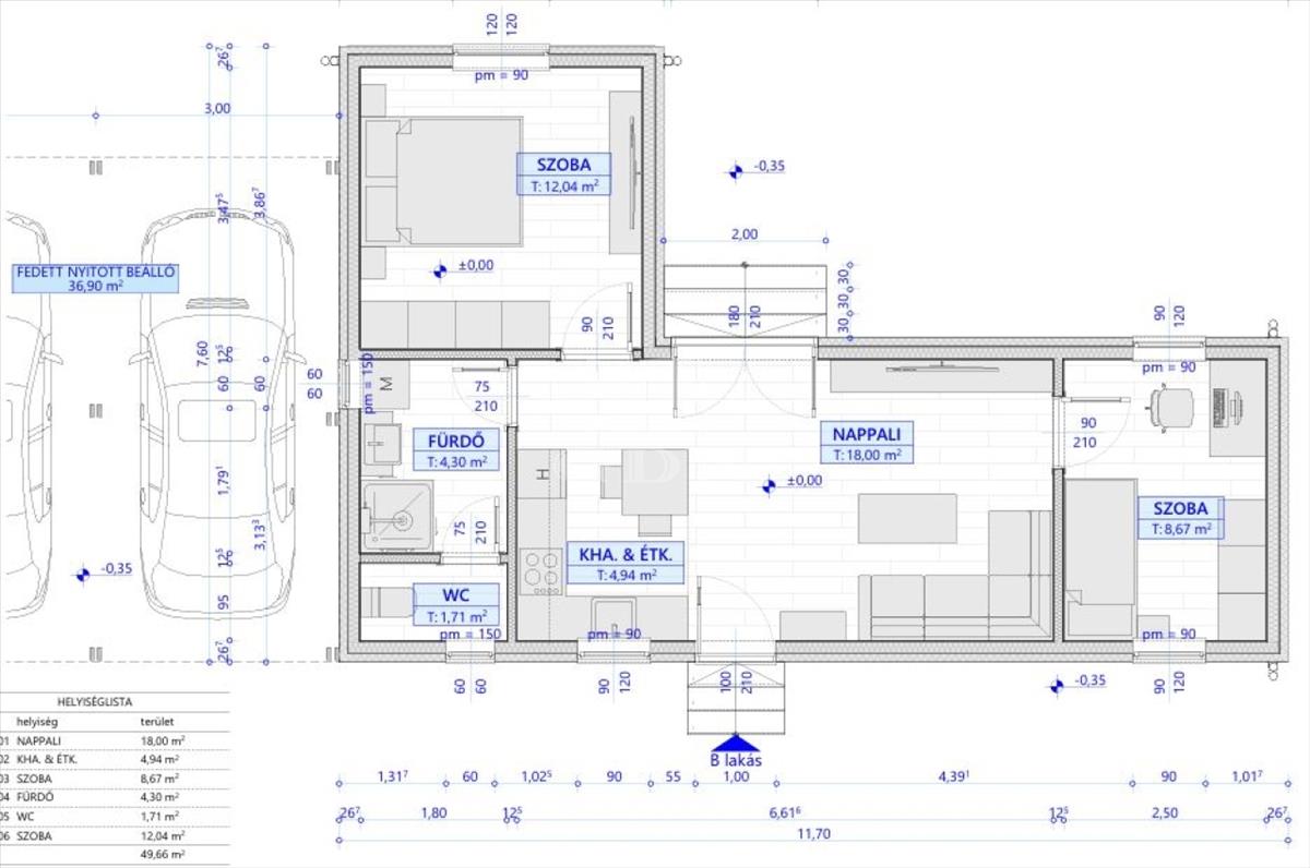
- Alapterület:49 m2
- Telekterület:370 m2
- Csere is:Nem
- Hirdető:Cég
- Élő videón megtekinthető:Nem
- Építés éve:2027
- Szobaszám:2
- Állapot:Befejezetlen
- Hány szintes az ingatlan:Földszintes
- Tetőtér:nincs megadva
- Komfortosság:nincs megadva
- Pince:nincs megadva
- Parkolási lehetőség:Beállóban
- Fűtés:Elektromos
- Bútorozottság:nincs megadva
- Fényviszony:nincs megadva
- Tájolás:nincs megadva
- Kilátás:nincs megadva
- Internet:nincs megadva
- Klíma:nincs megadva
- Akadálymentesített:nincs megadva
- Energiatanúsítvány:nincs megadva
- Villany:Van
- Víz:Van
- Gáz:Telken belül
- Csatorna:Nincs
- Kapcsolatfelvétel

Földi Margit
+36-(30)-576-9476
Mondd meg a hirdetőnek, hogy a megveszLAK-on találtad a hirdetést.
Hitel ajánlatok
Ingatlan hirdetés leírása
Otthonok és megoldások! Helvécián belterületi aszfaltos utcába...
Otthonok és megoldások!
Helvécián belterületi aszfaltos utcában, 340 nm telken, új építésű könnyűszerkezetes építési móddal, 49 nm , amerikai konyhás nappali + 1 szobás, klímás ikerház, fedett gépkocsibeállóval eladó. Ideális választás idősebb korosztálynak, vagy fiataloknak, akik nem szeretnének nagy kertet gondozni. Kivitelezésben szerződött partnerünk a mai kornak és igényeknek megfelelő, energia hatékony építő anyagokkal építi fel, vállalt határidőre otthonát. a fotók referencia munkáról készültek.
További részletekért, műszaki leírásért, a terület megtekintéséért várom hívását! FIX 3% lakáshitelre megvehető
Tetszett ez az eladó Helvéciai befejezetlen 2 szobás családi ház? Hívd fel a hirdetőt most, és tudj meg mindent erről az eladó családi házról! Ha gondolod nézelődj tovább az eladó ház Helvécia oldal hirdetései között. Ennek az eladó háznak az ára 49900000 Ft és mivel az alapterülete 49 négyzetméter, ezért az átlagos négyzetméterára 1018367 HUF/m2.
Az eladó házak menüpontban további hirdetések között is böngészhetsz. Ha van kedved, akkor böngészhetsz a Földi Margit összes hirdetése között, vagy akár a/az GDN Ingatlanhálózat összes hirdetése között is.

