Eladó új építésű ház - Hévíz
- INGYENES HIRDETÉS FELADÁS
Ingatlan adatai
- Eladó vagy kiadó:Eladó
- Település:Hévíz
- Kategória:Ház
- Alkategória:Családi ház
- Alapterület:82 m2
- Telekterület:174 m2
- Csere is:Nem
- Hirdető:Cég
- Élő videón megtekinthető:Nem
- Építés éve:2023
- Szobaszám:4
- Állapot:Új építésű
- Hány szintes az ingatlan:nincs megadva
- Tetőtér:nincs megadva
- Komfortosság:nincs megadva
- Pince:nincs megadva
- Parkolási lehetőség:nincs megadva
- Fűtés:nincs megadva
- Bútorozottság:nincs megadva
- Fényviszony:nincs megadva
- Tájolás:DK
- Kilátás:nincs megadva
- Internet:nincs megadva
- Klíma:nincs megadva
- Akadálymentesített:nincs megadva
- Energiatanúsítvány:nincs megadva
- Villany:Van
- Víz:Van
- Gáz:Utcában
- Csatorna:Van
- Kapcsolatfelvétel

Poldauf Róbert
+36-(70)-469-3266
Mondd meg a hirdetőnek, hogy a megveszLAK-on találtad a hirdetést.
Hitel ajánlatok
Ingatlan hirdetés leírása
Panorámás, modern sorházi lakás Hévíz csendes zöldövezetében –...
Panorámás, modern sorházi lakás Hévíz csendes zöldövezetében – napelemmel, hőszivattyúval!
Legyen Ön a háromlakásos sorház első otthonának boldog tulajdonosa!
Ez az ízlésesen kialakított, azonnal költözhető, egyszintes lakás Hévíz nyugodt, zöldövezeti részén található, délkeleti fekvésű, dombos panorámás telken.
A 75 m² hasznos alapterületű otthon praktikus elrendezésének köszönhetően ideális választás családok számára is.
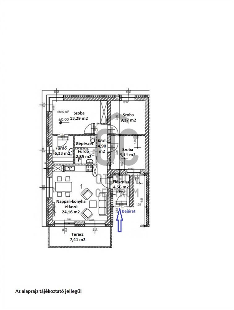
Helyiségek:
-előszoba
-tágas nappali – étkező – konyha egy légtérben
-háztartási helyiség
-közlekedő
-3 hálószoba
-zuhanyzós fürdőszoba WC-vel
-kádas fürdőszoba WC-vel
A világos nappaliból közvetlen kertkapcsolatos, épített terasz nyílik, amelyhez gondozott zöldfelület és automata locsolórendszer tartozik.
Az udvaron 2 autó számára viacolor burkolatú parkoló került kialakításra, valamint kerti tároló is rendelkezésre áll.
Műszaki jellemzők:
-modern 3 rétegű üvegezésű műanyag nyílászárók
-elektromos redőnyök és szúnyoghálók
-20 cm vastag homlokzati hőszigetelés
-hőszivattyús hűtés–fűtés minden helyiségben, külön szabályozással
-6 kW-os napelemrendszer szaldós elszámolással
-mobiltelefonról vezérelhető fűtés, hűtés és napelemes rendszer
-padlófűtés a kerámia burkolatú helyiségekben
-héjvédelemmel ellátott riasztórendszer
A modern technológiának és a napelemes rendszernek köszönhetően az ingatlan fenntartási költsége rendkívül alacsony.
Elhelyezkedés:
-csendes, zöldövezeti környezet
-panorámás, dombos fekvés
-Hévíz központja és a világhírű tófürdő autóval néhány percen belül elérhető
Ne maradjon le róla – hívjon még ma, és tekintse meg személyesen!
Az adatok kizárólag a megbízóink által rendelkezésünkre bocsátott információkon alapulnak. Az adatok teljességéért, pontosságáért és aktualitásáért felelősséget nem vállalunk. Az árváltoztatás, adatmódosítás és közbeni értékesítés jogát fenntartjuk. FIX 3% lakáshitelre megvehető
Tetszett ez az eladó Hévízi új építésű 4 szobás családi ház? Hívd fel a hirdetőt most, és tudj meg mindent erről az eladó családi házról! Ha gondolod nézelődj tovább az eladó ház Hévíz oldal hirdetései között. Ennek az eladó háznak az ára 92570100 Ft és mivel az alapterülete 82 négyzetméter, ezért az átlagos négyzetméterára 1128904 HUF/m2.
Az eladó házak menüpontban további hirdetések között is böngészhetsz. Ha van kedved, akkor böngészhetsz a Poldauf Róbert összes hirdetése között, vagy akár a/az Otthon Centrum Balatonmáriafürdő összes hirdetése között is.

