Eladó jó állapotú ház - Iregszemcse
- INGYENES HIRDETÉS FELADÁS
Ingatlan adatai
- Feladva:86 napja a megveszLAK-on
- Eladó vagy kiadó:Eladó
- Település:Iregszemcse
- Kategória:Ház
- Alkategória:Családi ház
- Alapterület:86 m2
- Telekterület:605 m2
- Csere is:Nem
- Hirdető:Cég
- Élő videón megtekinthető:Nem
- Építés éve:1940
- Szobaszám:3
- Állapot:Jó állapotú
- Hány szintes az ingatlan:Földszintes
- Tetőtér:nincs megadva
- Komfortosság:nincs megadva
- Pince:nincs megadva
- Parkolási lehetőség:Garázsban
- Fűtés:Elektromos
- Bútorozottság:nincs megadva
- Fényviszony:nincs megadva
- Tájolás:nincs megadva
- Kilátás:nincs megadva
- Internet:nincs megadva
- Klíma:nincs megadva
- Akadálymentesített:nincs megadva
- Energiatanúsítvány:nincs megadva
- Villany:nincs megadva
- Víz:nincs megadva
- Gáz:nincs megadva
- Csatorna:nincs megadva
- Kapcsolatfelvétel

Kránicz Éva
+36-70-377-4392
Mondd meg a hirdetőnek, hogy a megveszLAK-on találtad a hirdetést.
Hitel ajánlatok
Ingatlan hirdetés leírása
Iregszemcsén eladó egy 86 m2 alapterületű, felújított családi ...
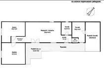
Iregszemcsén eladó egy 86 m2 alapterületű, felújított családi ház, amely egy 605 m2-es telken helyezkedik el, mindössze 28 km-re a Balatontól. Az ingatlan jelentős átalakításokon esett át: új tetőt kapott, a belső terek teljes körűen megújultak, megtörtént a glettelés és festés, a szobákban és a nappaliban vadonatúj laminált padló került lerakásra, valamint az elektromos hálózat is teljesen korszerűsített. Az utcafronti homlokzaton új, műanyag nyílászárók kerültek beépítésre.
A jól átgondolt elrendezés központi eleme az amerikai konyhás nappali, amelyhez beépített konyhabútor tartozik gépekkel együtt, mely a vételár része. Ezen kívül két külön bejáratú szoba, külön wc és egy fürdőszoba található az ingatlanban. a fürdőszoba modernizálása már az új tulajdonos elképzelései szerint valósítható meg, míg a ház többi része azonnal költözhető állapotban van. a fűtést modern elektromos fűtőpanelek biztosítják, ugyanakkor lehetőség van kályha vagy kandalló beépítésére is.
Az épülethez kapcsolódik egy további helyiség, amely igény szerint kialakítható garázsnak, tárolónak vagy akár egy plusz lakószobának is. a telek hátsó részében egy hangulatos borospince található.
Tökéletes választás azok számára, akik nem szeretnének hosszadalmas felújításba kezdeni, hanem egy jó állapotú, költözésre kész otthont keresnek.
A tulajdoni viszonyok rendezettek, az ingatlan per- és tehermentes, és akár azonnal birtokba vehető. Az Otthon Start program feltételeinek megfelel, valamint a településen falusi CSOK is igénybe vehető. FIX 3% lakáshitelre megvehető
Tetszett ez az eladó Iregszemcsei jó állapotú 3 szobás családi ház? Hívd fel a hirdetőt most, és tudj meg mindent erről az eladó családi házról! Ha gondolod nézelődj tovább az eladó ház Iregszemcse oldal hirdetései között. Ennek az eladó háznak az ára 28900000 Ft és mivel az alapterülete 86 négyzetméter, ezért az átlagos négyzetméterára 336047 HUF/m2.
Az eladó házak menüpontban további hirdetések között is böngészhetsz. Ha van kedved, akkor böngészhetsz a Kránicz Éva összes hirdetése között, vagy akár a/az Siófok Fő utca 83 - OTP Ingatlanpont Iroda összes hirdetése között is.

