Eladó új építésű ház - Jakabszállás
- INGYENES HIRDETÉS FELADÁS
Ingatlan adatai
- Eladó vagy kiadó:Eladó
- Település:Jakabszállás
- Kategória:Ház
- Alkategória:Családi ház
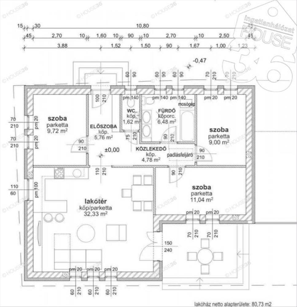
- Alapterület:81 m2
- Telekterület:644 m2
- Csere is:Nem
- Hirdető:Cég
- Élő videón megtekinthető:Nem
- Építés éve:2026
- Szobaszám:4
- Állapot:Új építésű
- Hány szintes az ingatlan:Földszintes
- Tetőtér:nincs megadva
- Komfortosság:nincs megadva
- Pince:nincs megadva
- Parkolási lehetőség:Udvaron
- Fűtés:Gáz (cirko)
- Bútorozottság:nincs megadva
- Fényviszony:Napfényes
- Tájolás:nincs megadva
- Kilátás:nincs megadva
- Internet:nincs megadva
- Klíma:nincs megadva
- Akadálymentesített:nincs megadva
- Energiatanúsítvány:A
- Villany:nincs megadva
- Víz:nincs megadva
- Gáz:nincs megadva
- Csatorna:nincs megadva
- Kapcsolatfelvétel

Kollerné Rádi Valéria
+36-(70)-421-1201
Mondd meg a hirdetőnek, hogy a megveszLAK-on találtad a hirdetést.
Referencia szám: 3621082
Hitel ajánlatok
Ingatlan hirdetés leírása
Nappali + 3 szobás új építésű családi ház eladó Jakabszálláson!
81 m2-es, nappali + 3 szobás, új építésű ház Jakabszálláson!
Az ár tartalmazza a telek árát is!
Jellemzői:
telek 644 m2
lakótér 81 m2
10 m2 térkövezett terasz
gáz-cirkó fűtés, Bosch 2300 kazánnal, padlófűtés
2 klíma
Porotherm főfalak
10 cm-es tégla válaszfalak (belső)
Fa födémszerkezet láng és gombamentesítő anyaggal kezelve
Cserép tetőfedés
Műanyag, bukó-nyíló nyílászárók (3 rétegű, 6 légkamrás), biztonsági bejárati ajtó
redőny, szúnyogháló
15 cm eps homlokzati hőszigetelés
2026 decemberi átadás
A hirdetésben szereplő fotók egy referenciaházban készültek.
A tulajdonos kérésére az ingatlan bemutatása egy személyes konzultáció után történik, ahol részletes tájékoztatást kaphat az ingatlan paramétereiről és egyéb kényelmi szolgáltatásairól! Figyelem az adatlap megbízónktól kapott adatok alapján készült, pontosságáért felelősséget nem tudunk vállalni!
Az iroda legfrissebb, aktuális kínálatát a house36 saját weboldalán találja! FIX 3% lakáshitelre megvehető
Tetszett ez az eladó Jakabszállási új építésű 4 szobás családi ház? Hívd fel a hirdetőt most, és tudj meg mindent erről az eladó családi házról! Ha gondolod nézelődj tovább az eladó ház Jakabszállás oldal hirdetései között. Ennek az eladó háznak az ára 78900000 Ft és mivel az alapterülete 81 négyzetméter, ezért az átlagos négyzetméterára 974074 HUF/m2.
Az eladó házak menüpontban további hirdetések között is böngészhetsz. Ha van kedved, akkor böngészhetsz a Kollerné Rádi Valéria összes hirdetése között, vagy akár a/az HOUSE36 Ingatlanhálózat összes hirdetése között is.

