Eladó felújítandó ház - Kazincbarcika
- INGYENES HIRDETÉS FELADÁS
Ingatlan adatai
- Eladó vagy kiadó:Eladó
- Település:Kazincbarcika
- Kategória:Ház
- Alkategória:Családi ház
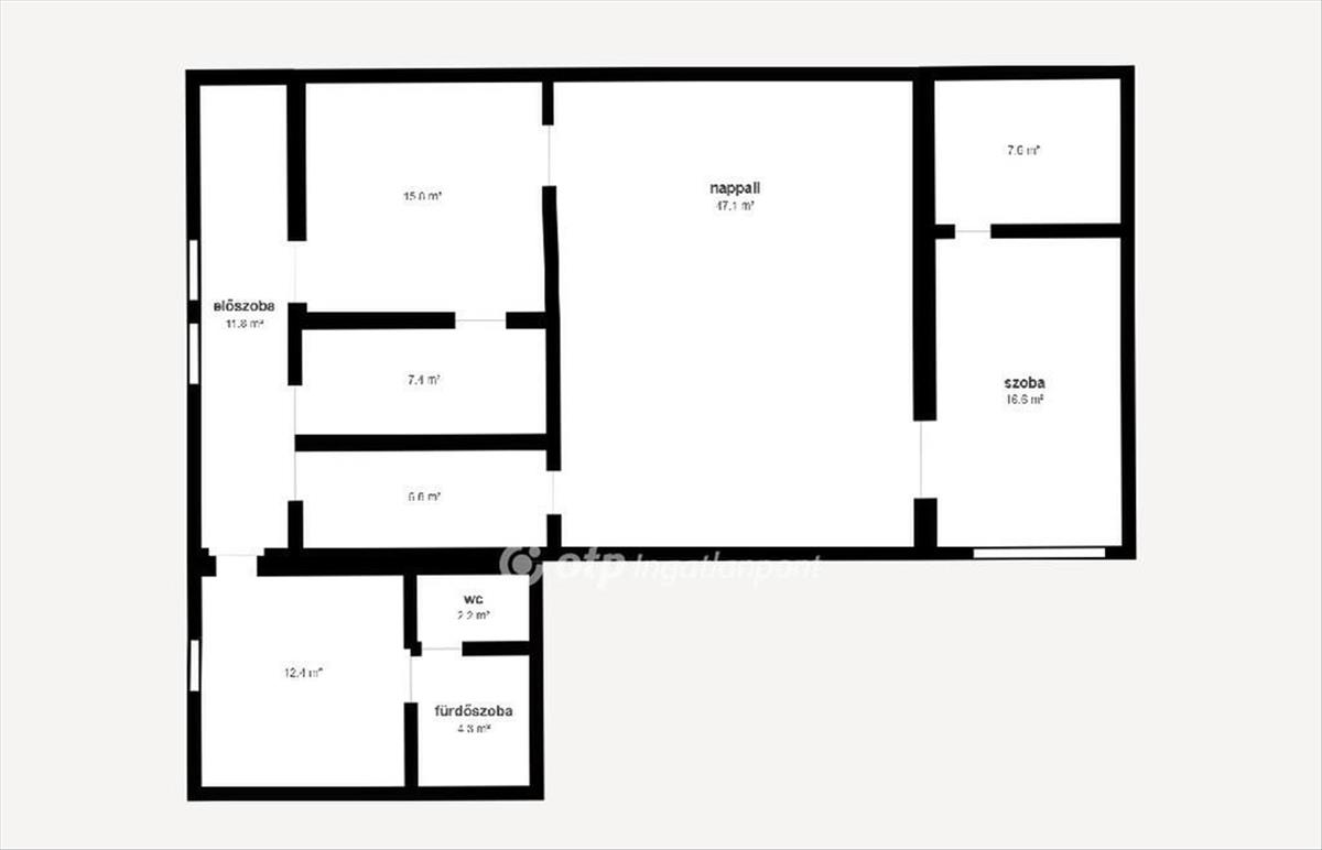
- Alapterület:195 m2
- Telekterület:1513 m2
- Csere is:Nem
- Hirdető:Cég
- Élő videón megtekinthető:Nem
- Építés éve:1960
- Szobaszám:5 + 1 fél
- Állapot:Felújítandó
- Hány szintes az ingatlan:2 szintes
- Tetőtér:nincs megadva
- Komfortosság:nincs megadva
- Pince:nincs megadva
- Parkolási lehetőség:Udvaron
- Fűtés:Egyéb
- Bútorozottság:nincs megadva
- Fényviszony:Napfényes
- Tájolás:D
- Kilátás:nincs megadva
- Internet:nincs megadva
- Klíma:nincs megadva
- Akadálymentesített:nincs megadva
- Energiatanúsítvány:nincs megadva
- Villany:Van
- Víz:Van
- Gáz:Van
- Csatorna:Van
- Kapcsolatfelvétel

Czugh Péter
+36-(70)-393-4954
Mondd meg a hirdetőnek, hogy a megveszLAK-on találtad a hirdetést.
Referencia szám: M323147
Hitel ajánlatok
Ingatlan hirdetés leírása
Eladó vállalkozásra is alkalmas ház, Kazincbarcika
Kazincbarcika, a 26-os főút és az új M 260-as gyorsforgalmi úthoz közel, egy rendkívüli lehetőséggel rendelkező családi ház eladó, amely vállalkozások számára is ideális választás. Az ingatlan 1513 nm -es telken fekszik, és a ház 195 nm -es hasznos alapterülettel rendelkezik, kiegészítve egy tágas, 64 nm -es fedett terasszal és 16 nm -es erkéllyel. a telek két irányból is megközelíthető, és bővíthető is, így számos lehetőséget rejt. Kiválóan alkalmas akár kamionos forgalom lebonyolítására is, az udvaron 6 autó parkolása biztosított. Az ingatlan teljes közművel rendelkezik: gáz, 380 v, ipari és ivóvíz, valamint szennyvíz csatorna is kiépítve. Az előkert 500 nm , ami különösen vonzó lehet vállalkozások számára. a ház 1960-ban épült tégla falazattal, de 2006-ban teljes tetőfelújításon esett át, új mediterrán cserépfedéssel és hőszigetelt tetőtéri ablakokkal. a terveken szerepelt egy lépcső, amely a tetőtérbe vezetett volna, ahol két különálló helyiség alakítható ki. a központi, 6, 7 m belmagasságú, fényárban úszó tágas nappali (aula) egyedülálló atmoszférát biztosít, amely közvetlen kapcsolatban áll a terasszal. a teraszajtók és a bejárati ajtók mind hőszigeteltek, míg a hátsó falon elhelyezett üvegtégla tovább fokozza a tér világosságát. Az átalakítások elkezdődtek, de a tulajdonos már nem folytatja őket, így a leendő vásárló saját ízlése és elképzelései szerint alakíthatja a belső teret. Ez a ház ideális lehetőséget biztosít arra, hogy akár egy modern, tágas családi otthonná, akár az eredeti tervek szerint egy különleges üzlethelyiséggé, vagy éppen telephellyé váljon. Az előkert, a terasz és az aula tökéletes helyszínt biztosíthat étterem, vendéglátóhely vagy rendezvények számára is.
OTP Banki hátterünknek köszönhetően finanszírozási igényekben (pl. Otthon Start Hitelprogram, Babaváró, Falusi csok, CSOK Plusz, Lakáshitel, Személyi kölcsön stb. ), Illetve biztosítások tekintetében is díjmentesen, soron kívüli ügyintézéssel segítjük ügyfeleinket. M323147
Érdeklődni: Czugh Péter 70-3934954 FIX 3% lakáshitelre megvehető
Tetszett ez az eladó Kazincbarcikai felújítandó 5 egész és 1 fél szobás családi ház? Hívd fel a hirdetőt most, és tudj meg mindent erről az eladó családi házról! Ha gondolod nézelődj tovább az eladó ház Kazincbarcika oldal hirdetései között. Ennek az eladó háznak az ára 26500000 Ft és mivel az alapterülete 195 négyzetméter, ezért az átlagos négyzetméterára 135897 HUF/m2.
Az eladó házak menüpontban további hirdetések között is böngészhetsz. Ha van kedved, akkor böngészhetsz a Czugh Péter összes hirdetése között, vagy akár a/az OTPip Miskolc Corvin utca 1-3 - OTP Ingatlanpont Iroda összes hirdetése között is.

