Eladó új építésű ház Kiskunlacháza
| Kedvencbe | Megosztás | Árfigyelő |
| FIX 3% lakáshitelre megvehető | ||
| 84 000 000 HUF | ||
Ingatlan adatai
- Eladó vagy kiadó:Eladó
- Település:Kiskunlacháza
- Kategória:Ház
- Alkategória:Családi ház
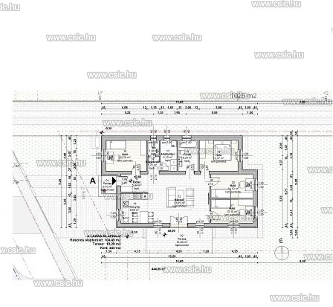
- Alapterület:105 m2
- Telekterület:445 m2
- Csere is:Nem
- Hirdető:Cég
- Élő videón megtekinthető:Nem
- Építés éve:2025
- Szobaszám:5
- Állapot:Új építésű
- Hány szintes az ingatlan:nincs megadva
- Tetőtér:nincs megadva
- Komfortosság:Összkomfortos
- Parkolási lehetőség:Beállóban
- Fűtés:nincs megadva
- Bútorozottság:nincs megadva
- Fényviszony:nincs megadva
- Tájolás:nincs megadva
- Kilátás:nincs megadva
- Internet:nincs megadva
- Akadálymentesített:nincs megadva
- Energiatanúsítvány:nincs megadva
- Villany:Van
- Víz:Van
- Gáz:nincs megadva
- Csatorna:Van
- Üzenetküldés
- Hívás


Hitel ajánlat
Ingatlan hirdetés leírása
ELADÓ CSALÁDI HÁZ KISKUNLACHÁZA ÚJÉPÍTÉSŰ
Eladók új építésű különálló házak Kiskunlacházán! a házak 91 nm-től 107 nm-ig elérhetőek, nappali+3, vagy nappali+4 szobás, kertkapcsolatos otthonok!Kiskunlacháza csendes, mégis könnyen megközelíthető részén kínálunk eladásra modern, energiahatékony, új építésű házakat, amely ideális választás családoknak vagy pároknak, akik kényelmes és fenntartható otthonra vágynak.
Főbb jellemzők:
- Nappali+3, vagy nappali+4 külön nyíló szoba – praktikus elrendezés a kényelmes mindennapokhoz
- Hőszivattyús padlófűtés – energiatakarékos, környezetbarát megoldás
- Tágas terasz és saját kertkapcsolat – tökéletes hely a pihenéshez, családi és baráti összejövetelekhez
- Új építésű, korszerű kialakítás – modern megjelenés és minőségi anyaghasználat
Műszaki tartalom (részlet)
- falazata 30-as Leier tégla 10 cm-es grafitos szigeteléssel, lábazat 12 cm xps szigetelés
- válaszfalak 10 cm-es tégla
- födémen 25 cm-es fújt szigeteléssel
- hőszivattyús padlófűtés
- 3 rétegű külső nyílászárók, felér kivitelben
- hideg-, meleg burkolatok, szaniterek belső nyílászárók választhatók
Várható átadás 2026. Nyara
Az ingatlanok akár 10% foglalóval leköthetőek, a fizetési ütemezés a beruházóval egyeztetve történik
A lakóegység alapterülete kiválóan optimalizált, a nappali és a szobák világosak, jól bútorozhatók. a kert ideális gyermekeknek, kerti partikhoz vagy akár egy kis veteményes kialakításához.
Elérhető házak:
I. A: telek 413 nm, 91 nm n+3 szoba: 72, 8 M
B: telek 521 nm, 99 nm n+4 szoba: 79, 2 M
II. A: telek 412 nm, 99 nm n+4 szoba: 79, 2 M
B: telek 522 nm, 99 nm n+4 szoba: 79, 2 M
III. A: telek 445 nm, 105 nm n+4 szoba: 84 M
B: telek 697 nm, 105 nm n+4 szoba: 84 M
IV. A: telek 416 nm, 105 nm n+4 szoba: 84 M
B: telek 609 nm, 105 nm n+4 szoba: 84 M
V. A: telek 576 nm, 106 nm n+4 szoba: 84, 8 M
B: telek 577 nm, 107 nm n+4 szoba: 85, 6 M
Elhelyezkedés: nyugodt környezet, jó közlekedési lehetőségek Budapest irányába is (év végétől kötöttpályással kiegészülve)– kiváló választás!
A lakás az összes jelenleg futó támogatásra jogosult, melyben bankfüggetlen hiteltanácsadó díjmentesen segít. Amennyiben megtekintené, vagy egyéb kérdése lenne, keressen bizalommal, akár hétvégén is! FIX 3% lakáshitelre megvehető

