Eladó felújítandó ház - Kiskunmajsa
- INGYENES HIRDETÉS FELADÁS
Ingatlan adatai
- Eladó vagy kiadó:Eladó
- Település:Kiskunmajsa
- Kategória:Ház
- Alkategória:Családi ház
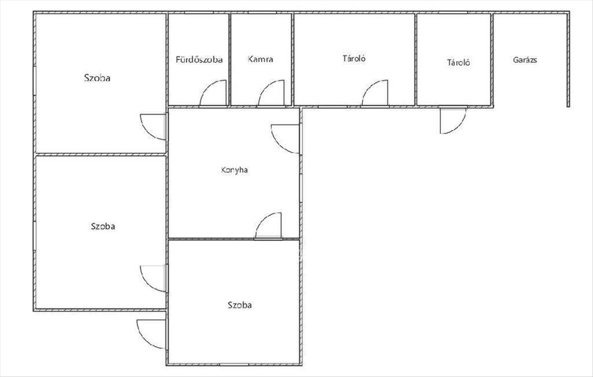
- Alapterület:87 m2
- Telekterület:630 m2
- Csere is:Nem
- Hirdető:Cég
- Élő videón megtekinthető:Nem
- Építés éve:1980
- Szobaszám:3
- Állapot:Felújítandó
- Hány szintes az ingatlan:Földszintes
- Tetőtér:nincs megadva
- Komfortosság:nincs megadva
- Pince:nincs megadva
- Parkolási lehetőség:Udvaron
- Fűtés:Egyéb
- Bútorozottság:nincs megadva
- Fényviszony:Napfényes
- Tájolás:nincs megadva
- Kilátás:nincs megadva
- Internet:nincs megadva
- Klíma:nincs megadva
- Akadálymentesített:nincs megadva
- Energiatanúsítvány:nincs megadva
- Villany:nincs megadva
- Víz:nincs megadva
- Gáz:nincs megadva
- Csatorna:nincs megadva
- Kapcsolatfelvétel

Arnoth-Kuczora Eszter
+36-(30)-472-6467
Mondd meg a hirdetőnek, hogy a megveszLAK-on találtad a hirdetést.
Referencia szám: M322037
Hitel ajánlatok
Ingatlan hirdetés leírása
Eladó Ház, Kiskunmajsa
*** Csak az OTP Ingatlanpont kínálatában eladó ***Felújítandó, tégla építésű családi ház eladó Kiskunm ajsán! Kiskunm ajsa csendes részén eladó egy 87 m2-es, téglaépítésű családi ház, 630 m2-es telken, amely kiváló lehetőség azok számára, akik saját igényeik szerint szeretnék kialakítani otthonukat. Az ingatlan 3 tágas szobával, konyhával, kamrával és fürdőszobával rendelkezik. a ház jelenleg felújítandó állapotú, ugyanakkor szerkezete stabil, a tető jó állapotban van, így kiváló alapot nyújt egy átalakításhoz vagy korszerűsítéshez.
Fűtés jelenleg nincs, azonban kályhás fűtés könnyedén megoldható, korábban is így használták az ingatlant. a meleg vizet villanybojler biztosítja. Jó hír, hogy a villanyhálózatot 2023-ban teljes körűenfelújították, réz vezetékekkel, így ezen a téren már nem szükséges beruházni. a telken található melléképület, amelyben 2 tárolóhelyiség és egy kisebb garázs kapott helyet, ideális műhelynek, raktárnak vagy akár hobbi célokra is. Az ingatlan jelen állapotában, a fűtés hiánya miatt hitelfelvételre nem alkalmas, de ha a vevőnek hitelre van szüksége a vásárláshoz, a tulajdonos gondoskodik a fűtésről, így már igénybevehető jelzáloghitel, csok+, vagy Otthon Start hitel is az ingatlan megvásárlásához.
Ez az ingatlan remek választás lehet befektetőknek, felújítást kedvelőknek, vagy mindazoknak, akik nyugodt környezetben, saját elképzeléseik szerint szeretnének otthont teremteni. Ne hagyja ki ezt a lehetőséget Kiskunm ajsán! Amennyiben az OTP Ingatlanpont kínálatából választ, számíthat szakmai támogatásunkra a teljes vételi folyamat során az adásvételi szerződés megkötésétől a hitel-ügyintézésen át az ingatlan átadásáig. Ajánlom minden kedves ügyfelem részére az OTP Bank által közvetített Babaváró, CSOK plusz, Otthon Start Hitelprogram vagy egyéb kölcsönök intézését. Az OTP Ingatlanpont kedvezményes pénzügyi konstrukciókkal áll ügyfelei rendelkezésére, és VIP-szolgáltatást nyújt az OTP-hiteltermékek, ügyintézésben. Kedvező hitelajánlatokkal (babaváró hitel, piaci hitel, és szabadfelhasználású hitel) várjuk jelentkezését. Számos konstrukció közül választhatnak. ***Válasszuk ki együtt az önnek legmegfelelőbb ajánlatot! Banki sorban állás nélkül! ***
Referencia szám: m322037-ml FIX 3% lakáshitelre megvehető
Tetszett ez az eladó Kiskunmajsai felújítandó 3 szobás családi ház? Hívd fel a hirdetőt most, és tudj meg mindent erről az eladó családi házról! Ha gondolod nézelődj tovább az eladó ház Kiskunmajsa oldal hirdetései között. Ennek az eladó háznak az ára 27900000 Ft és mivel az alapterülete 87 négyzetméter, ezért az átlagos négyzetméterára 320690 HUF/m2.
Az eladó házak menüpontban további hirdetések között is böngészhetsz. Ha van kedved, akkor böngészhetsz a Arnoth-Kuczora Eszter összes hirdetése között, vagy akár a/az OTPip Szentes Petőfi utca 12 - OTP Ingatlanpont Iroda összes hirdetése között is.

