Eladó új építésű ház - Kóka
- INGYENES HIRDETÉS FELADÁS
Ingatlan adatai
- Eladó vagy kiadó:Eladó
- Település:Kóka
- Kategória:Ház
- Alkategória:Családi ház
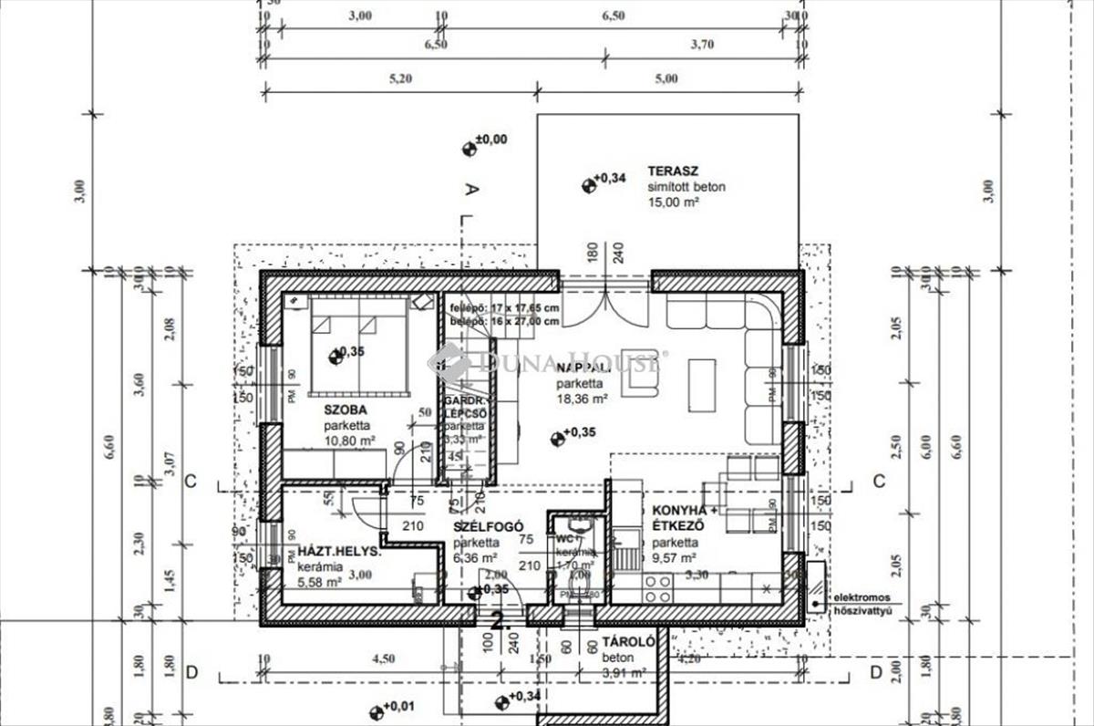
- Alapterület:89 m2
- Telekterület:512 m2
- Csere is:Nem
- Hirdető:Cég
- Élő videón megtekinthető:Nem
- Építés éve:2026
- Szobaszám:4
- Állapot:Új építésű
- Hány szintes az ingatlan:Földszintes
- Tetőtér:nincs megadva
- Komfortosság:nincs megadva
- Pince:nincs megadva
- Parkolási lehetőség:nincs megadva
- Fűtés:Hőszivattyús
- Bútorozottság:nincs megadva
- Fényviszony:Napfényes
- Tájolás:K
- Kilátás:nincs megadva
- Internet:nincs megadva
- Klíma:nincs megadva
- Akadálymentesített:nincs megadva
- Energiatanúsítvány:nincs megadva
- Villany:Van
- Víz:Van
- Gáz:Nincs
- Csatorna:Van
- Kapcsolatfelvétel

Horváth Bence
+36-(30)-469-4413
Mondd meg a hirdetőnek, hogy a megveszLAK-on találtad a hirdetést.
Referencia szám: HZ016127
Hitel ajánlatok
Ingatlan hirdetés leírása
Új építésű házak között, nyugodt békés utcában épül az ingatlan.
Új építésű házak között, nyugodt békés utcában épül az ingatlan.
920m2 sarok telek, ügyvédi megosztóval ketté választva, teljesen privát elkerített telekkel.
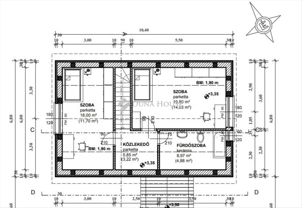
Tetőtér beépítéses lakás:
- nettó hasznos alapterület: 89, 53 (az emeleten csak 1, 8 m felett mérve, tehát valójában nagyobb)
- 30 cm pth teherhordó tégla falazat 10 cm grafitos dryvit szigeteléssel
- monoblokkos hőszivattyús padlófűtési rendszer
- split klíma előkészítés egy végpontra
- szigetelt fafödém
- beton vagy kerámia cserépfedés
Burkolatok 5000ft/m2
Burkolatok:
- előtér, konyha, hth-wc, fürdőszoba mázas kerámia járólap 33x33 cm méretig, fürdőszobában 2, 0 m-ig fali csempe, konyhapult felett fali csempe, szoba, nappali laminált lap (5000ft/m2-ig állja a kivitelező)
Glettelés, festés:
- bandázsolás, glettelés, két réteg diszperziós falfestés fehér színre, látszó fa felületeken lazúrozás
Nyílászárók:
- műanyag homlokzati nyílászárók 3 réteg üvegezéssel min 76 mm vtg szerkezettel, bejárati ajtó mabisz minősítéssel, beltéri ajtók cpl kivitelben utólag szerelhető tokkal fém kilinccsel
gépészet:
- monoblokkos levegő-víz hőszivattyús fűtés és meleg víz termelés, padlófűtés programozható WIFI-s termosztáttal, fürdőben 1 db elektromos fűtésű törölközőszárító radiátor, Alföldi vagy kolo szaniterek, mofém csaptelepek,
170 cm akril vagy lemezkád, álló- alsó kifolyású WC-k falon kívüli tartállyal, klíma előkészítés, (zuhanyfülke opcióban rendelhető)
A szanitereket a cég 500. 000 Ft-ig állja.
Elektromos szerelések:
- 3x16A elektromos áram bekötés légkábellel, kapcsolók, aljzatok Asfora vagy hasonló minőségben, 0, 75-s mbcu vezetékek védőcsőben vezetve, internet részére egy végpontra csövezés
Helyiségenként 3 dugaj és 1 kapcsoló van az árban.
Külső munkák:
- közműbekötések, 150 cm drótkerítés betonoszlopokkal, simított beton járda bejáratnál, kb. : 16 m2 simított beton terasz, gk beálló zúzott kőből murva terítéssel.
A cég 25 éves makulátlan múlttal rendelkező, leellenőrizhető. Számtalan referencia munka!
Minden hitelre alkalmas az ingatlan!
- Kivitelezés kezdete: 2026. 1. Negyedév
- kivitelezés befejezése : 2026. 4. Negyedév
Bármi kérdése van hívjon bizalommal!
Érd. : Horváth Bence +36304694413 email: horvath. Bence1@dh. Hu
Referencia szám: hz016127 FIX 3% lakáshitelre megvehető
Tetszett ez az eladó Kókai új építésű 4 szobás családi ház? Hívd fel a hirdetőt most, és tudj meg mindent erről az eladó családi házról! Ha gondolod nézelődj tovább az eladó ház Kóka oldal hirdetései között. Ennek az eladó háznak az ára 61990000 Ft és mivel az alapterülete 89 négyzetméter, ezért az átlagos négyzetméterára 696517 HUF/m2.
Az eladó házak menüpontban további hirdetések között is böngészhetsz. Ha van kedved, akkor böngészhetsz a Horváth Bence összes hirdetése között, vagy akár a/az Duna House Home Center összes hirdetése között is.

