Eladó felújítandó ház - Kustánszeg
- INGYENES HIRDETÉS FELADÁS
Ingatlan adatai
- Eladó vagy kiadó:Eladó
- Település:Kustánszeg
- Kategória:Ház
- Alkategória:Családi ház
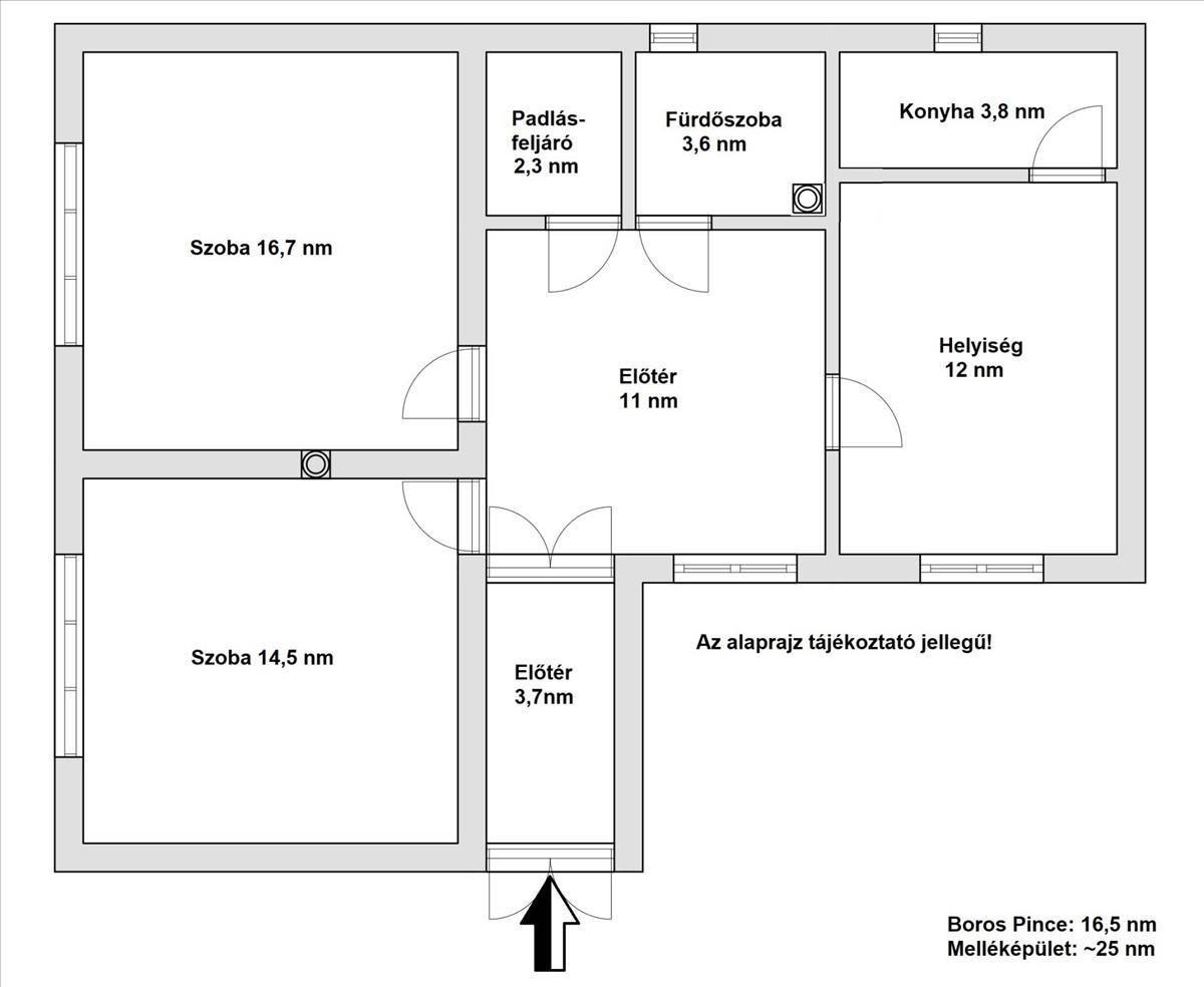
- Alapterület:67 m2
- Telekterület:2315 m2
- Csere is:Nem
- Hirdető:Cég
- Élő videón megtekinthető:Nem
- Szobaszám:3
- Állapot:Felújítandó
- Hány szintes az ingatlan:nincs megadva
- Tetőtér:nincs megadva
- Komfortosság:nincs megadva
- Pince:nincs megadva
- Parkolási lehetőség:nincs megadva
- Fűtés:Egyéb
- Bútorozottság:nincs megadva
- Fényviszony:nincs megadva
- Tájolás:nincs megadva
- Kilátás:nincs megadva
- Internet:nincs megadva
- Klíma:nincs megadva
- Akadálymentesített:nincs megadva
- Energiatanúsítvány:nincs megadva
- Villany:nincs megadva
- Víz:nincs megadva
- Gáz:nincs megadva
- Csatorna:nincs megadva
- Kapcsolatfelvétel

Vulpe Péter
+36707986200
Mondd meg a hirdetőnek, hogy a megveszLAK-on találtad a hirdetést.
Hitel ajánlatok
Ingatlan hirdetés leírása
A 23125 nm-es telken álló, közel 70 nm-es házat a ‘60-as évekb...
A 23125 nm -es telken álló, közel 70 nm -es házat a ‘60-as években építették hagyományos tégla falazattal, beton alappal és stukatúr födémmel.
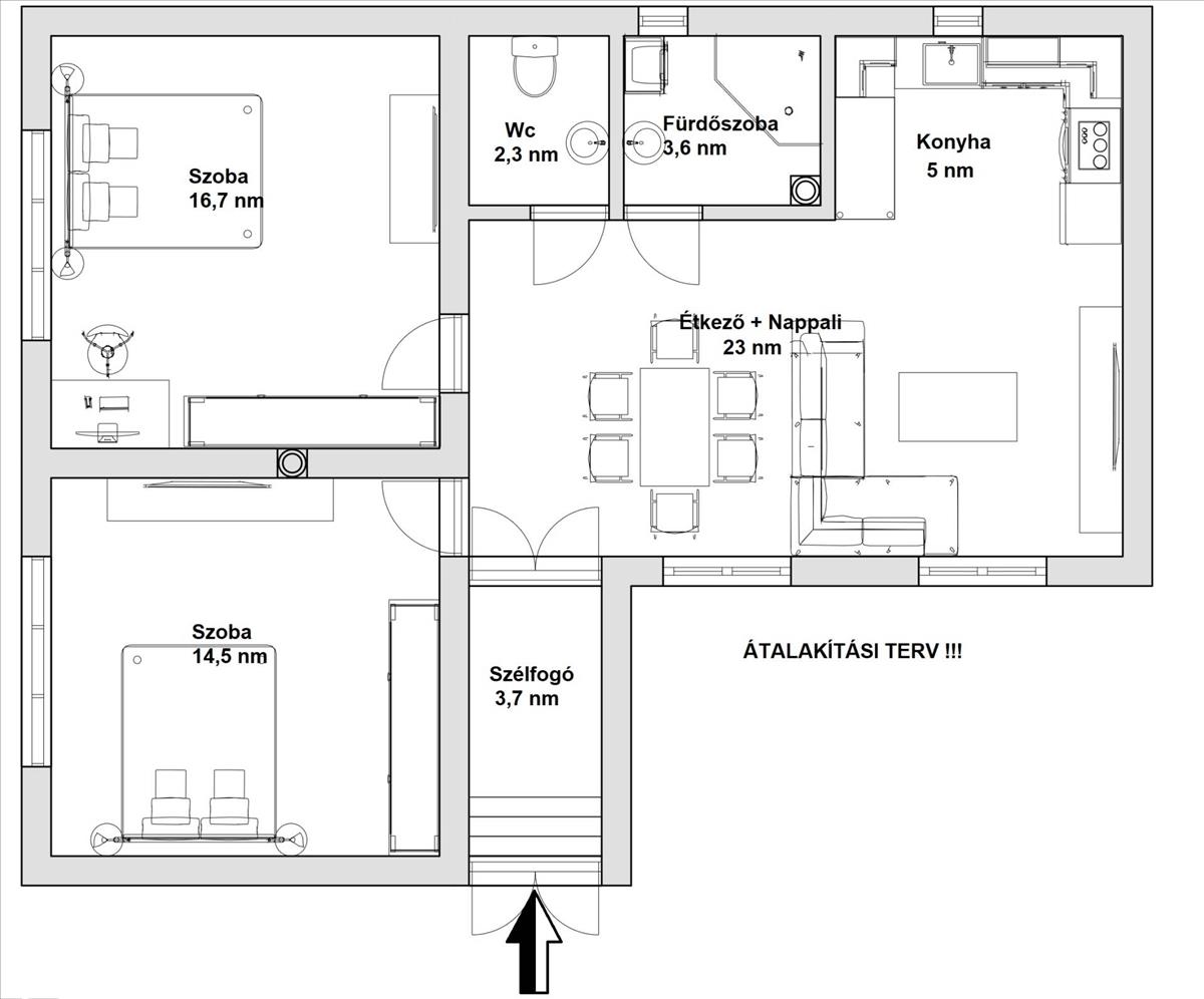
A ház jelenlegi kialakítása szerint, 3 helyiség alkalmas szobának. Található benne egy kádas fürdőszoba, egy konyha, egy kamra és egy padlásfeljáró. a mellékelt átalakítási terv alapján könnyen átalakítható egy fantasztikus tágas terekkel rendelkező, amerikai konyhás nappali + étkező + 2 hálószobás házikóvá. Az épület állapota teljesen felújítandó, így mindenképpen érdemes számolni a költségekkel, viszont egy nagyon száraz és stabil alapokkal rendelkező épületről van szó.
A ház alatt található egy 16, 5 négyzetméteres (boros)pince, illetve egy nettó ~25 négyzetméteres melléképület, melynek 2 bejárata van, az egyikben eredetileg egy kazánházat szerettek volna (így erre a részre be van húzva a gázvezeték is), illetve közvetlenül mellette található egy 2 helyiséges épületrész, ami alkalmas lehet nyári konyhának, a belső részben pedig megépítettek egy hatalmas kemencét, ami jó/használható állapotban van.
A nagy telekméretnek köszönhetően állattartás, virágos vagy beültethető kert könnyen megvalósítható. a nagycsaládosok számára a kisgyerekeknek is sok lehetőséget kínálhat az udvar.
Műszaki:
Nyílászárók fából készültek, a fűtést fatüzelésű kályhák és gázkonvektor biztosítják.
A közművek közül a víz, áram és a gáz is be van vezetve az épületbe, a szennyvízelvezetés megoldott. a ház alatt egy 16, 5 nm -es “pince” rész található, az egyik melléképületben egy beépített, működőképes kemencével.
Az udvaron egy különálló beton alapú, tégla szerkezetű garázs áll, melybe bekötésre került a víz, villany, és 380-as ipari áram is, így akár műhelynek is tökéletes lehet.
Az egyik melléképület alkalmas a kerti kisgépek, szerszámok és használati tárgyak tartására.
Ajánlom:
Mindazoknak akik szeretnék kihasználni a kert adta lehetőségeket, valamint egy csendesebb környezetben szeretnének élni, nagyon kedves és barátságos szomszédokkal. a horgásztó közelsége is tovább emeli a település közkedveltségét/színvonalát és turizmusát.
Buszmegálló a háztól kb 200 m-re található, akárcsak a Vegyesbolt is. FIX 3% lakáshitelre megvehető
Tetszett ez az eladó Kustánszegi felújítandó 3 szobás családi ház? Hívd fel a hirdetőt most, és tudj meg mindent erről az eladó családi házról! Ha gondolod nézelődj tovább az eladó ház Kustánszeg oldal hirdetései között. Ennek az eladó háznak az ára 24999000 Ft és mivel az alapterülete 67 négyzetméter, ezért az átlagos négyzetméterára 373119 HUF/m2.
Az eladó házak menüpontban további hirdetések között is böngészhetsz. Ha van kedved, akkor böngészhetsz a Vulpe Péter összes hirdetése között.

