Eladó jó állapotú ház - Miskolc
- INGYENES HIRDETÉS FELADÁS
Ingatlan adatai
- Feladva:71 napja a megveszLAK-on
- Eladó vagy kiadó:Eladó
- Település:Miskolc
- Kategória:Ház
- Alkategória:Családi ház
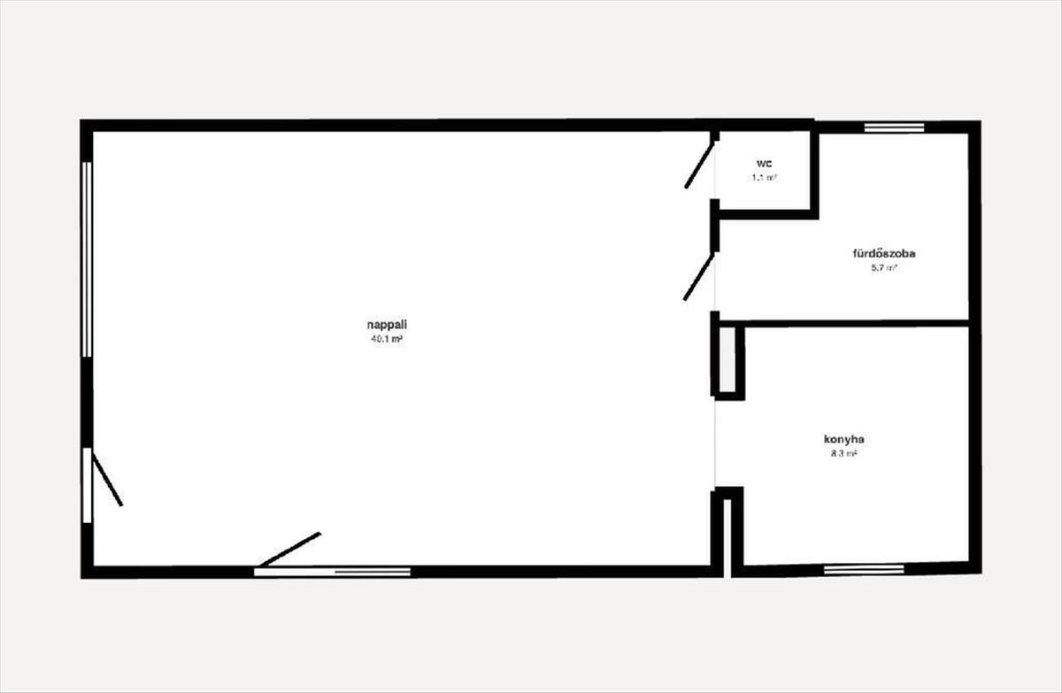
- Alapterület:55 m2
- Telekterület:2220 m2
- Csere is:Nem
- Hirdető:Cég
- Élő videón megtekinthető:Nem
- Építés éve:2023
- Szobaszám:1
- Állapot:Jó állapotú
- Hány szintes az ingatlan:Földszintes
- Tetőtér:nincs megadva
- Komfortosság:nincs megadva
- Pince:nincs megadva
- Parkolási lehetőség:Udvaron
- Fűtés:Egyéb
- Bútorozottság:nincs megadva
- Fényviszony:Napfényes
- Tájolás:nincs megadva
- Kilátás:nincs megadva
- Internet:nincs megadva
- Klíma:nincs megadva
- Akadálymentesített:nincs megadva
- Energiatanúsítvány:nincs megadva
- Villany:nincs megadva
- Víz:nincs megadva
- Gáz:nincs megadva
- Csatorna:nincs megadva
- Kapcsolatfelvétel

Piskóti Tibor Lajos
+36-(70)-322-2946
Mondd meg a hirdetőnek, hogy a megveszLAK-on találtad a hirdetést.
Referencia szám: M322135
Hitel ajánlatok
Ingatlan hirdetés leírása
Eladó Ház, Miskolc, Eladó jó állapotú ház - Miskolc
Családi ház jó áron eladó! Eladó a Bertalan utca végén egy 2022-ben épült 55, 2 nm nettó alapterületű családi ház 2220 nm -es telken! a ház egyszobás, de igény szerint a tulajdonos kétszobássá alakítja. Téglaépítésű, a tetőn Bramac cserepekkel. Fűtéséről és hűtéséről Bosch klímák gondoskodnak, a használati melegvizet hőtárolós villanybojler biztosítja. Fürdő és illemhely külön. Szabadban étkezés és pihenés a ház előtti kényelmes teraszon. Hitelre jelenleg nem alkalmas. Várom hívását! Hétvégén is!
OTP Banki hátterünknek köszönhetően finanszírozási igényekben (pl. Otthon Start Hitelprogram, Babaváró, Falusi csok, CSOK Plusz, Lakáshitel, Személyi kölcsön stb. ), Illetve biztosítások tekintetében is díjmentesen, soron kívüli ügyintézéssel segítem ügyfeleim! Referenciaszám: M322135
Virtuális séta: https://my. Matterport. Com/show/? M=xmhu991c13h19mu92b5rnxq5b&views=0&mls=1
Referencia szám: m322135 FIX 3% lakáshitelre megvehető
Tetszett ez az eladó Miskolci jó állapotú 1 szobás családi ház? Hívd fel a hirdetőt most, és tudj meg mindent erről az eladó családi házról! Ha gondolod nézelődj tovább az eladó ház Miskolc oldal hirdetései között. Ennek az eladó háznak az ára 29900000 Ft és mivel az alapterülete 55 négyzetméter, ezért az átlagos négyzetméterára 543636 HUF/m2.
Az eladó házak menüpontban további hirdetések között is böngészhetsz. Ha van kedved, akkor böngészhetsz a Piskóti Tibor Lajos összes hirdetése között, vagy akár a/az OTPip Miskolc Szemere Bertalan utca 20 - OTP Ingatlanpont Iroda összes hirdetése között is.

