Eladó ház - Nemesnádudvar
- INGYENES HIRDETÉS FELADÁS
Ingatlan adatai
- Eladó vagy kiadó:Eladó
- Település:Nemesnádudvar
- Kategória:Ház
- Alkategória:Családi ház
- Alapterület:160 m2
- Telekterület:nincs megadva
- Csere is:Nem
- Hirdető:Cég
- Élő videón megtekinthető:Nem
- Szobaszám:4
- Állapot:nincs megadva
- Hány szintes az ingatlan:nincs megadva
- Tetőtér:nincs megadva
- Komfortosság:nincs megadva
- Pince:nincs megadva
- Parkolási lehetőség:nincs megadva
- Fűtés:nincs megadva
- Bútorozottság:nincs megadva
- Fényviszony:nincs megadva
- Tájolás:nincs megadva
- Kilátás:nincs megadva
- Internet:nincs megadva
- Klíma:nincs megadva
- Akadálymentesített:nincs megadva
- Energiatanúsítvány:nincs megadva
- Villany:nincs megadva
- Víz:nincs megadva
- Gáz:nincs megadva
- Csatorna:nincs megadva
- Kapcsolatfelvétel

Ádám Viktória
+36-(70)-414-9500
Mondd meg a hirdetőnek, hogy a megveszLAK-on találtad a hirdetést.
Hitel ajánlatok
Ingatlan hirdetés leírása
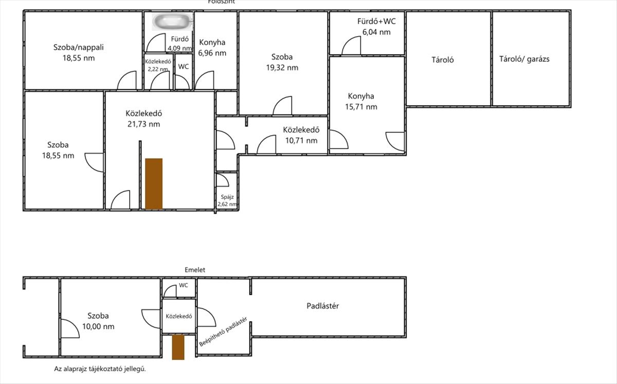
Eladó 160 m2 családi ház, Nemesnádudvar
Bács- Kiskun vármegye Nemesnádudvar központjában 680 nm -es telken számos lehetőséget rejtő kétszintes, kétgenerációs, 160 nm -es családi ház eladó. Földszintjén kialakításra került 3 szoba, 2 fürdőszoba, egyikben fürdőkád található különálló WC-vel, másikban zuhanyzó és wc, 2 konyha, étkező, spájz és közlekedők. emeletén 1 szoba, wc és közlekedő, de lehetőség van további beépítésre is. a ház az 1980-as években épült tégla falazattal, mely 8 cm-es szigetelést kapott. Melegéről gázkazán és/ vagy vegyestüzelésű kazán gondoskodik. a ház kétgeneráció számára is alkalmas. Tartozik hozzá egy utcáról nyíló, elektromos kapuval felszerelt és egy az udvaron található garázs, illetve tárolók. Az ingatlanról készült videó az alábbi linken tekinthető meg: https://vm. Tiktok. Com/ZNRU2qf15/ Bővebb információért keressen bizalommal! Ádám Viktória 06704149500 (hivatkozási szám: m124800) FIX 3% lakáshitelre megvehető
Tetszett ez az eladó Nemesnádudvari 4 szobás családi ház? Hívd fel a hirdetőt most, és tudj meg mindent erről az eladó családi házról! Ha gondolod nézelődj tovább az eladó ház Nemesnádudvar oldal hirdetései között. Ennek az eladó háznak az ára 30000000 Ft és mivel az alapterülete 160 négyzetméter, ezért az átlagos négyzetméterára 187500 HUF/m2.
Az eladó házak menüpontban további hirdetések között is böngészhetsz. Ha van kedved, akkor böngészhetsz a Ádám Viktória összes hirdetése között, vagy akár a/az Adlak összes hirdetése között is.

