Eladó felújítandó ház - Püspökladány
- INGYENES HIRDETÉS FELADÁS
Ingatlan adatai
- Feladva:21 napja a megveszLAK-on
- Eladó vagy kiadó:Eladó
- Település:Püspökladány
- Kategória:Ház
- Alkategória:Családi ház
- Alapterület:80 m2
- Telekterület:1218 m2
- Csere is:Nem
- Hirdető:Cég
- Élő videón megtekinthető:Nem
- Építés éve:1970
- Szobaszám:3
- Állapot:Felújítandó
- Hány szintes az ingatlan:Földszintes
- Tetőtér:nincs megadva
- Komfortosság:nincs megadva
- Pince:nincs megadva
- Parkolási lehetőség:Udvaron
- Fűtés:Gáz (konvektor)
- Bútorozottság:nincs megadva
- Fényviszony:Napfényes
- Tájolás:nincs megadva
- Kilátás:nincs megadva
- Internet:nincs megadva
- Klíma:nincs megadva
- Akadálymentesített:nincs megadva
- Energiatanúsítvány:nincs megadva
- Villany:nincs megadva
- Víz:nincs megadva
- Gáz:nincs megadva
- Csatorna:nincs megadva
- Kapcsolatfelvétel

Oláhné Németi Gréta
+36-(20)-213-3243
Mondd meg a hirdetőnek, hogy a megveszLAK-on találtad a hirdetést.
Referencia szám: M326636
Hitel ajánlatok
Ingatlan hirdetés leírása
Eladó Ház, Püspökladány
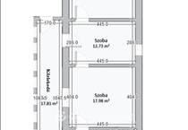
Püspökladány egyik nyugodt utcájában, a Jókai utcában kínálunk megvételre egy 80 m2-es, háromszobás családi házat, amely 1218 m2-es telken helyezkedik el. Az ingatlan felújítandó állapotú, így kiváló lehetőség mindazok számára, akik saját elképzelésük szerint szeretnék kialakítani jövőbeli otthonukat.
Főbb paraméterek:
*Telek mérete: 1218 m2
*Lakóterület: 80 m2
*Építés éve: 1970
*Szobák száma: 3
*Falazat: vegyes (tégla és vályog)
*Alap: beton
*Tető: faszerkezet, cserépfedéssel
*Fűtés: gázkonvektor
*Szint: egyszintes
*Állapot: felújítandó
A nagy méretű telek gazdálkodásra, kertészkedésre vagy akár további fejlesztési lehetőségekre is alkalmas. Az ingatlan rendezett, jó szomszédságú környezetben található, a városközpont pedig rövid idő alatt elérhető.
Ha egy jó adottságokkal rendelkező, saját ízlés szerint alakítható családi házat keres nagy telekkel, ez az ingatlan kiváló választás lehet.
Energetikai tanúsítvány egyelőre nem áll rendelkezésre.
További kérdéseire készséggel válaszolok, akár hétvégén is. Kedvezményes kamatozású lakásvásárlási hitelek, valamint Babaváró és CSOK ügyintézése az OTP hátterével irodánkban. Ref. Szám: M326636
Referencia szám: m326636 FIX 3% lakáshitelre megvehető
Tetszett ez az eladó Püspökladányi felújítandó 3 szobás családi ház? Hívd fel a hirdetőt most, és tudj meg mindent erről az eladó családi házról! Ha gondolod nézelődj tovább az eladó ház Püspökladány oldal hirdetései között. Ennek az eladó háznak az ára 17700000 Ft és mivel az alapterülete 80 négyzetméter, ezért az átlagos négyzetméterára 221250 HUF/m2.
Az eladó házak menüpontban további hirdetések között is böngészhetsz. Ha van kedved, akkor böngészhetsz a Oláhné Németi Gréta összes hirdetése között, vagy akár a/az OTPip Debrecen Kürtös utca 8 - OTP Ingatlanpont Iroda összes hirdetése között is.

