Eladó új építésű ház Ráckeve
| Kedvencbe | Megosztás | Árfigyelő |
| FIX 3% lakáshitelre megvehető | ||
| 70 000 000 HUF | ||
Ingatlan adatai
- Eladó vagy kiadó:Eladó
- Település:Ráckeve
- Kategória:Ház
- Alkategória:Családi ház
- Alapterület:60 m2
- Telekterület:507 m2
- Csere is:Nem
- Hirdető:Cég
- Élő videón megtekinthető:Nem
- Építés éve:2025
- Szobaszám:3
- Állapot:Új építésű
- Hány szintes az ingatlan:Földszintes
- Tetőtér:nincs megadva
- Komfortosság:nincs megadva
- Parkolási lehetőség:nincs megadva
- Fűtés:Egyéb
- Bútorozottság:nincs megadva
- Fényviszony:Jó
- Tájolás:DNY
- Kilátás:nincs megadva
- Internet:nincs megadva
- Akadálymentesített:nincs megadva
- Energiatanúsítvány:nincs megadva
- Villany:nincs megadva
- Víz:nincs megadva
- Gáz:nincs megadva
- Csatorna:nincs megadva
- Üzenetküldés
- Hívás

Papp Tiborné Erika
Mondd meg a hirdetőnek, hogy a megveszLAK-on találtad a hirdetést.
Referencia szám: HZ060300

Hitel ajánlat
Ingatlan hirdetés leírása
Eladó ház, Ráckeve, Eladó új építésű ház - Ráckeve
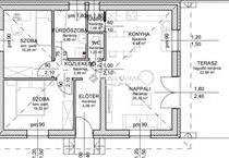
Egyedülálló élmény a Ráckevei Duna-parton! 60 m2-es hasznos alapterületű Önálló újépítésű nyaraló. Itt minden reggel egy új kaland kezdete, és minden este egy romantikus mesébe csöppenhet bele. a természet szerelmesei és az otthon melege iránt vágyakozók egyaránt megtalálják itt számításaikat. Helyiségek:-Előtér: 4, 06m2-Közlekedő: 2, 90m2-Szoba: 10, 92m2-Szoba: 10, 26m2-Fürdőszoba: 4, 86m2-Kamra: 1, 08m2-Wc: 1, 26m2. Konyha: 4, 44m2. Nappali: 20, 35m2-Terasz: 22, 80m2-30m2-es kerti sütögető mely jelenleg is a telken állMűszaki jellemzők:-Az 507m2-es telek víz, villany és csatornahálózattal ellátott. -Tégla építés-Betonfödém szigetelve-Terrán cserépfedés-6 légkamrás színes műanyag nyílászárók 1. 0-Ás hőszigetelt üvegezéssel, vakolhatótokos elektromos redőnnyel. Külső színes lemezpárkény, belső műkő párkányokkal. -Belső válaszfalajtók dekor fóliás stand-door mdf szerkezet, szín választható (tele ajtó) 80. 000. -Ft-ig/db-Víz, csatorna, H-tarifás villanyóra, elektromos felszálló vezetékek a telken lévő közműhálózatra való csatlakozással. -Hűtő-fűtő klíma 3 db-Melegvíz ellátására indirekt hőtárolós tartály-Kertépítés: Durva tereprendezés. Viacolor járda, gépkocsibeálló 7. 000. -Ft/nm-Kerítés: Utca fronton zsalukő kerítés deszka borítással, elektromos tolókapu, kiskapu-Két ház közti kerítés: 1 sor zsalukő, táblás kerítéselemmel. -Kerti csap-Hideg burkolás: a vevő a padlólapokat és csempéket kiválaszthatja 10. 000. -Ft/nm ár-ig, amennyiben a burkolat ára magasabb, úgy azt a különbözetet többletként kell megfizetni. -Meleg burkoló munkálatok: Választható laminált parketta elhelyezését tartalmazza az ár bruttó 10. 000. -Ft/nm árig habszivaccsal, szegélyléccel. a megrendelő többféle szín közül választhatja ki a neki legjobban megfelelőt: tölgy, bükk, juhar, cseresznye stb. -Az ingatlanhoz külön felár ellenében megvásárolható egy vadonat új stég is a háztól 50méterre, melynek összege 7. 000. 000Ft. -A telken jelenleg van egy 15m2-es összkomfortos téliesített tégla ház mely azonnal birtokba vehető, így Ráckeve élvezhető az építkezés alatt is, melyet a kivitelező saját költségén elbont majd. Az építtető megbízható kivitelező referencia munkákkal rendelkezik, bátran jöjjenek és nézzék meg személyesen a helyszínt. Elhelyezkedés:Álmai otthona karnyújtásnyira a Duna parttól a Somlyó szigeten helyezkedik el. Ráckeve városközpontja 10perces autóútra van. Részletes műszaki leírás és személyes megtekintés miatt keressenek bizalommal!Referencia szám: hz060300-ml FIX 3% lakáshitelre megvehető

