Eladó új építésű ház Szentendre
| Kedvencbe | Megosztás | Árfigyelő |
| Kedvezményes lakáshitel ajánlatok | ||
| 181 900 000 HUF | ||
Ingatlan adatai
- Eladó vagy kiadó:Eladó
- Település:Szentendre
- Kategória:Ház
- Alkategória:Családi ház
- Alapterület:143 m2
- Telekterület:728 m2
- Csere is:Nem
- Hirdető:Cég
- Élő videón megtekinthető:Nem
- Építés éve:2026
- Szobaszám:5
- Állapot:Új építésű
- Hány szintes az ingatlan:nincs megadva
- Tetőtér:nincs megadva
- Komfortosság:nincs megadva
- Parkolási lehetőség:nincs megadva
- Fűtés:nincs megadva
- Bútorozottság:nincs megadva
- Fényviszony:nincs megadva
- Tájolás:nincs megadva
- Kilátás:nincs megadva
- Internet:nincs megadva
- Akadálymentesített:nincs megadva
- Energiatanúsítvány:nincs megadva
- Villany:Van
- Víz:Van
- Gáz:Van
- Csatorna:Van
- Üzenetküldés
- Hívás


Hitel ajánlat
Ingatlan hirdetés leírása
ÚJ ÉPÍTÉSŰ CSALÁDI HÁZ PISMÁNY ALSÓ RÉSZÉN!
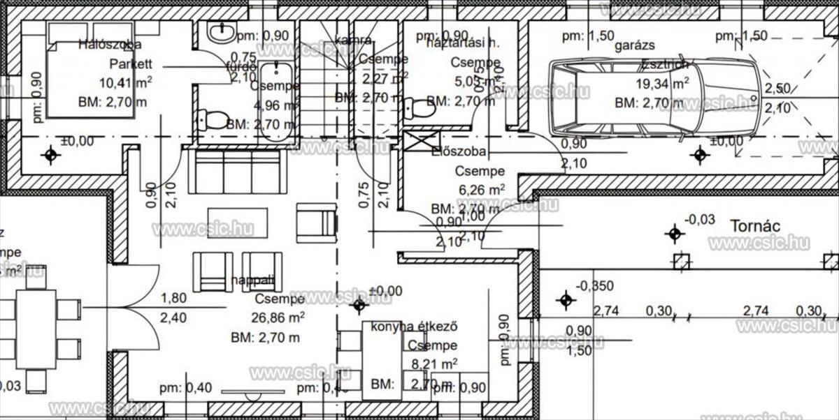
Új építésű családi ház pismány alsó RÉSZÉN!Eladó Szentendrén, Pismány alsó részén egy 143 m2-es, új építésű, kétszintes családi ház 728 m2-es telekkel. a ház 30-as síkracsiszolt téglából épül, 12 cm-es szigeteléssel, műanyag nyílászárókkal, redőnnyel.
A ház alsó szintjén előszoba, nappali-étkező-konyha, kamra, egy hálószoba (saját fürdőszobával), háztartási helyiség és 1 autó parkolására alkalmas garázs kerül kialakításra.
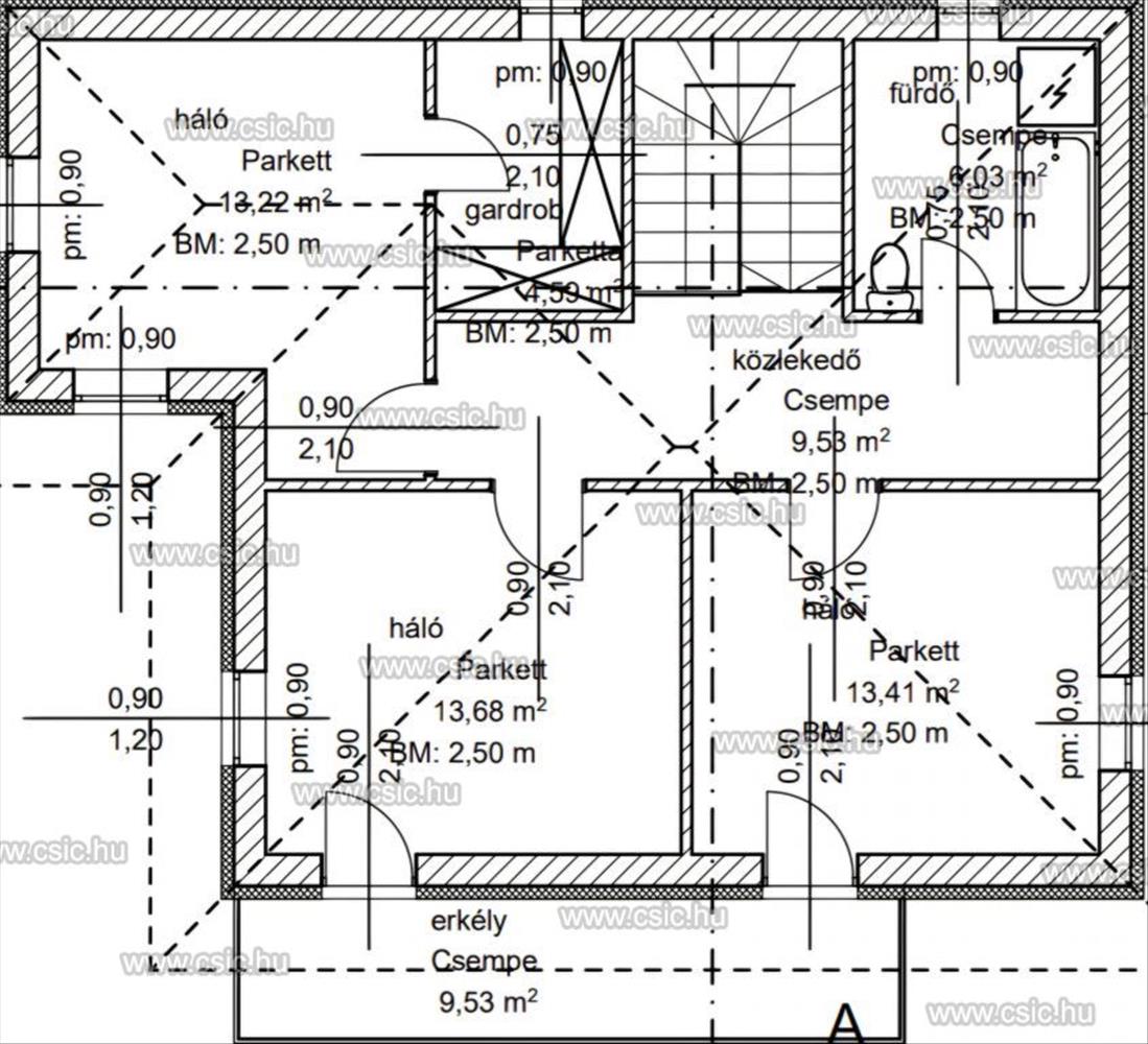
Az emeleten közlekedő, 3 szoba, fürdőszoba és egy gardrób kap helyet.
A fűtést hőszivattyú biztosítja.
Buszmegálló, óvoda, iskola, bevásárlási lehetőség a közelben.
Várható átadás: 2026 nyara. Hitel.hu - Hasonlítsa össze a bankok lakáshitel ajánlatait

