Eladó felújított ház Szentendre
| Kedvencbe | Megosztás | Árfigyelő |
| FIX 3% lakáshitelre megvehető | ||
| 67 990 000 HUF | ||
Ingatlan adatai
- Eladó vagy kiadó:Eladó
- Település:Szentendre
- Kategória:Ház
- Alkategória:Családi ház
- Alapterület:53 m2
- Telekterület:553 m2
- Csere is:Nem
- Hirdető:Cég
- Élő videón megtekinthető:Nem
- Szobaszám:3
- Állapot:Felújított
- Hány szintes az ingatlan:nincs megadva
- Tetőtér:nincs megadva
- Komfortosság:Összkomfortos
- Parkolási lehetőség:Beállóban
- Fűtés:Egyéb
- Bútorozottság:nincs megadva
- Fényviszony:nincs megadva
- Tájolás:nincs megadva
- Kilátás:nincs megadva
- Internet:nincs megadva
- Akadálymentesített:nincs megadva
- Energiatanúsítvány:nincs megadva
- Villany:Van
- Víz:Van
- Gáz:Van
- Csatorna:nincs megadva
- Üzenetküldés
- Hívás


Hitel ajánlat
Ingatlan hirdetés leírása
Szentendre HÁZ 53 nm, felújított
Szentendrei HÁZIKÓ!Szentendrén a Kada csúcs közelében kínálunk megvételre egy teljeskörűen felújított tégla házat.
Szentendre egyik legnyugodtabb zsákutcájában, átmenő forgalom nélküli, természetközeli, csendes zöld környezetben.
Az ingatlan főbb adatai:
- Hasznos alapterület: 53 nm
- Telek mérete: 552nm
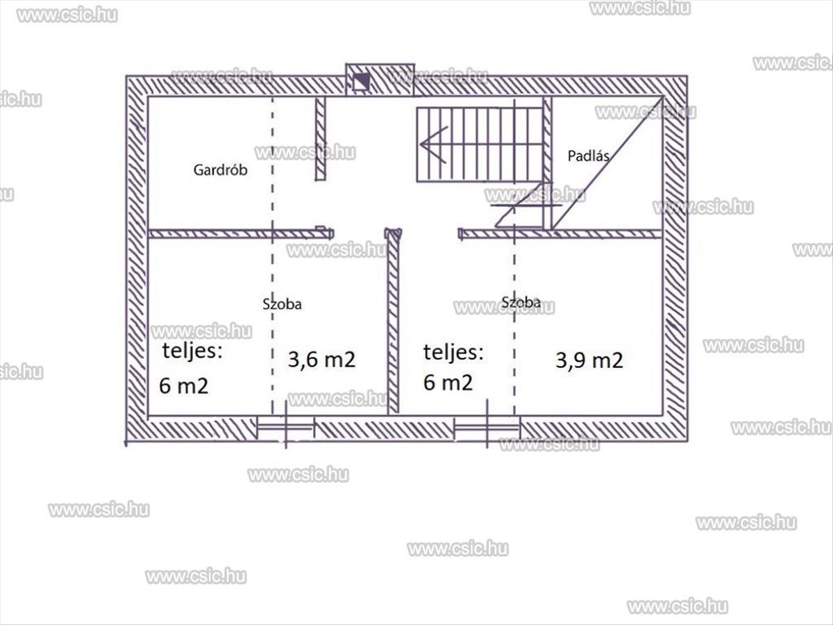
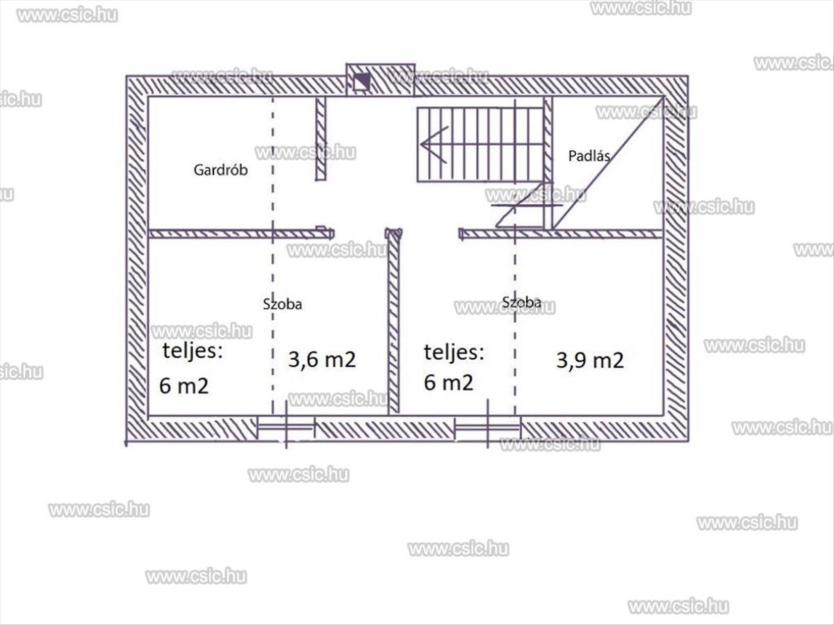
- Szobák: 1+2 félszoba
- Szintek száma:2
- Tetőtér: Beépített
- Fűtés: gázkazán (radiátor minden helyiségben)
- Parkolás:Udvari beálló
- Pince: van
- Állapot: felújított
Az ingatlan 5 éve teljes külső-belső felújításon esett át:
- tetőcsere
- új nyílászárók és bejárati ajtó
- villanyvezetékek teljes cseréje
- gáz bevezetése
- emésztő cseréje
A ház bővítésére van lehetőség, az egyik terasz beépítésével nyerhető még 17 nm plusz lakótér.
Két melléképület is tartozik a házhoz, az egyik alatt pince található.
A saját kis kert, pihenésre kertészkedésre kiválóan alkalmas!
Egy fárasztó nap után igazi kikapcsolódást rejt magában ez a nyugodt, csendes környezetben található otthon.
Azoknak ajánlanám akik vágynak egy saját privát szigetre, mégis szeretnék élvezni a város nyújtotta lehetőségeket!
Az ingatlan hitelezhető, de Otthon Start Hitel nem vehető fel.
Ha felkeltettem érdeklődését. . . Várom hívását. FIX 3% lakáshitelre megvehető

