Eladó új építésű ház Szentendre
| Kedvencbe | Megosztás | Árfigyelő |
| FIX 3% lakáshitelre megvehető | ||
| 69 000 000 HUF | ||
Ingatlan adatai
- Eladó vagy kiadó:Eladó
- Település:Szentendre
- Kategória:Ház
- Alkategória:Családi ház
- Alapterület:140 m2
- Telekterület:600 m2
- Csere is:Nem
- Hirdető:Cég
- Élő videón megtekinthető:Nem
- Építés éve:2024
- Szobaszám:0 + 4 fél
- Állapot:Új építésű
- Hány szintes az ingatlan:2 szintes
- Tetőtér:nincs megadva
- Komfortosság:nincs megadva
- Parkolási lehetőség:Udvaron
- Fűtés:Geotermikus
- Bútorozottság:nincs megadva
- Fényviszony:Napfényes
- Tájolás:nincs megadva
- Kilátás:nincs megadva
- Internet:nincs megadva
- Akadálymentesített:nincs megadva
- Energiatanúsítvány:nincs megadva
- Villany:nincs megadva
- Víz:nincs megadva
- Gáz:nincs megadva
- Csatorna:nincs megadva
- Üzenetküldés
- Hívás

Referencia szám: M285967

Hitel ajánlat
Ingatlan hirdetés leírása
Eladó Ház, Szentendre
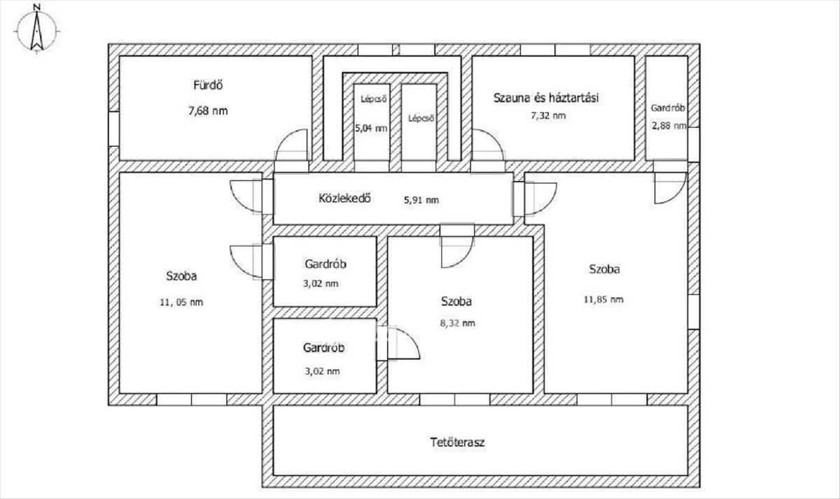
Eladásra kínálunk Pest megyében, Szentendrén egy új építésű 140 nm -es, családi házat. Becsült készültségi fok 30-35%. a ház 2022-ben épült tégla falazattal, az alapja megvan és a födém is kész, igény esetén a tulajdonos befejezi a házat a kész tervek szerint vagy akár módosítással. a nagyobb családok részére is kényelmes házban 4 hálószoba, amerikai konyhás nappali, 2 fürdőszoba, 4 gardrób kapott helyet. a tetőteraszról gyönyörű kilátást lehet élvezni a nap bármely szakaszában. Az otthon melegét hőszivattyú rendszer biztosítja. a kivitelezés összehangolt, gyors, profi munkával történik. a további műszaki tartalom és feltételek, a kivitelezés folyamata és minden részlet megbeszélése érdekében várom a jelentkezését a megadott telefonszámon. Kérésre elküldjük a beruházó terveit. Az OTP Bank hitelszakértőjeként finanszírozási ajánlattal, személyre szabott, igényfelmérésen alapuló díjmentes tanácsadással, kamatkedvezményekkel, igényelhető állami támogatásokkal állok az Ön rendelkezésére.Referencia szám: m285967-ml FIX 3% lakáshitelre megvehető
Tetszett ez az eladó Szentendrei új építésű 4 fél szobás családi ház? Hívd fel a hirdetőt most, és tudj meg mindent erről az eladó családi házról! Ha gondolod nézelődj tovább az eladó ház Szentendre oldal hirdetései között. Ennek az eladó háznak az ára 69000000 Ft és mivel az alapterülete 140 négyzetméter, ezért az átlagos négyzetméterára 492857 HUF/m2.
Az eladó ház menüpontban további hirdetések között is böngészhetsz. Ha van kedved, akkor böngészhetsz a Turcsán Árpád összes hirdetése között, vagy akár a/az OTPip Szentes Petőfi utca 12 - OTP Ingatlanpont Iroda összes hirdetése között is.

