Eladó új építésű ház Szentendre
| Kedvencbe | Megosztás | Árfigyelő |
| FIX 3% lakáshitelre megvehető | ||
| 132 000 000 HUF | ||
Ingatlan adatai
- Eladó vagy kiadó:Eladó
- Település:Szentendre
- Kategória:Ház
- Alkategória:Családi ház
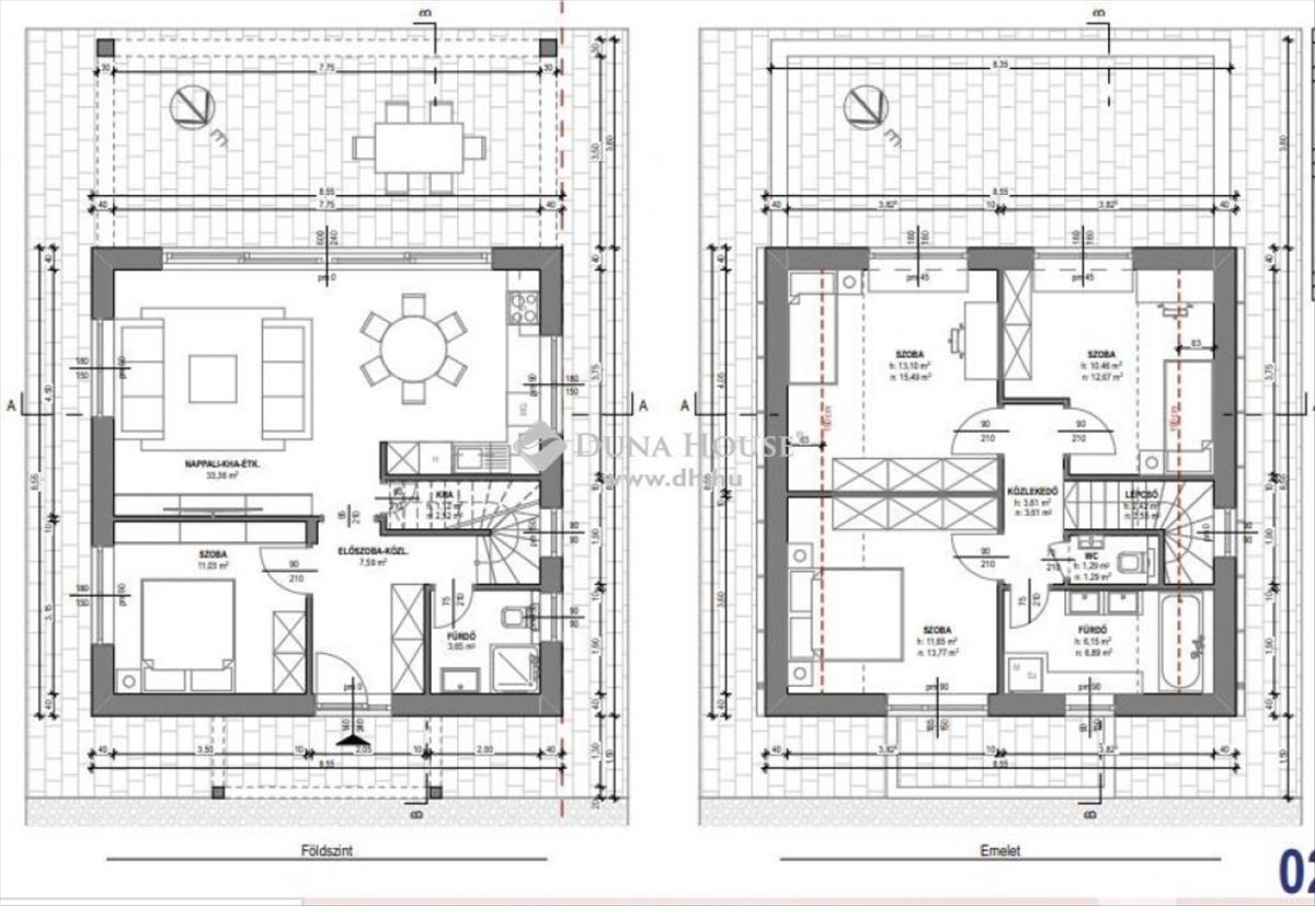
- Alapterület:115 m2
- Telekterület:773 m2
- Csere is:Nem
- Hirdető:Cég
- Élő videón megtekinthető:Nem
- Építés éve:2022
- Szobaszám:5
- Állapot:Új építésű
- Hány szintes az ingatlan:Földszintes
- Tetőtér:nincs megadva
- Komfortosság:nincs megadva
- Parkolási lehetőség:nincs megadva
- Fűtés:Geotermikus
- Bútorozottság:nincs megadva
- Fényviszony:Napfényes
- Tájolás:DNY
- Kilátás:nincs megadva
- Internet:nincs megadva
- Akadálymentesített:nincs megadva
- Energiatanúsítvány:nincs megadva
- Villany:nincs megadva
- Víz:nincs megadva
- Gáz:nincs megadva
- Csatorna:nincs megadva
- Üzenetküldés
- Hívás

Referencia szám: HZ032463

Hitel ajánlat
Ingatlan hirdetés leírása
Eladó Ház, Szentendre
Újépítésű, luxus családi házSzentendrén, csendes, családi házas övezetben, magas műszaki tartalommal épülő családi ház eladó. 773 Nm-es telken, a jelenlegi tervek alapján (vevő kérésére ez még alakítható) épül, két szintes, duplakomfortos. Az alsó szinten terasz kapcsolatos amerikai konyhás nappali, háló(dolgozó)szoba, fürdő, kamra, az emeleten 3 hálószoba, fürdő, külön toalett, erkély kapott helyet. Az emelet panorámás. a fűtés-hűtés hőszivattyús rendszerről működik, terran-generon napelemes tetőcserép is beépítésre kerül. a szobákba inverteres klímák kerülnek, alternatív lehetőségként. 2 Autó részére a kertben felszíni beállót alakítanak ki. Részletes műszaki tartalom, illetve a helyszín megtekintése miatt keressenek bizalommal.Erdősi Edit Tel. : +36 (20) 341 9767
Referencia szám: hz032463 FIX 3% lakáshitelre megvehető

