Eladó új építésű ház - Szentendre
- INGYENES HIRDETÉS FELADÁS
Ingatlan adatai
- Eladó vagy kiadó:Eladó
- Település:Szentendre
- Kategória:Ház
- Alkategória:Családi ház
- Alapterület:125 m2
- Telekterület:300 m2
- Csere is:Nem
- Hirdető:Cég
- Élő videón megtekinthető:Nem
- Építés éve:2026
- Szobaszám:4
- Állapot:Új építésű
- Hány szintes az ingatlan:2 szintes
- Tetőtér:nincs megadva
- Komfortosság:nincs megadva
- Pince:Nincs
- Parkolási lehetőség:nincs megadva
- Fűtés:nincs megadva
- Bútorozottság:nincs megadva
- Fényviszony:nincs megadva
- Tájolás:nincs megadva
- Kilátás:nincs megadva
- Internet:nincs megadva
- Klíma:nincs megadva
- Akadálymentesített:nincs megadva
- Energiatanúsítvány:nincs megadva
- Villany:nincs megadva
- Víz:nincs megadva
- Gáz:nincs megadva
- Csatorna:nincs megadva
- Kapcsolatfelvétel

Witek Krisztina
+36-(20)-412-7014
Mondd meg a hirdetőnek, hogy a megveszLAK-on találtad a hirdetést.
Hitel ajánlatok
Ingatlan hirdetés leírása
Eladó Újépítésű Családi ház Szentendre Belvárosában!
Igazi kuriózum!
Szentendre Belvárosában kettő db különálló ház épül érvényes építési engedéllyel.
Átadás 2026 év vége.
3%-Os Hitel és CSOK felvehető rá!
Mindkét ingatlanhoz 300 nm -es saját kert és autóbeálló (+10 millió ft) tartozik.
A házak kétszintesek nagy terasszal.
Az ár kulcsrakész ár!
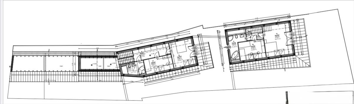
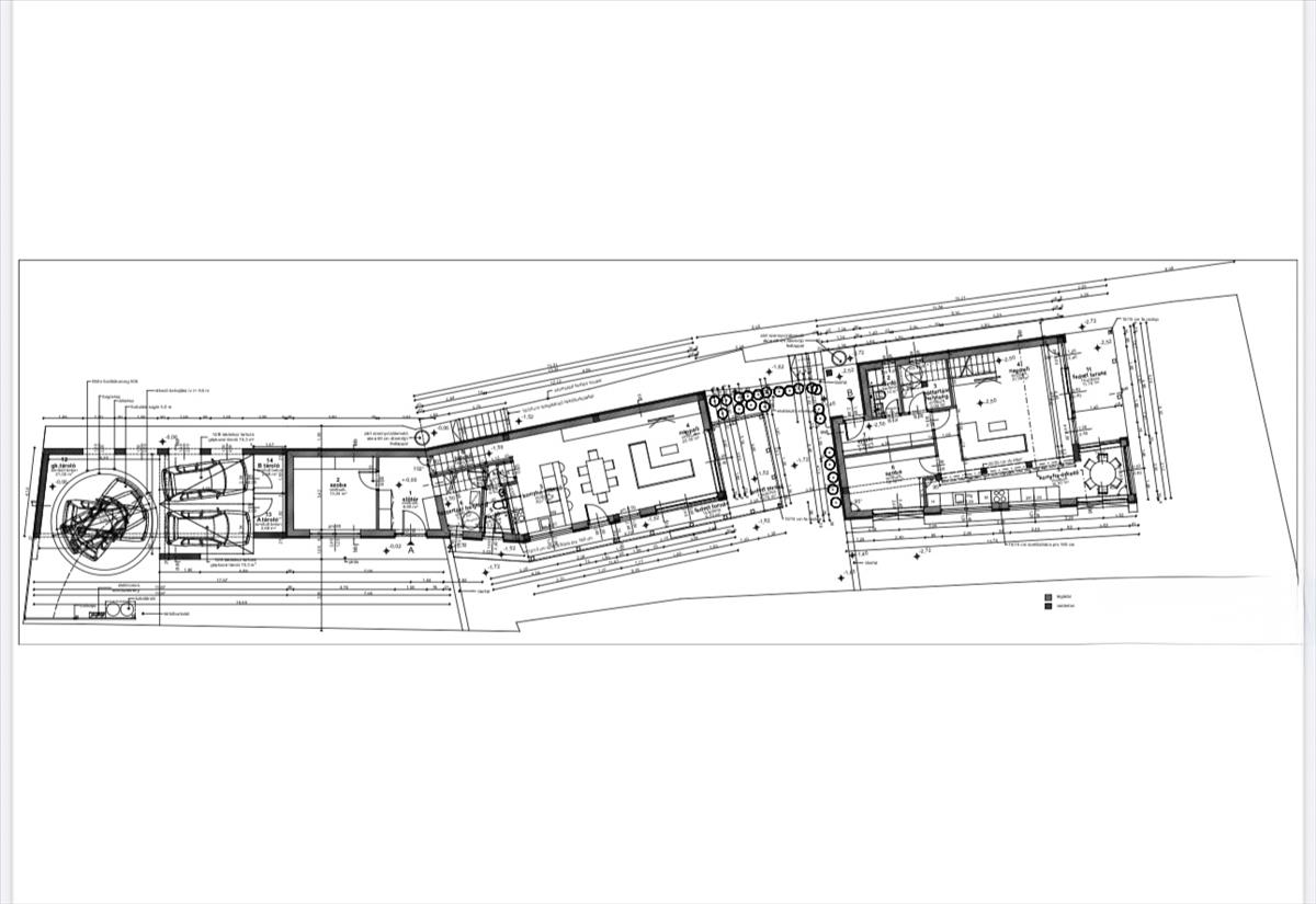
Elrendezés szerint
Földszinten:
- nappali amerikai konyhával
- szoba
- háztartási helyiség
- tároló
- terasz (fedett)
- fürdőszoba +wc
Emelet:
- 2 db szoba
- gardrób helyiseg
- fürdőszoba + wc
Műszaki tartalom:
- Hőszivattyú
- Padlófűtés
- Műanyag három rétegű nyílászárók
- Választható minőségi burkolatok és nyílászárók műszaki tartalom szerint.
Kiváló lokáció, minden elérhető néhány perc sétatávolságon belül.
Amennyiben felkeltettem érdeklődését, várom hívását! FIX 3% lakáshitelre megvehető
Tetszett ez az eladó Szentendrei új építésű 4 szobás családi ház? Hívd fel a hirdetőt most, és tudj meg mindent erről az eladó családi házról! Ha gondolod nézelődj tovább az eladó ház Szentendre oldal hirdetései között. Ennek az eladó háznak az ára 149900000 Ft és mivel az alapterülete 125 négyzetméter, ezért az átlagos négyzetméterára 1199200 HUF/m2.
Az eladó házak menüpontban további hirdetések között is böngészhetsz. Ha van kedved, akkor böngészhetsz a Witek Krisztina összes hirdetése között, vagy akár a/az Be My Home összes hirdetése között is.

