Eladó újszerű állapotú ház - Szigetszentmiklós
- INGYENES HIRDETÉS FELADÁS
Ingatlan adatai
- Eladó vagy kiadó:Eladó
- Település:Szigetszentmiklós
- Kategória:Ház
- Alkategória:Családi ház
- Alapterület:266 m2
- Telekterület:719 m2
- Csere is:Nem
- Hirdető:Cég
- Élő videón megtekinthető:Nem
- Építés éve:1980
- Szobaszám:6 + 1 fél
- Állapot:Újszerű, kitűnő
- Hány szintes az ingatlan:3 szintes
- Tetőtér:nincs megadva
- Komfortosság:nincs megadva
- Pince:nincs megadva
- Parkolási lehetőség:Udvaron
- Fűtés:Gáz (cirko)
- Bútorozottság:nincs megadva
- Fényviszony:Napfényes
- Tájolás:nincs megadva
- Kilátás:nincs megadva
- Internet:nincs megadva
- Klíma:Van
- Akadálymentesített:nincs megadva
- Energiatanúsítvány:nincs megadva
- Villany:nincs megadva
- Víz:nincs megadva
- Gáz:nincs megadva
- Csatorna:nincs megadva
- Kapcsolatfelvétel

Kissné Pergő Viktória
+36-(30)-613-2373
Mondd meg a hirdetőnek, hogy a megveszLAK-on találtad a hirdetést.
Referencia szám: M320424
Hitel ajánlatok
Ingatlan hirdetés leírása
Eladó Ház, Szigetszentmiklós
Tágas otthon és vállalkozás egy helyen! 266 m2-es családi ház Szigetszentmiklós szívében!
Leírás:
Szigetszentmiklós abszolút központjában, mégis nyugodt környezetben eladó egy kiváló adottságokkal rendelkező, nettó 266 négyzetméteres, kétgenerációsnak is alkalmas családi ház! Ha tágas tereket, központi elhelyezkedést és remek közlekedést keres, ez az ingatlan Önre vár.
Az ingatlan főbb jellemzői:
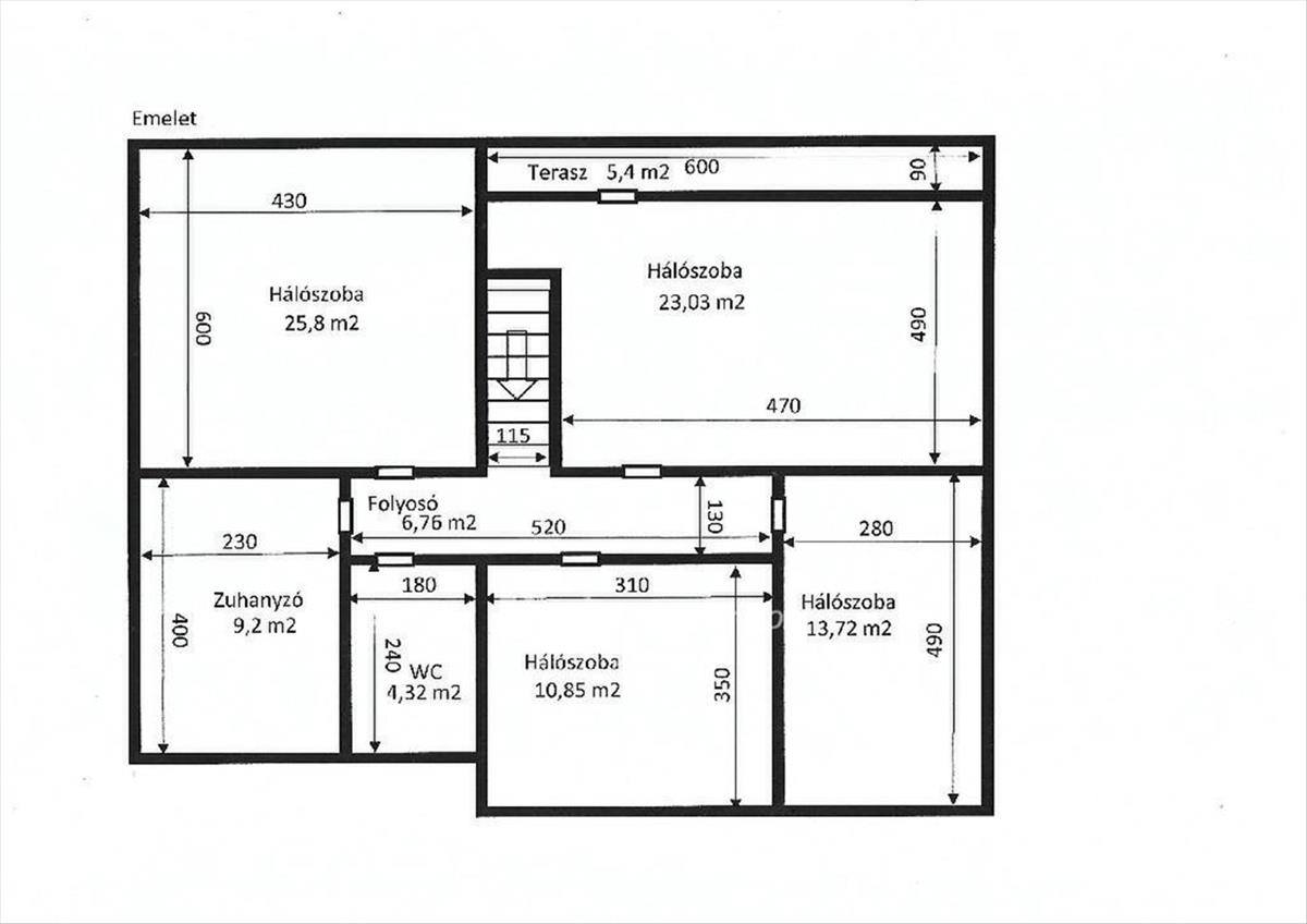
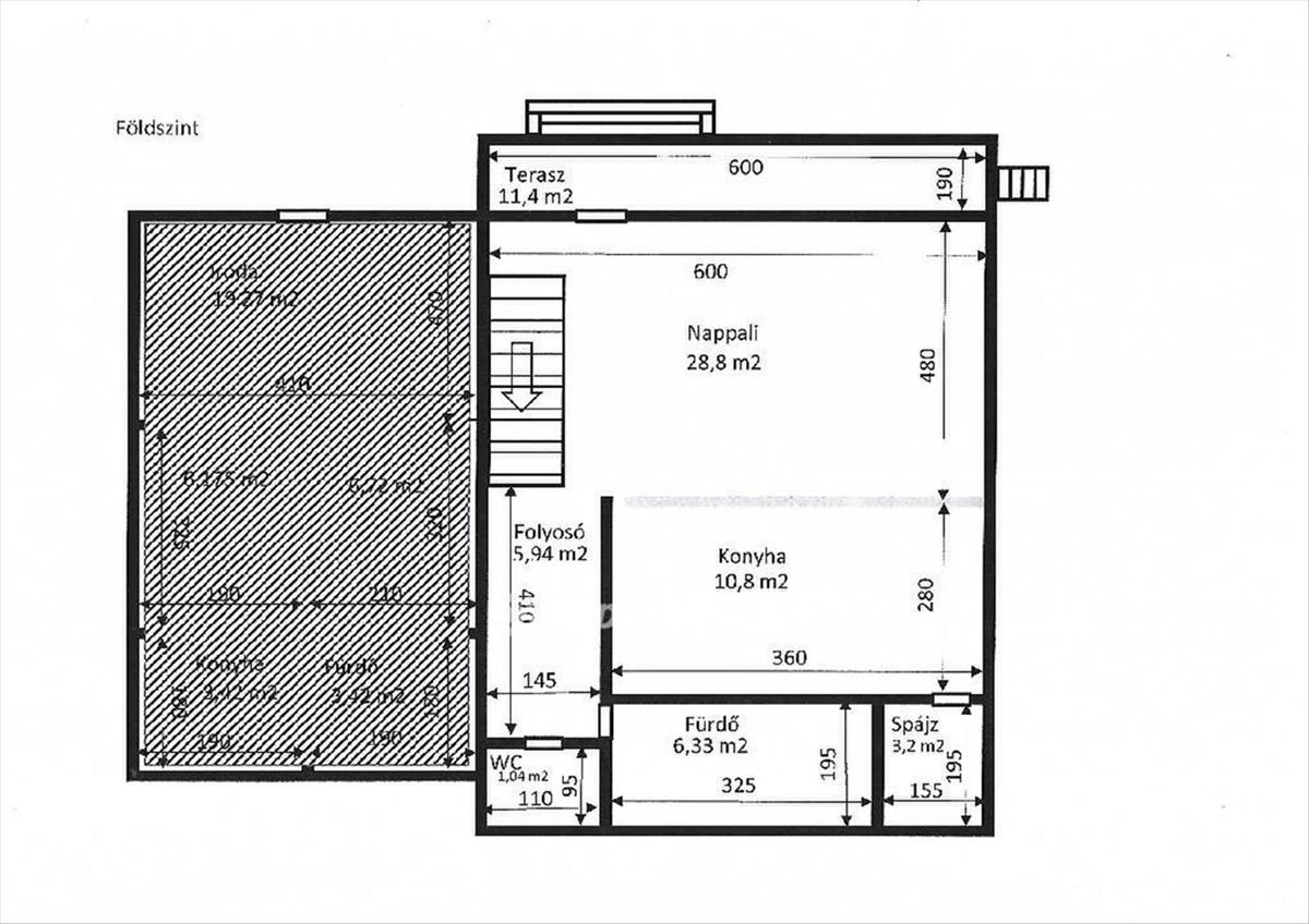
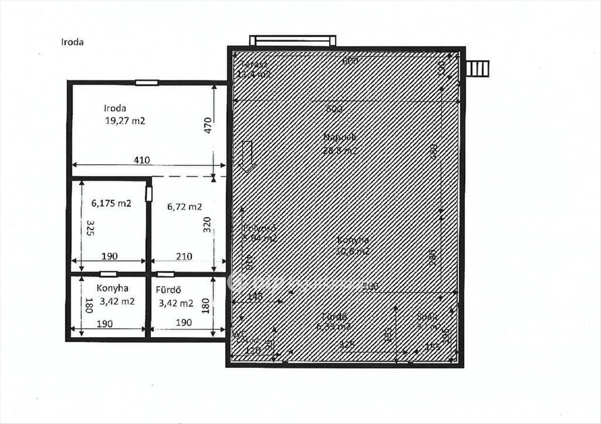
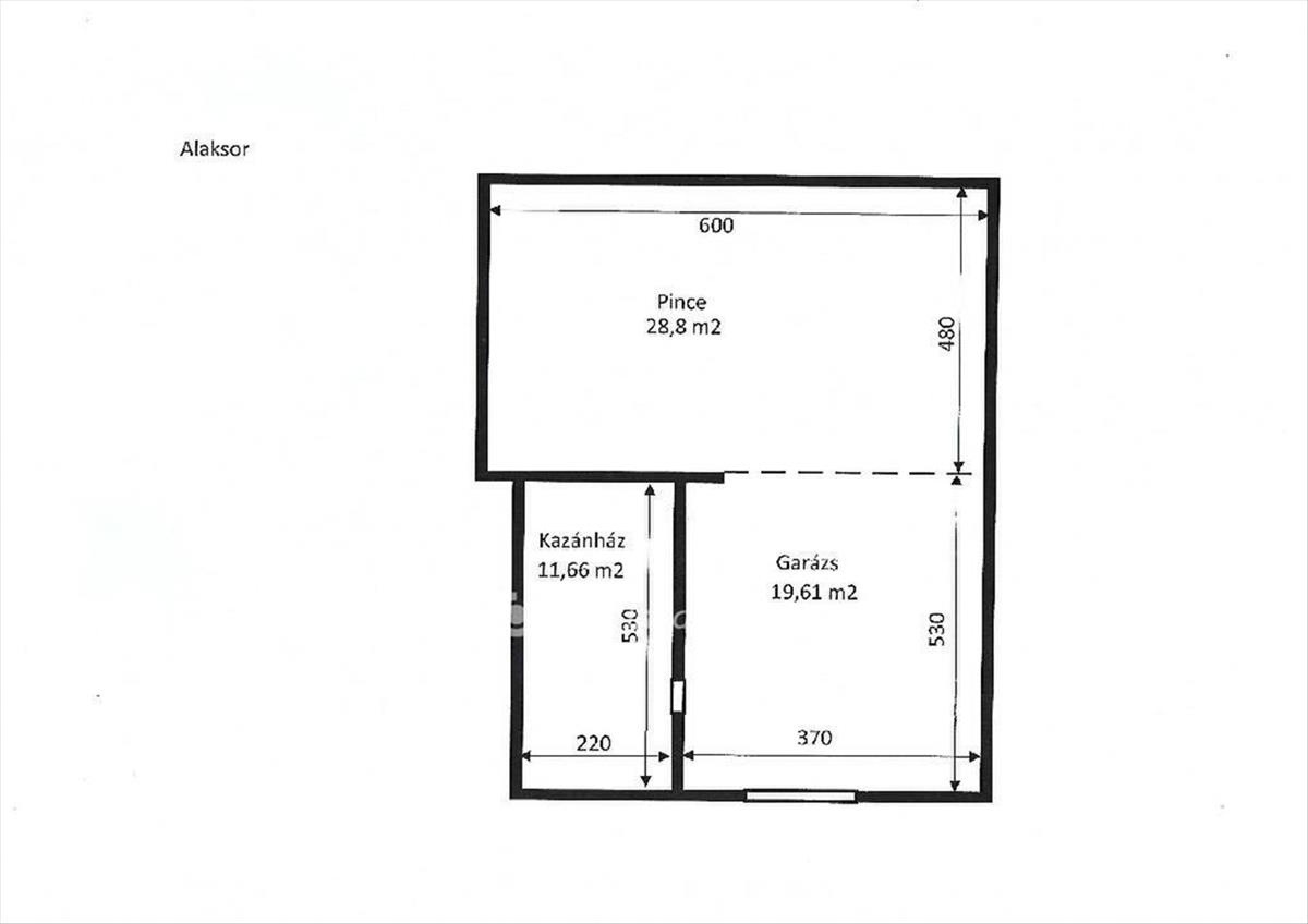
Alapterület: 266 m2 lakótér.
Elrendezés: 6 tágas szoba + 1 félszoba, amely ideális nagycsaládosoknak és otthoni vállalkozásra is.
Állapot: Jó állapotú, folyamatosan karbantartott Családi ház.
Telek: 719 m2-es parkosított udvar.
Miért válassza ezt a házat?
Központi elhelyezkedés: Szigetszentmiklós szívében minden karnyújtásnyira van: szakorvosi rendelő, Városháza, posta, iskolák, óvodák és bevásárlási lehetőségek.
Kiváló közlekedés: Az M0-ás autóút mindössze 5-8 perc alatt elérhető, így Budapest belvárosa vagy a környező agglomeráció is gyorsan megközelíthető.
Az OTP Bankcsoport teljeskörű ügyintézéssel áll az eladók és a vevők rendelkezésére! a kínálatunkból választott ingatlan finanszírozásához kedvezményes hitelkonstrukciókat kínálunk. Az adásvételi szerződés megkötéséhez igény szerint megbízható ügyvédi közreműködést biztosítunk és segítséget nyújtunk az adásvételhez kapcsolódó ügyek intézéséhez. Referenciaszám:M320424 FIX 3% lakáshitelre megvehető
Tetszett ez az eladó Szigetszentmiklósi újszerű állapotú 6 egész és 1 fél szobás családi ház? Hívd fel a hirdetőt most, és tudj meg mindent erről az eladó családi házról! Ha gondolod nézelődj tovább az eladó ház Szigetszentmiklós oldal hirdetései között. Ennek az eladó háznak az ára 149900000 Ft és mivel az alapterülete 266 négyzetméter, ezért az átlagos négyzetméterára 563534 HUF/m2.
Az eladó házak menüpontban további hirdetések között is böngészhetsz. Ha van kedved, akkor böngészhetsz a Kissné Pergő Viktória összes hirdetése között, vagy akár a/az OTPip Szigetszentmiklós Tököli út 19.B - OTP Ingatlanpont Iroda összes hirdetése között is.

