Eladó átlagos állapotú ház Szikszó
| Kedvencbe | Megosztás | Árfigyelő |
| FIX 3% lakáshitelre megvehető | ||
| 43 000 000 HUF | ||
Ingatlan adatai
- Eladó vagy kiadó:Eladó
- Település:Szikszó
- Kategória:Ház
- Alkategória:Családi ház
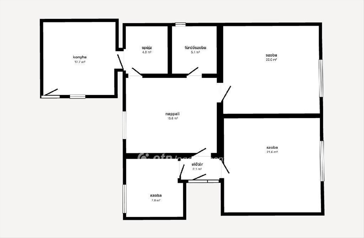
- Alapterület:90 m2
- Telekterület:865 m2
- Csere is:Nem
- Hirdető:Cég
- Élő videón megtekinthető:Nem
- Építés éve:1964
- Szobaszám:3 + 1 fél
- Állapot:Átlagos állapotú
- Hány szintes az ingatlan:Földszintes
- Tetőtér:nincs megadva
- Komfortosság:nincs megadva
- Parkolási lehetőség:Udvaron
- Fűtés:Gáz (cirko)
- Bútorozottság:nincs megadva
- Fényviszony:Közepes
- Tájolás:nincs megadva
- Kilátás:nincs megadva
- Internet:nincs megadva
- Klíma:Van
- Akadálymentesített:nincs megadva
- Energiatanúsítvány:nincs megadva
- Villany:Telken belül
- Víz:Telken belül
- Gáz:Telken belül
- Csatorna:nincs megadva
- Üzenetküldés
- Hívás

Antal-Dusza Hajnalka
Mondd meg a hirdetőnek, hogy a megveszLAK-on találtad a hirdetést.
Referencia szám: M317280

Hitel ajánlat
Ingatlan hirdetés leírása
Eladó 90 m2-es családi ház Szikszó!
Borsod-Abaúj-Zemplén megye, Szikszó településen eladásra kínálok 865 nm-es telken, tégla, szilikát falazatú 90 m2-es családi házat. Az ingatlan 2016-ban lett felújítva, víz-, szennyvíz- és villamos hálózat felújítása történt meg. a tető 30 cm szigetelést kapott, és kicserélték a nyílászárókat is. a bejárat dupla nyílászárót kapott ezzel hozzájárulva a szobák jobb temperálásához. Valamennyi ablak hőszigetelt műanyag szerkezetű lett, redőnnyel és szúnyoghálóval. a fürdőszoba felújítására 2023-ban került sor. Az egyenletes téli-nyári hőmérséklethez 2 db fűtő-hűtő klíma járul hozzá. a házban keleti és déli irányba fekszenek a hálószobák, a tágas konyha pedig az épület hátsó részében helyezkedik el, hogy a főzés ne zavarja a pihenő embereket! Itt található a fűtést biztosító, több éve stabilan működő hagyományos gázcirkó. Garázs kialakítására az épület végén, vagy különálló részben is van lehetőség.Az ingatlan elhelyezkedése nagyon kedvező, főút mellett, a Szikszói Ipari Park, és az autópálya felhajtó 1 km-es közelségében található.
Amennyiben ház adottságai, előnyös elhelyezkedése felkeltette érdeklődését, és szívesen megtekintené személyesen az ingatlant, kérem hívjon bizalommal! Referenciaszám: M317280
OTP Banki hátterünknek köszönhetően finanszírozási igényekben (pl. Otthon Start Hitelprogram, Babaváró, Falusi csok, CSOK Plusz, Lakáshitel, Személyi kölcsön stb. ), Illetve biztosítások tekintetében is díjmentesen, soron kívüli ügyintézéssel segítem ügyfeleim!
Referencia szám: m317280 FIX 3% lakáshitelre megvehető

