Eladó új építésű ház Szolnok
| Kedvencbe | Megosztás | Árfigyelő |
| FIX 3% lakáshitelre megvehető | ||
| 89 900 000 HUF | ||
Ingatlan adatai
- Eladó vagy kiadó:Eladó
- Település:Szolnok
- Kategória:Ház
- Alkategória:Családi ház
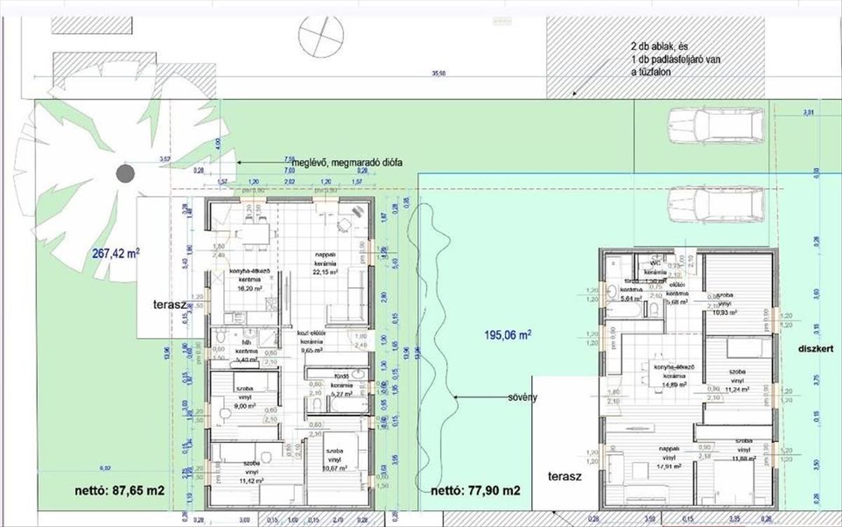
- Alapterület:88 m2
- Telekterület:267 m2
- Csere is:Nem
- Hirdető:Cég
- Élő videón megtekinthető:Nem
- Építés éve:2026
- Szobaszám:3
- Állapot:Új építésű
- Hány szintes az ingatlan:nincs megadva
- Tetőtér:nincs megadva
- Komfortosság:nincs megadva
- Pince:Nincs
- Parkolási lehetőség:Udvaron
- Fűtés:Elektromos
- Bútorozottság:Bútorozatlan
- Fényviszony:nincs megadva
- Tájolás:nincs megadva
- Kilátás:nincs megadva
- Internet:nincs megadva
- Akadálymentesített:nincs megadva
- Energiatanúsítvány:nincs megadva
- Villany:Van
- Víz:Van
- Gáz:nincs megadva
- Csatorna:Van
- Üzenetküldés
- Hívás


Hitel ajánlat
Ingatlan hirdetés leírása
Szolnok egyik kedvelt utcájában, megvásárolható egy újépítésű,...
Szolnok egyik kedvelt utcájában, megvásárolható egy újépítésű, kulcsrakész, energiatakarékos, 88 nméteres családi ház, mely 267 nméteres telken, legmodernebb őko technológiákkal épült, így biztosítva az alacsony rezsiköltséget. A fűtést padlófűtés és hűtő-fűtő klíma biztosítja. Az energiaellátást napelem rendszer segíti valamint a H tarifa rendszer, egy Magyarországon elérhető, kedvezményes árú villamosenergia-tarifa. a házon 15 cm-es korszerű hőszigetelés található, és három rétegű nyílászárók.A családi házban három szoba, nappali, étkező-konyha, fürdőszoba, külön mosdó áll rendelkezésre.
Az ingatlan közelében van iskola, óvoda, bolt, játszótér, gyógyszertár, és jó a közlekedés is. FIX 3% lakáshitelre megvehető

