- >>
- eladó ingatlanok
- >>
- eladó ház
- >>
- eladó ház Szolnok
- >>
Eladó felújított ház - Szolnok
| | |||
| Kedvencnek jelölöm | Elküldöm emailben | Megosztás | Szavazás |
| FIX 3% lakáshitelre megvehető | |||
| 60 500 000 HUF | |||
Ingatlan adatai
- Eladó vagy kiadó:Eladó
- Település:Szolnok
- Kategória:Ház
- Alkategória:Családi ház
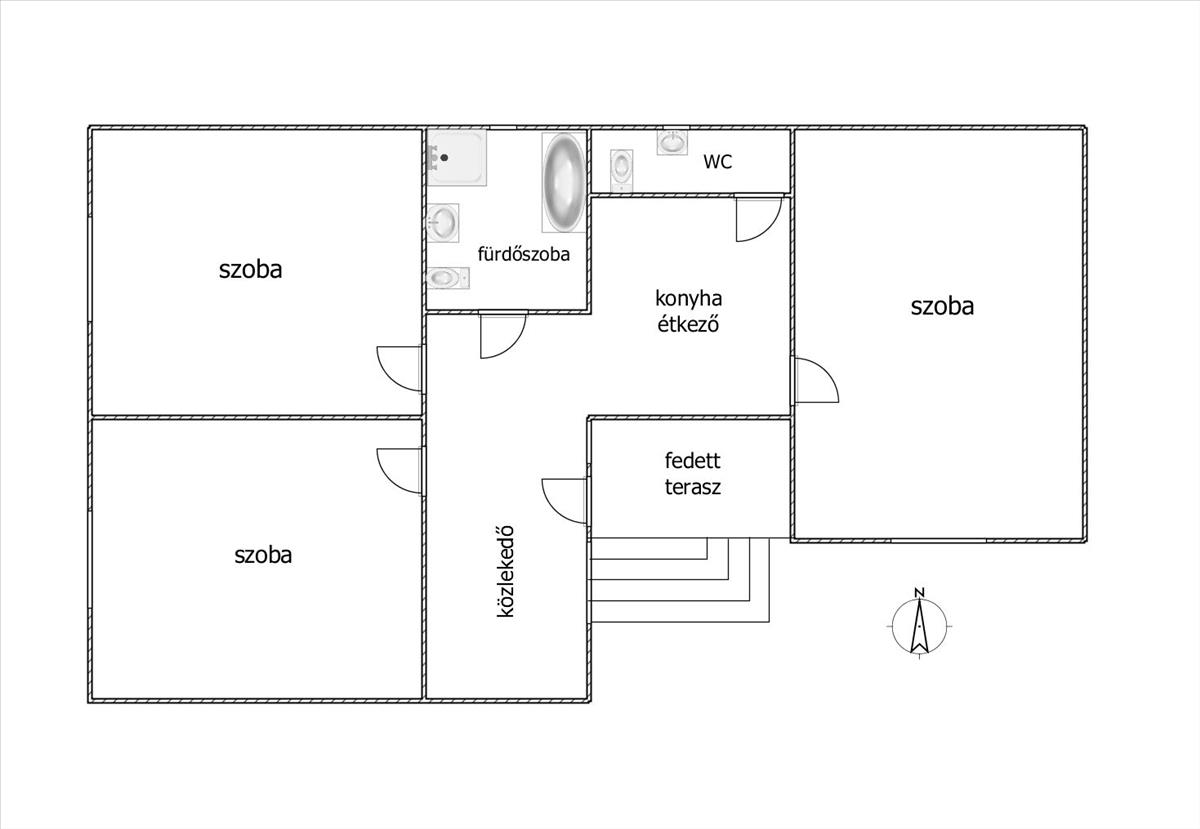
- Alapterület:95 m2
- Telekterület:350 m2
- Csere is:Nem
- Hirdető:Cég
- Élő videón megtekinthető:Nem
- Szobaszám:nincs megadva
- Állapot:Felújított
- Hány szintes az ingatlan:nincs megadva
- Tetőtér:nincs megadva
- Komfortosság:nincs megadva
- Pince:Nincs
- Parkolási lehetőség:Udvaron
- Fűtés:Elektromos
- Bútorozottság:nincs megadva
- Fényviszony:nincs megadva
- Tájolás:nincs megadva
- Kilátás:nincs megadva
- Internet:nincs megadva
- Klíma:Van
- Akadálymentesített:nincs megadva
- Energiatanúsítvány:nincs megadva
- Villany:Van
- Víz:Van
- Gáz:Utcában
- Csatorna:Van
- Üzenetküldés
- Hívás


Hitel ajánlat
Ingatlan hirdetés leírása
Szolnokon teljes körűen felújított 3 szobás tégla szerkezetű c...
Eladó Jászladányban egy 110 m2-es, 3 szobás családi ház.Az ingatlan teljes körűen felújított, tágas terek, jó elosztás jellemzi.
Helyiségei:
-Tágas konyha
-L alakú tágas nappali
-3 külön bejáratú szobák
-2 fürdőszoba
Tároló helyiség.
Az udvarba kilépve terasz van kialakítva valamint melléképület és garázs.
A felújítás alatt:
-Villany, -víz, -gáz vezetékek teljes cserélve lettek
-Két modern fürdőszoba van, egy tusolós és egy tágasabb sarokádas
-A burkolatok nagy méretű járólap a konyhában, nappaliban, fürdőszobákban,
-szobákban laminált padló
-nyílászárók fehér műanyag, redőnnyel és szúnyoghálóval.
Fűtése gázkazán és hűtő fűtő klíma.
Az ingatlan tökéletes aki nyugodtabb környezetet szereti és nagy család számára kiváló!
A központ 10 perc sétára van ahol minden szolgáltatás és különböző vásárlási lehetőségek vannak.
Irodánk díjmentes hitel ügyintézést tud biztosítani az ügyfelek számára!
Amennyiben felkeltette érdeklődését, kérem hívjon bizalommal! FIX 3% lakáshitelre megvehető

