Eladó felújítandó ház - Tabdi
- INGYENES HIRDETÉS FELADÁS
Ingatlan adatai
- Eladó vagy kiadó:Eladó
- Település:Tabdi
- Kategória:Ház
- Alkategória:Családi ház
- Alapterület:90 m2
- Telekterület:2272 m2
- Csere is:Nem
- Hirdető:Cég
- Élő videón megtekinthető:Nem
- Építés éve:1965
- Szobaszám:3
- Állapot:Felújítandó
- Hány szintes az ingatlan:Földszintes
- Tetőtér:nincs megadva
- Komfortosság:nincs megadva
- Pince:nincs megadva
- Parkolási lehetőség:Garázsban
- Fűtés:Vegyes tüzelésű kazán
- Bútorozottság:nincs megadva
- Fényviszony:nincs megadva
- Tájolás:nincs megadva
- Kilátás:nincs megadva
- Internet:nincs megadva
- Klíma:nincs megadva
- Akadálymentesített:nincs megadva
- Energiatanúsítvány:nincs megadva
- Villany:nincs megadva
- Víz:nincs megadva
- Gáz:nincs megadva
- Csatorna:nincs megadva
- Kapcsolatfelvétel

Hangya Szilvia
+36-70-881-0703
Mondd meg a hirdetőnek, hogy a megveszLAK-on találtad a hirdetést.
Hitel ajánlatok
Ingatlan hirdetés leírása
Bács-Kiskun vármegye Tabdi településen eladásra kínálok egy 90...
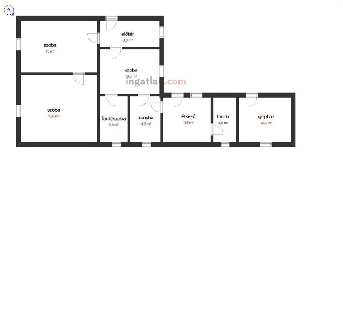
Bács-Kiskun vármegye Tabdi településen eladásra kínálok egy 90 m2-es családi házat. Az ingatlanban 3 szoba, konyha, étkező, előszoba, fürdőszoba wc-vel, spejz és kazánház kapott helyet. Fűtéséről vegyes tüzelésű kazán gondoskodik. Nyílászárói régi fa típusúak, mely redőnyökkel vannak ellátva. a főépület 1968-ban épült beton alapra, vályog falazattal, mellyet később tégla falazatú hozzáépítéssel bővítettek. Az ingatlan első részén egy melléképület és egy kis kert található. Hátsó részén ólak és egy gazdálkodásra alkalmas fördterület, ami jelenleg feltárcsázott. a ház Tabdi központjához közeli utcában található, pár perc sétával megközelíthető a faluház, boltok, étterem. Remek lehetőség fiatal párok számára! Az ingatlan per és tehermentes falusi CSOK - igénybe vehető, Otthon Start program. FIX 3% lakáshitelre megvehető
Tetszett ez az eladó Tabdi felújítandó 3 szobás családi ház? Hívd fel a hirdetőt most, és tudj meg mindent erről az eladó családi házról! Ha gondolod nézelődj tovább az eladó ház Tabdi oldal hirdetései között. Ennek az eladó háznak az ára 17900000 Ft és mivel az alapterülete 90 négyzetméter, ezért az átlagos négyzetméterára 198889 HUF/m2.
Az eladó házak menüpontban további hirdetések között is böngészhetsz. Ha van kedved, akkor böngészhetsz a Hangya Szilvia összes hirdetése között, vagy akár a/az Kiskőrös Petőfi tér 9 - OTP Ingatlanpont Iroda összes hirdetése között is.

