Eladó újszerű állapotú ház Telki
| Kedvencbe | Megosztás | Árfigyelő |
| Kedvezményes lakáshitel ajánlatok | ||
| 399 900 000 HUF | ||
Ingatlan adatai
- Eladó vagy kiadó:Eladó
- Település:Telki
- Kategória:Ház
- Alkategória:Családi ház
- Alapterület:450 m2
- Telekterület:950 m2
- Csere is:Nem
- Hirdető:Cég
- Élő videón megtekinthető:Nem
- Építés éve:2009
- Szobaszám:6
- Állapot:Újszerű, kitűnő
- Hány szintes az ingatlan:2 szintes
- Tetőtér:nincs megadva
- Komfortosság:nincs megadva
- Parkolási lehetőség:Teremgarázsban
- Fűtés:Gáz (cirko)
- Bútorozottság:nincs megadva
- Fényviszony:Napfényes
- Tájolás:nincs megadva
- Kilátás:nincs megadva
- Internet:nincs megadva
- Klíma:Van
- Akadálymentesített:nincs megadva
- Energiatanúsítvány:C
- Villany:Telken belül
- Víz:Telken belül
- Gáz:Telken belül
- Csatorna:nincs megadva
- Üzenetküldés
- Hívás

Referencia szám: M300755

Hitel ajánlat
Ingatlan hirdetés leírása
Eladó Ház, Telki, Eladó újszerű állapotú ház - Telki
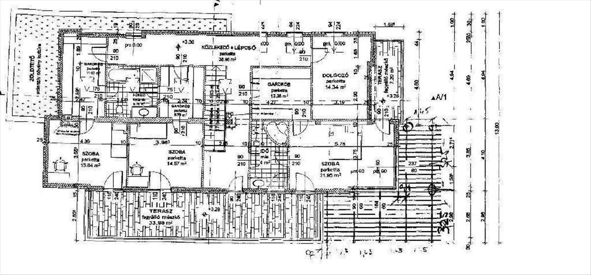
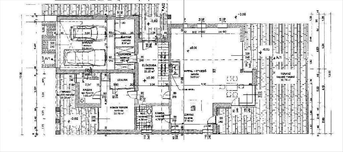
Telki, kétszintes panorámás luxusház azonnal birtokba VEHETŐ!Telki egyik legkedveltebb részén eladó, egy kétszintes, 420 nm-es, nappali + 5 szobás ház, egy 950 nm-es gyönyörű telekkel.
A földszinten található egy 92 nm-es amerikai konyhás nappali, ahonnan kiléphetünk a tágas 60 nm-es taraszunkra. Ezen a szinten találhatunk még egy hatalmas előteret gardróbbal, konditermet, szaunát, fürdőszobát, kazánházat, illetve szintén innen közelíthetjük meg a kétállásos garázst.
Az emeleten négy tágas hálószoba került kialakításra, amelyhez gardróbokat és 2 fürdőszobát álmodtak meg, illetve itt található a panorámás terasz, amely az összes szobából megközelíthető.
A családi házat magas minőségű alapanyagok felhasználásával épült, illetve prémium minőségű hideg-, melegburkolatok és szaniterek kerültek kiválasztásra.
A modern stílusú konyha minőségi háztartási gépekkel felszerelt és az egész házban, jól átgondolt tervezéssel számos praktikus beépített gardrób lett kialakítva.
A fűtésről egy 45 kW-os (ipari) kondenzációs kazán gondoskodik padló és radiátoros fűtés kombinációjával.
Ezenfelül minden szoba hűtő-fűtő klímákkal is felszerelt.
A ház rendkívül energiatakarékos köszönhetően a prémium minőségű nyílászáróknak, gépészetnek és a hőszigetelésnek.
További extrák amelyek emelik a ház minőségét és kényelmét: vízszűrő-, vízlágyító rendszer, központi porszívó, szauna, elektromos kapu.
A ház remek elhelyezkedésének köszönhetően, szenzációs választás családosoknak, akiknek fontos a természetközeli, nyugodt környezet kiváló infrastruktúrával közel Budapesthez.
A ház közvetlen közelében, minden megtalálható ami a mindennapokhoz szükséges (bevásárlási lehetőségek, rendelő, óvoda, iskola, sportcsarnok, gyógyszertár).
Bővebb információért, várom megtisztelő hívását, akár hétvégén is!
M300755
399900000 Ft
Referencia szám: m300755-ml Hitel.hu - Hasonlítsa össze a bankok lakáshitel ajánlatait

