Eladó jó állapotú ház - Tiszalúc
- INGYENES HIRDETÉS FELADÁS
Ingatlan adatai
- Feladva:69 napja a megveszLAK-on
- Eladó vagy kiadó:Eladó
- Település:Tiszalúc
- Kategória:Ház
- Alkategória:Családi ház
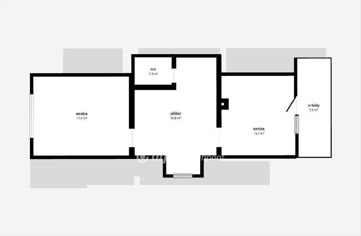
- Alapterület:180 m2
- Telekterület:600 m2
- Csere is:Nem
- Hirdető:Cég
- Élő videón megtekinthető:Nem
- Építés éve:1990
- Szobaszám:4
- Állapot:Jó állapotú
- Hány szintes az ingatlan:2 szintes
- Tetőtér:nincs megadva
- Komfortosság:nincs megadva
- Pince:nincs megadva
- Parkolási lehetőség:Udvaron
- Fűtés:Gáz (cirko)
- Bútorozottság:nincs megadva
- Fényviszony:Napfényes
- Tájolás:nincs megadva
- Kilátás:nincs megadva
- Internet:nincs megadva
- Klíma:nincs megadva
- Akadálymentesített:nincs megadva
- Energiatanúsítvány:nincs megadva
- Villany:nincs megadva
- Víz:nincs megadva
- Gáz:nincs megadva
- Csatorna:nincs megadva
- Kapcsolatfelvétel

Dandásné Fábián Klaudia
+36-(30)-340-6776
Mondd meg a hirdetőnek, hogy a megveszLAK-on találtad a hirdetést.
Referencia szám: M317799
Hitel ajánlatok
Ingatlan hirdetés leírása
Eladó Ház, Tiszalúc, Eladó jó állapotú ház - Tiszalúc
Eladó tiszalúcon négyszobás családi ház! Eladó Tiszalúc kulturált csendes részén egy 180 nm -es, négyszobás, 2007-ben teljes körűen felújított családi ház, 600 nm -es telken! a felújítás során ki lett cserélve a teljes víz és villamoshálózat, a nyílászárók, és új burkolat került a padlóra illetve a falakra. Két fürdőszoba, egy fürdőkádas egy zuhanyzós, és egy különálló illemhely került kialakításra. Fűtését gázcirkó biztosítja, az emeleten kiegészítésként egy elegáns kandalló is helyet kapott. Parkolás egyállásos kényelmes garázsban.
Miskolctól mindössze 20 kilométerre egy felújított kétszintes ház, egy háromszobás panel áráért! Várom hívását, hétvégén is!
OTP Banki hátterünknek köszönhetően finanszírozási igényekben (pl. Otthon Start Hitelprogram, Babaváró, Falusi csok, CSOK Plusz, Lakáshitel, Személyi kölcsön stb. ), Illetve biztosítások tekintetében is díjmentesen, soron kívüli ügyintézéssel segítem ügyfeleim!
Referenciaszám: m317799
Virtuális séta: https://my. Matterport. Com/show/? M=aTLu987iktP&mls=1
Referencia szám: m317799 FIX 3% lakáshitelre megvehető
Tetszett ez az eladó Tiszalúci jó állapotú 4 szobás családi ház? Hívd fel a hirdetőt most, és tudj meg mindent erről az eladó családi házról! Ha gondolod nézelődj tovább az eladó ház Tiszalúc oldal hirdetései között. Ennek az eladó háznak az ára 42900000 Ft és mivel az alapterülete 180 négyzetméter, ezért az átlagos négyzetméterára 238333 HUF/m2.
Az eladó házak menüpontban további hirdetések között is böngészhetsz. Ha van kedved, akkor böngészhetsz a Dandásné Fábián Klaudia összes hirdetése között, vagy akár a/az OTPip Miskolc Corvin utca 1-3 - OTP Ingatlanpont Iroda összes hirdetése között is.

