- >>
- eladó ingatlanok
- >>
- eladó ház
- >>
- eladó ház Tószeg
- >>
Eladó átlagos állapotú ház - Tószeg
| | |||
| Kedvencnek jelölöm | Elküldöm emailben | Megosztás | Szavazás |
| FIX 3% lakáshitelre megvehető | |||
| 22 000 000 HUF | |||
Ingatlan adatai
- Eladó vagy kiadó:Eladó
- Település:Tószeg
- Kategória:Ház
- Alkategória:Családi ház
- Alapterület:102 m2
- Telekterület:666 m2
- Csere is:Nem
- Hirdető:Cég
- Élő videón megtekinthető:Nem
- Építés éve:1955
- Szobaszám:3 + 2 fél
- Állapot:Átlagos állapotú
- Hány szintes az ingatlan:Földszintes
- Tetőtér:nincs megadva
- Komfortosság:nincs megadva
- Parkolási lehetőség:Udvaron
- Fűtés:Egyéb
- Bútorozottság:nincs megadva
- Fényviszony:Jó
- Tájolás:nincs megadva
- Kilátás:nincs megadva
- Internet:nincs megadva
- Akadálymentesített:nincs megadva
- Energiatanúsítvány:nincs megadva
- Villany:nincs megadva
- Víz:nincs megadva
- Gáz:nincs megadva
- Csatorna:nincs megadva
- Üzenetküldés
- Hívás

Referencia szám: M318062

Hitel ajánlat
Ingatlan hirdetés leírása
Eladó Ház, Tószeg, Eladó átlagos állapotú ház - Tószeg
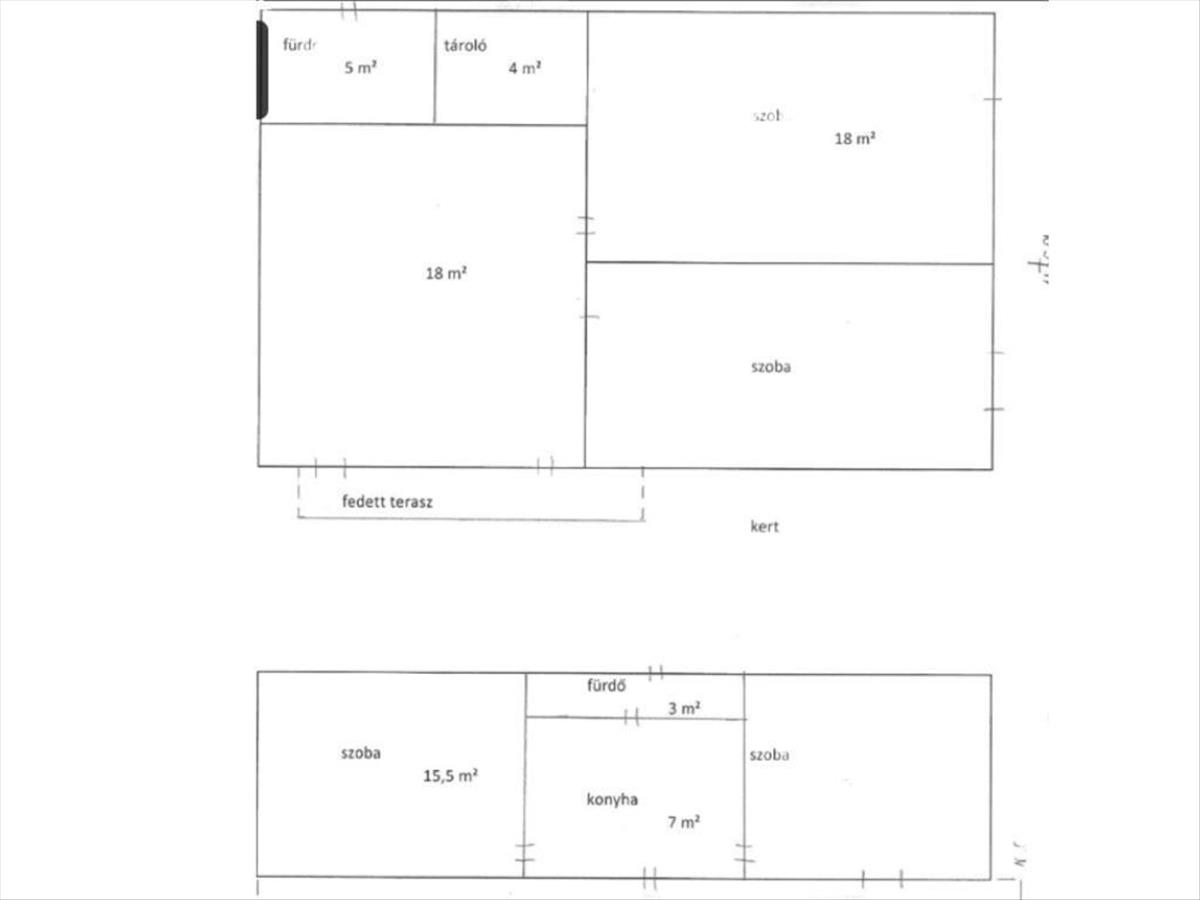
Jász-Nagykun-Szolnok vármegyében, mindössze 15 km-re Szolnoktól, Tószegen eladó egy azonnal költözhető, kétgenerációs családi ház.A 666 nm-es telken két különálló lakrész található, így akár két család számára is ideális választás lehet.
A nagyobb, 60 nm-es épületben két tágas szoba kapott helyet, amelyek még kialakításra várnak, valamint egy 18 nm-es nappali, konyha, egy 7 nm-es fürdő + wc és egy 5 nm-es kamra.
A ház stabil beton alapra épült, vályog falazattal, fűtését kályha biztosítja, a gáz pedig az utcában elérhető.
A kisebb, 42 nm-es házrészben két kényelmes szoba, egy konyha, valamint fürdő + wc található, a fűtést itt is kályha adja.
A bejárat előtt egy hangulatos, nagy fedett terasz várja új lakóit, tökéletes helyszínt teremtve a reggeli kávéhoz vagy egy nyugodt esti pihenéshez.
A telken ezen felül garázs és gazdasági épületek is rendelkezésre állnak, így minden adott a kényelmes mindennapokhoz.
A településen falusi CSOK is igénybe vehető.
Ha kétgenerációs megoldást keresel, vagy szeretnél egy külön lakrészt akár kiadásra, akár saját vállalkozás számára, ez az ingatlan remek lehetőség.
Ha szeretnéd személyesen is megnézni, keress bátran üzenetben vagy telefonon! FIX 3% lakáshitelre megvehető

